High street retail property for rent
Restaurant former Bar premises - Station Road, Desborough
Letting details
- Let available date:
- 06/03/2026
- Deposit:
- £2,000A deposit provides security for a landlord against damage, or unpaid rent by a tenant.Read more about deposit in our glossary page.
- PROPERTY TYPE
Retail Property (high street)
- SIZE
829 sq ft
77 sq m
Key features
- Cafe/Bistro - Wine Bar
- Approx. C.35+ Covers
- Court Yard Garden
- Prominent high profile corner premise
Description
Business Rates £6,500 PA as of 1 April 2023 - please refer to .Gov Business Rate for updates from 1 April 2026
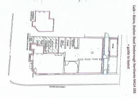
Entrance - Prominent corner door position opening into Main restaurantƒBistro and Bar area
Bistro/Restaurant Seating And Bar Area - 6.77m x 4.20m max - With high profile Upvc wood grain style windows with outlooks to two elevations (station road and Gladstone street) radiators, tiled floor through to bar area and Lobby, Toilet and second Bistro serving area
Bar Area - 1.79m into recess x 3.44m - Fully fitted bar with shelving, optics display and pump, tiled floor and hatch to stair way descending to Basement
Basement - 6.5m x 6.5m approximately - Power and lighting connected, ideal for beer pump and barrel storage
Lobby Area - Off from main Bistro serving area and leading to Kitchen, Ladies/disabled toilet facilities, separate Gents Toilet and walk in wash room
Wash Room Area -
Gents Toilets - Comprising of modern wash hand basin, separate cubicle and urinal, fully tiled walls and floor
Ladies/Disabled Toilet Facilities - Equipped with disabled facilities and comprising toilet and wash hand basin, fully tiled walls and floor
Bistro/Restaurant Seating Area Two - 4.83m x 4.36m - Also providing extensive seating, by fold glazed and timber doors opening to Mediterranean style rear court yard
Rear Court Yard Area - 4.75m x 2.85m - which is fully tiled and screened and enjoying southerly aspect
Brochures
Restaurant former Bar premises - Station Road, DesBrochureRestaurant former Bar premises - Station Road, Desborough
NEAREST STATIONS
Distances are straight line measurements from the centre of the postcode- Market Harborough Station4.6 miles
- Kettering Station5.1 miles
Notes
Disclaimer - Property reference 34408883. The information displayed about this property comprises a property advertisement. Rightmove.co.uk makes no warranty as to the accuracy or completeness of the advertisement or any linked or associated information, and Rightmove has no control over the content. This property advertisement does not constitute property particulars. The information is provided and maintained by Simon & Co, Rothwell. Please contact the selling agent or developer directly to obtain any information which may be available under the terms of The Energy Performance of Buildings (Certificates and Inspections) (England and Wales) Regulations 2007 or the Home Report if in relation to a residential property in Scotland.
Map data ©OpenStreetMap contributors.








