
26B, Teith Road, Deanston, By Doune, FK16

- PROPERTY TYPE
Flat
- BEDROOMS
3
- BATHROOMS
1
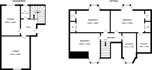
- SIZE
1,141 sq ft
106 sq m
- TENUREDescribes how you own a property. There are different types of tenure - freehold, leasehold, and commonhold.Read more about tenure in our glossary page.
Ask agent
Description
A spacious traditional maisonette flat, centrally located within the charming village of Deanston, offering flexible accommodation arranged over two levels.
While the property would benefit from internal modernisation, this is fully reflected in the price point. On viewing it is clear the property presents an excellent opportunity to create a home tailored to your own taste.
Extending to approximately 106 sqm (1,141 sq ft), the flat offers a generous and adaptable living space and will particularly appeal to first- or second-time buyers seeking a village lifestyle with good local amenities.
The accommodation comprises a communal entrance with stair access to the first floor, a welcoming reception hallway with staircase to the upper level, a bright front-facing lounge enjoying scenic views, a separate kitchen, and a convenient WC.
The upper level provides three well-proportioned double bedrooms, all featuring attractive bay windows. Two bedrooms benefit from built-in cupboards and wardrobes, while the principal bedroom enjoys an additional box room, ideal for use as a dressing room or home office. A spacious family bathroom completes the upper floor.
Further benefits include access to two cellars, providing excellent storage.
Additional features include double glazing and electric heating, on-street parking to the front, and a generous private rear garden offering excellent potential to be enclosed to suit the new owner’s needs.
Deanston is a highly regarded village with local amenities and regular bus services to Stirling and Callander. For families, Deanston Primary School is just a 30-second walk away, with Doune Primary also within easy reach. The well-respected McLaren High School serves older students, while nearby Dunblane and Stirling offer a wider range of amenities, including Tesco supermarkets and mainline rail stations. Surrounded by beautiful countryside, the area provides a wealth of outdoor and recreational pursuits, making this a very appealing place to call home.
- COUNCIL TAXA payment made to your local authority in order to pay for local services like schools, libraries, and refuse collection. The amount you pay depends on the value of the property.Read more about council Tax in our glossary page.
- Band: B
- PARKINGDetails of how and where vehicles can be parked, and any associated costs.Read more about parking in our glossary page.
- Ask agent
- GARDENA property has access to an outdoor space, which could be private or shared.
- Yes
- ACCESSIBILITYHow a property has been adapted to meet the needs of vulnerable or disabled individuals.Read more about accessibility in our glossary page.
- No wheelchair access
26B, Teith Road, Deanston, By Doune, FK16
Add an important place to see how long it'd take to get there from our property listings.
__mins driving to your place
Get an instant, personalised result:
- Show sellers you’re serious
- Secure viewings faster with agents
- No impact on your credit score
Your mortgage
Notes
Staying secure when looking for property
Ensure you're up to date with our latest advice on how to avoid fraud or scams when looking for property online.
Visit our security centre to find out moreDisclaimer - Property reference SLN250160. The information displayed about this property comprises a property advertisement. Rightmove.co.uk makes no warranty as to the accuracy or completeness of the advertisement or any linked or associated information, and Rightmove has no control over the content. This property advertisement does not constitute property particulars. The information is provided and maintained by Aberdein Considine, Stirling. Please contact the selling agent or developer directly to obtain any information which may be available under the terms of The Energy Performance of Buildings (Certificates and Inspections) (England and Wales) Regulations 2007 or the Home Report if in relation to a residential property in Scotland.
*This is the average speed from the provider with the fastest broadband package available at this postcode. The average speed displayed is based on the download speeds of at least 50% of customers at peak time (8pm to 10pm). Fibre/cable services at the postcode are subject to availability and may differ between properties within a postcode. Speeds can be affected by a range of technical and environmental factors. The speed at the property may be lower than that listed above. You can check the estimated speed and confirm availability to a property prior to purchasing on the broadband provider's website. Providers may increase charges. The information is provided and maintained by Decision Technologies Limited. **This is indicative only and based on a 2-person household with multiple devices and simultaneous usage. Broadband performance is affected by multiple factors including number of occupants and devices, simultaneous usage, router range etc. For more information speak to your broadband provider.
Map data ©OpenStreetMap contributors.





