4 bedroom detached villa for sale
Abbeydawn Rise, Cholesbury Road, HP23

- PROPERTY TYPE
Detached Villa
- BEDROOMS
4
- BATHROOMS
3
- SIZE
2,647 sq ft
246 sq m
- TENUREDescribes how you own a property. There are different types of tenure - freehold, leasehold, and commonhold.Read more about tenure in our glossary page.
Freehold
Key features
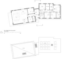
- Plot Size: 2205 m² / 23734 sq ft
- Max House GIA: 246 m² / 2647 sq ft
- Parking: 3 spaces
- Customise your layouts before construction
- Price shown is projected end GDV.
Description
Plot Two at Abbeydawn Rise is the final opportunity to secure a serviced plot within this exceptionally limited, two-plot development, set in a peaceful and private countryside location on the edge of Wiggington.
With the first plot already secured, this is a now-or-never chance to create a bespoke family home in a setting where such opportunities rarely come to market.
The plot benefits from services to the boundary and approved planning consent for a striking four-bedroom detached home, featuring generous garden space, a substantial terrace, and three private parking bays. Purchasers have the flexibility to personalise the approved plans, including internal layout and material choices, to create a home that truly reflects their lifestyle.
Please note: The price shown relates to the serviced plot only. The construction of the home is arranged separately under a bespoke build contract, allowing full control over design, specification, and budget.
Custom Build - Design It Your Way
Abbeydawn Rise offers the rare opportunity to work closely with experienced design and build professionals to deliver a home tailored entirely to you. From early concept through to completion, expert support is available at every stage, making the custom-build process clear, structured, and rewarding.
Mortgages
Abbeydawn Rise is supported by BuildStore Mortgage Services, the UK's leading self-build and custom-build mortgage provider. Specialist advice is available to help buyers explore funding solutions specifically designed for serviced plot and custom build projects.
Location
Situated on Cholesbury Road, Wiggington, Abbeydawn Rise enjoys a tranquil rural setting just outside the historic market town of Tring. Residents benefit from the best of both worlds - countryside living with easy access to local amenities, well-regarded schools, and transport links.
Tring station provides direct services to London Euston in under 40 minutes, while the surrounding Chiltern Hills offer outstanding walking, cycling, and outdoor leisure opportunities.
A Boutique, Private Setting
Thoughtfully designed to sit harmoniously within its natural surroundings, Abbeydawn Rise features mature trees, generous plot sizes, and a layout that prioritises privacy, outlook, and space. With only two plots in total - and now just one remaining - this development delivers a level of exclusivity that simply cannot be replicated.
Investment & Value
Purchasing a serviced plot at Abbeydawn Rise offers compelling long-term value. Stamp Duty Land Tax is payable only on the plot, not the build cost, providing meaningful savings and the opportunity to create immediate equity through a high-quality bespoke home.
Viewings & Enquiries
Opportunities of this nature - a single remaining plot in a private, countryside development - are increasingly rare.
For further information or to arrange a private site visit, contact our sales team today.
Brochures
Sales Brochure- COUNCIL TAXA payment made to your local authority in order to pay for local services like schools, libraries, and refuse collection. The amount you pay depends on the value of the property.Read more about council Tax in our glossary page.
- Ask agent
- PARKINGDetails of how and where vehicles can be parked, and any associated costs.Read more about parking in our glossary page.
- Garage,Secure,Driveway,Gated,EV charging,Private
- GARDENA property has access to an outdoor space, which could be private or shared.
- Front garden,Patio,Private garden,Enclosed garden,Rear garden,Terrace,Back garden
- ACCESSIBILITYHow a property has been adapted to meet the needs of vulnerable or disabled individuals.Read more about accessibility in our glossary page.
- Lateral living,Wet room,Wide doorways,Ramped access,Level access shower,Level access
Energy performance certificate - ask agent
Abbeydawn Rise, Cholesbury Road, HP23
Add an important place to see how long it'd take to get there from our property listings.
__mins driving to your place
Get an instant, personalised result:
- Show sellers you’re serious
- Secure viewings faster with agents
- No impact on your credit score
Your mortgage
Notes
Staying secure when looking for property
Ensure you're up to date with our latest advice on how to avoid fraud or scams when looking for property online.
Visit our security centre to find out moreDisclaimer - Property reference ADR_Plot2GDV. The information displayed about this property comprises a property advertisement. Rightmove.co.uk makes no warranty as to the accuracy or completeness of the advertisement or any linked or associated information, and Rightmove has no control over the content. This property advertisement does not constitute property particulars. The information is provided and maintained by Custom Build Homes, Covering Nationwide. Please contact the selling agent or developer directly to obtain any information which may be available under the terms of The Energy Performance of Buildings (Certificates and Inspections) (England and Wales) Regulations 2007 or the Home Report if in relation to a residential property in Scotland.
*This is the average speed from the provider with the fastest broadband package available at this postcode. The average speed displayed is based on the download speeds of at least 50% of customers at peak time (8pm to 10pm). Fibre/cable services at the postcode are subject to availability and may differ between properties within a postcode. Speeds can be affected by a range of technical and environmental factors. The speed at the property may be lower than that listed above. You can check the estimated speed and confirm availability to a property prior to purchasing on the broadband provider's website. Providers may increase charges. The information is provided and maintained by Decision Technologies Limited. **This is indicative only and based on a 2-person household with multiple devices and simultaneous usage. Broadband performance is affected by multiple factors including number of occupants and devices, simultaneous usage, router range etc. For more information speak to your broadband provider.
Map data ©OpenStreetMap contributors.




