2 bedroom cottage for sale
Kington Magna, Gillingham, SP8

- PROPERTY TYPE
Cottage
- BEDROOMS
2
- BATHROOMS
2
- SIZE
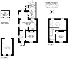
1,590 sq ft
148 sq m
- TENUREDescribes how you own a property. There are different types of tenure - freehold, leasehold, and commonhold.Read more about tenure in our glossary page.
Freehold
Key features
- Porch
- Sitting Room
- Kitchen/Dining/Living Room
- Utility Room/Boot Room
- Separate WC
- Master Bedroom with Shower
- Bedroom Two
- Bathroom
- Garage & Car Parking
- Gardens
Description
The property is approached off the lane onto hard standing which runs between the house and the garage to a large car parking area. There is a small front garden bounded by black metal railings with lawned area and secure access down the side to the boiler and oil tank. The majority of the garden lies to the rear and is accessed from both the car parking area and the kitchen/dining room onto a large terrace. The garden is laid principally to lawn with tall hedging either side leading to a gate through which there is a large rectangular area of garden with magnificent walnut tree and a variety of mature trees including willow, apple and plum. There is a garden office with power and wifi, greenhouse and two further wooden sheds.
The Old School House is situated close to the centre of the popular village of Kington Magna in a conservation area. The village has a 14th century parish church and village hall, while the nearby market town of Gillingham has a wide range of everyday facilities including shops, a Waitrose supermarket, banks, two doctor’s surgeries and a mainline railway station (London Waterloo approximately 2 hours). Castle Cary is 13.5 miles (London Paddington approximately 1 hour 45 minutes). There are a wider range of facilities in nearby Shaftesbury and Sherborne and for more extensive requirements there are the regional centres of Salisbury and Bath, all within easy motoring distance. The A303 lies approximately 5 miles to the north giving access to the south west and London, via the M3.
* Photographs taken September 2021, except kitchen which has been updated recently and the photosgraphs re-taken in September 2025. The floorplan has also been updated.
Brochures
Particulars- COUNCIL TAXA payment made to your local authority in order to pay for local services like schools, libraries, and refuse collection. The amount you pay depends on the value of the property.Read more about council Tax in our glossary page.
- Band: D
- PARKINGDetails of how and where vehicles can be parked, and any associated costs.Read more about parking in our glossary page.
- Yes
- GARDENA property has access to an outdoor space, which could be private or shared.
- Yes
- ACCESSIBILITYHow a property has been adapted to meet the needs of vulnerable or disabled individuals.Read more about accessibility in our glossary page.
- Ask agent
Kington Magna, Gillingham, SP8
Add an important place to see how long it'd take to get there from our property listings.
__mins driving to your place
Get an instant, personalised result:
- Show sellers you’re serious
- Secure viewings faster with agents
- No impact on your credit score
Your mortgage
Notes
Staying secure when looking for property
Ensure you're up to date with our latest advice on how to avoid fraud or scams when looking for property online.
Visit our security centre to find out moreDisclaimer - Property reference SHA210069. The information displayed about this property comprises a property advertisement. Rightmove.co.uk makes no warranty as to the accuracy or completeness of the advertisement or any linked or associated information, and Rightmove has no control over the content. This property advertisement does not constitute property particulars. The information is provided and maintained by Jackson-Stops, Shaftesbury. Please contact the selling agent or developer directly to obtain any information which may be available under the terms of The Energy Performance of Buildings (Certificates and Inspections) (England and Wales) Regulations 2007 or the Home Report if in relation to a residential property in Scotland.
*This is the average speed from the provider with the fastest broadband package available at this postcode. The average speed displayed is based on the download speeds of at least 50% of customers at peak time (8pm to 10pm). Fibre/cable services at the postcode are subject to availability and may differ between properties within a postcode. Speeds can be affected by a range of technical and environmental factors. The speed at the property may be lower than that listed above. You can check the estimated speed and confirm availability to a property prior to purchasing on the broadband provider's website. Providers may increase charges. The information is provided and maintained by Decision Technologies Limited. **This is indicative only and based on a 2-person household with multiple devices and simultaneous usage. Broadband performance is affected by multiple factors including number of occupants and devices, simultaneous usage, router range etc. For more information speak to your broadband provider.
Map data ©OpenStreetMap contributors.







