2 bedroom detached bungalow for sale
Mitchem Close, West Kingsdown

- PROPERTY TYPE
Detached Bungalow
- BEDROOMS
2
- BATHROOMS
1
- SIZE
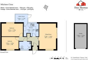
753 sq ft
70 sq m
- TENUREDescribes how you own a property. There are different types of tenure - freehold, leasehold, and commonhold.Read more about tenure in our glossary page.
Freehold
Key features
- No Forward Chain
- Quiet Cul-De-Sac Location
- Walking Distance To Shops
- Extension Potential (STPP)
- Fantastic Plot Width
- Single Garage & Driveway
Description
Offered as a “blank canvas” and with the benefit of NO FORWARD CHAIN is this detached bungalow, positioned within a quiet cul-de-sac in the village of West Kingsdown.
Occupying a plot with generous width, the property offers a wealth of potential for modernisation and improvement, but is certainly ready for immediate occupancy.
The property includes a detached garage and a tandem driveway for 1-2 vehicles. There is additional, unrestricted on-street parking, if necessary.
Whilst the property does warrant some internal modernisation, it features generous room proportions and could suit those looking to downsize, or maybe those looking to put their own stamp on their next home.
The accommodation includes an entrance porch and hallway, which leads to a bright and spacious reception room, to the right. From here, there are sliding doors to the South-facing rear garden.
There is a separate fitted kitchen which leads to a utility lean-to, at the rear. Again, this offers rear access for convenience.
Both bedrooms are doubles by dimension, with a wet-room style shower room, then completing the accommodation.
Further benefits include gas central heating, double glazing, a loft space for storage, and fantastic potential (STPP) for extension or conversion.
The semi-rural village of West Kingsdown is located within the Sevenoaks district. Local amenities include a parade of shops on Hever Road which is within walking distance. This includes a pharmacy, a recently refurbished Co-op store, a gym and a post office, amongst more. Local bus routes provide access to nearby towns, as well as Bluewater Shopping Centre. The village KCC library/pavilion and village hall and a selection of public houses, are also within a short stroll.
The property benefits from easy access to the A20 and M20, for routes to Swanley, Sevenoaks, Gatwick and London. Nearest train links are from Borough Green and Wrotham (for access to London Victoria, London Bridge or London Charing Cross), or for a faster route, Swanley station is within a 15 minute drive.
Enquire now to book your viewing slot.
Tenure: Freehold
Council Tax Band: D
Brochures
Brochure 1- COUNCIL TAXA payment made to your local authority in order to pay for local services like schools, libraries, and refuse collection. The amount you pay depends on the value of the property.Read more about council Tax in our glossary page.
- Band: D
- PARKINGDetails of how and where vehicles can be parked, and any associated costs.Read more about parking in our glossary page.
- Garage,Driveway,Off street
- GARDENA property has access to an outdoor space, which could be private or shared.
- Yes
- ACCESSIBILITYHow a property has been adapted to meet the needs of vulnerable or disabled individuals.Read more about accessibility in our glossary page.
- Ask agent
Mitchem Close, West Kingsdown
Add an important place to see how long it'd take to get there from our property listings.
__mins driving to your place
Get an instant, personalised result:
- Show sellers you’re serious
- Secure viewings faster with agents
- No impact on your credit score

Your mortgage
Notes
Staying secure when looking for property
Ensure you're up to date with our latest advice on how to avoid fraud or scams when looking for property online.
Visit our security centre to find out moreDisclaimer - Property reference S1565876. The information displayed about this property comprises a property advertisement. Rightmove.co.uk makes no warranty as to the accuracy or completeness of the advertisement or any linked or associated information, and Rightmove has no control over the content. This property advertisement does not constitute property particulars. The information is provided and maintained by Dan Thomas & Co, Longfield. Please contact the selling agent or developer directly to obtain any information which may be available under the terms of The Energy Performance of Buildings (Certificates and Inspections) (England and Wales) Regulations 2007 or the Home Report if in relation to a residential property in Scotland.
*This is the average speed from the provider with the fastest broadband package available at this postcode. The average speed displayed is based on the download speeds of at least 50% of customers at peak time (8pm to 10pm). Fibre/cable services at the postcode are subject to availability and may differ between properties within a postcode. Speeds can be affected by a range of technical and environmental factors. The speed at the property may be lower than that listed above. You can check the estimated speed and confirm availability to a property prior to purchasing on the broadband provider's website. Providers may increase charges. The information is provided and maintained by Decision Technologies Limited. **This is indicative only and based on a 2-person household with multiple devices and simultaneous usage. Broadband performance is affected by multiple factors including number of occupants and devices, simultaneous usage, router range etc. For more information speak to your broadband provider.
Map data ©OpenStreetMap contributors.




