
Alma Terrace, St. Leonards-On-Sea

- PROPERTY TYPE
Terraced
- BEDROOMS
4
- BATHROOMS
1
- SIZE
1,593 sq ft
148 sq m
- TENUREDescribes how you own a property. There are different types of tenure - freehold, leasehold, and commonhold.Read more about tenure in our glossary page.
Freehold
Key features
- Four Bedrooms
- Fantastic Kitchen and Breakfast Room
- Walking Distance to Many Schools
- Beautiful Interiors
- Rear Garden
- Accommodation Over Three Floors
- Close to Silverhill Village and Supermarket
- Gas Central Heating
- Open Fire and Floor Boards
Description
A beautifully presented and spacious Victorian family home, ideally situated on the edge of Silverhill Village, St Leonards, within close proximity to a good selection of local schools, supermarkets, other amenities, and Alexandra Park. The seafront, Hastings town centre, and Hastings itself are all just a short distance away.
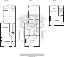
The property offers well-proportioned accommodation arranged over three floors. The ground floor comprises a spacious entrance hallway with useful understairs storage, a family lounge with feature open fireplace leading through to a separate dining area, a stunning fitted kitchen with breakfast area, a ground floor WC, and a useful larder.
To the first floor, there are three double bedrooms and a family bathroom, while the second floor provides a further large double bedroom along with eaves storage.
Externally, the property enjoys a rear garden with established plants and shrubs, together with a storage shed. Additional benefits of this charming Victorian home include gas-fired central heating, uPVC double glazing, and an abundance of original period features.
Viewing comes highly recommended via the vendor’s sole agents, Just Property.
Front Door -
Entrance Porch -
Hallway - 6.10 (20'0") -
Under Stairs Storage Area -
Lounge Opening Into Dining Area - 7.40 x 3.62 (24'3" x 11'10") -
Kitchen / Breakfast Room - 6.13 x 3.65 (20'1" x 11'11") -
Wc -
Larder -
Stairs To Landing -
Bedroom - 3.73 x 3.21 (12'2" x 10'6") -
Bedroom - 3.74 x 3.06 (12'3" x 10'0") -
Bedroom - 4.68 x 3.44 (15'4" x 11'3") -
Bathroom - 2.46 x 1.77 (8'0" x 5'9") -
Stairs To Landing -
Bedroom - 4.92 x 4.78 max (16'1" x 15'8" max) -
Eaves Storage -
Rear Garden -
Storage Shed -
Brochures
Alma Terrace, St. Leonards-On-SeaBrochure- COUNCIL TAXA payment made to your local authority in order to pay for local services like schools, libraries, and refuse collection. The amount you pay depends on the value of the property.Read more about council Tax in our glossary page.
- Band: C
- PARKINGDetails of how and where vehicles can be parked, and any associated costs.Read more about parking in our glossary page.
- On street
- GARDENA property has access to an outdoor space, which could be private or shared.
- Yes
- ACCESSIBILITYHow a property has been adapted to meet the needs of vulnerable or disabled individuals.Read more about accessibility in our glossary page.
- Ask agent
Alma Terrace, St. Leonards-On-Sea
Add an important place to see how long it'd take to get there from our property listings.
__mins driving to your place
Get an instant, personalised result:
- Show sellers you’re serious
- Secure viewings faster with agents
- No impact on your credit score
Your mortgage
Notes
Staying secure when looking for property
Ensure you're up to date with our latest advice on how to avoid fraud or scams when looking for property online.
Visit our security centre to find out moreDisclaimer - Property reference 34411556. The information displayed about this property comprises a property advertisement. Rightmove.co.uk makes no warranty as to the accuracy or completeness of the advertisement or any linked or associated information, and Rightmove has no control over the content. This property advertisement does not constitute property particulars. The information is provided and maintained by Just Property, Hastings. Please contact the selling agent or developer directly to obtain any information which may be available under the terms of The Energy Performance of Buildings (Certificates and Inspections) (England and Wales) Regulations 2007 or the Home Report if in relation to a residential property in Scotland.
*This is the average speed from the provider with the fastest broadband package available at this postcode. The average speed displayed is based on the download speeds of at least 50% of customers at peak time (8pm to 10pm). Fibre/cable services at the postcode are subject to availability and may differ between properties within a postcode. Speeds can be affected by a range of technical and environmental factors. The speed at the property may be lower than that listed above. You can check the estimated speed and confirm availability to a property prior to purchasing on the broadband provider's website. Providers may increase charges. The information is provided and maintained by Decision Technologies Limited. **This is indicative only and based on a 2-person household with multiple devices and simultaneous usage. Broadband performance is affected by multiple factors including number of occupants and devices, simultaneous usage, router range etc. For more information speak to your broadband provider.
Map data ©OpenStreetMap contributors.








