
2 bedroom semi-detached house for sale
Kings Court, West End, Woking, Surrey, GU24

- PROPERTY TYPE
Semi-Detached
- BEDROOMS
2
- BATHROOMS
1
- SIZE
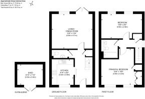
856 sq ft
80 sq m
- TENUREDescribes how you own a property. There are different types of tenure - freehold, leasehold, and commonhold.Read more about tenure in our glossary page.
Freehold
Key features
- Quiet Cul De Sac
- Two Double Bedrooms
- Built in Wardrobe to Master
- Well Fitted Kitchen
- Downstairs WC
- Living/Dining Room
- Pleasant Rear Garden
- Two Allocated Parking Spaces
- Close to Local Schools and Amenities
Description
The property features two generous double bedrooms, with the principal bedroom benefiting from built-in wardrobes. Both bedrooms are served by a contemporary family bathroom fitted with a three piece suite comprising a wash hand basin, W.C. and bath with wall mounted shower and glass shower screen. Stylish floor to ceiling tiling completes this modern space.
On the ground floor, the front aspect kitchen is fitted with a range of shaker style base and eye level units and includes an integrated double oven, gas hob, fridge/freezer and dishwasher. A convenient downstairs cloakroom adds further practicality. To the rear, a spacious living/dining room provides an excellent living and entertaining space, with doors opening directly onto the rear garden.
Outside, the pleasant rear garden is mainly laid to lawn, while the front of the property offers two allocated parking spaces.
The location is particularly well served, with highly regarded local schools including Gordon’s School and Holy Trinity nearby, along with excellent transport links via the M3 and Brookwood mainline station.
Location
The village of West End is ideally located for commuters, with easy access to Junction 3 of the M3, offering connections to Heathrow and Gatwick Airports. The area is well served by highly regarded schools, including Gordon’s School and Holy Trinity Primary School.
Gosden Parade provides a convenient selection of local shops, including a newsagent, hairdresser, and coffee shop. Dining options are excellent, with The Inn at West End located in the village and a variety of popular pubs and restaurants nearby in Chobham. For rail commuters, Brookwood Station (approximately 2.3 miles away) offers regular direct services to London Waterloo.
N.B Annual Charges Apply £600.00
Brochures
Particulars- COUNCIL TAXA payment made to your local authority in order to pay for local services like schools, libraries, and refuse collection. The amount you pay depends on the value of the property.Read more about council Tax in our glossary page.
- Band: D
- PARKINGDetails of how and where vehicles can be parked, and any associated costs.Read more about parking in our glossary page.
- Driveway
- GARDENA property has access to an outdoor space, which could be private or shared.
- Yes
- ACCESSIBILITYHow a property has been adapted to meet the needs of vulnerable or disabled individuals.Read more about accessibility in our glossary page.
- Ask agent
Kings Court, West End, Woking, Surrey, GU24
Add an important place to see how long it'd take to get there from our property listings.
__mins driving to your place
Get an instant, personalised result:
- Show sellers you’re serious
- Secure viewings faster with agents
- No impact on your credit score
Your mortgage
Notes
Staying secure when looking for property
Ensure you're up to date with our latest advice on how to avoid fraud or scams when looking for property online.
Visit our security centre to find out moreDisclaimer - Property reference KNA240555. The information displayed about this property comprises a property advertisement. Rightmove.co.uk makes no warranty as to the accuracy or completeness of the advertisement or any linked or associated information, and Rightmove has no control over the content. This property advertisement does not constitute property particulars. The information is provided and maintained by Seymours Estate Agents, Knaphill. Please contact the selling agent or developer directly to obtain any information which may be available under the terms of The Energy Performance of Buildings (Certificates and Inspections) (England and Wales) Regulations 2007 or the Home Report if in relation to a residential property in Scotland.
*This is the average speed from the provider with the fastest broadband package available at this postcode. The average speed displayed is based on the download speeds of at least 50% of customers at peak time (8pm to 10pm). Fibre/cable services at the postcode are subject to availability and may differ between properties within a postcode. Speeds can be affected by a range of technical and environmental factors. The speed at the property may be lower than that listed above. You can check the estimated speed and confirm availability to a property prior to purchasing on the broadband provider's website. Providers may increase charges. The information is provided and maintained by Decision Technologies Limited. **This is indicative only and based on a 2-person household with multiple devices and simultaneous usage. Broadband performance is affected by multiple factors including number of occupants and devices, simultaneous usage, router range etc. For more information speak to your broadband provider.
Map data ©OpenStreetMap contributors.





