
Brook Street, Hemswell, Gainsborough
- PROPERTY TYPE
Land
- SIZE
Ask agent
Key features
- Sale by Modern Auction (T&Cs apply)
- Subject to an undisclosed Reserve Price
- Buyers fees apply
- FREEHOLD DEVELOPMENT SITE
- FULL PLANNING PERMISSION GRANTED (WL/2025/00206)
- PEACEFUL COUNTRYSIDE VIEWS
- SOUGHT AFTER VILLAGE LOCATION
- Viewings are to be strictly arranged via an appointment with the selling agent.
Description
SUMMARY
Opportunity to acquire a residential building plot situated in the sought-after village of Hemswell, within the conservation area, approximately 7 miles from Gainsborough and 14 miles from Lincoln.
DESCRIPTION
PLANNING PERMISSION GRANTED
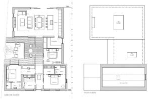
A freehold development site of approx. 49m x 15m with full planning permission for development of a detached dwelling located in the Hemswell conservation area. The plot offers peaceful countryside views to the rear and an existing double garage, while currently benefitting from mains connectivity to water, electricity, sewage and broadband. Completion certificate from building control available on request. The accommodation would offer a mixture of traditional stone-built character and contemporary style, including three double bedrooms, three bathrooms, two dressing areas, utility room and an open-plan living, dining and kitchen, as well as a second-floor storage room. The stone materials required for the build are included.
Auctioneer's Comments
This property is offered through Modern Method of Auction. Should you view, offer or bid your data will be shared with the Auctioneer, iamsold Limited. This method requires both parties to complete the transaction within 56 days, allowing buyers to proceed with mortgage finance (subject to lending criteria, affordability and survey). The buyer is required to sign a reservation agreement and make payment of a non-refundable Reservation Fee of 4.5% of the purchase price including VAT, subject to a minimum of £6600.00 including VAT. This fee is paid in addition to purchase price and will be considered as part of the chargeable consideration for the property in the calculation for stamp duty liability. Buyers will be required to complete an identification process with iamsold and provide proof of how the purchase would be funded. The property has a Buyer Information Pack containing documents about the property. The documents may not tell you everything you need to know, so you must complete your own due diligence before bidding. A sample of the Reservation Agreement and terms and conditions are contained within this pack. The buyer will also make payment of no more than £349 inc. VAT towards the preparation cost of the pack. Please confirm exact costs with the auctioneer. The estate agent and auctioneer may recommend the services of other providers to you, in which they will be paid for the referral. These services are optional, and you will be advised of any payment, in writing before any services are accepted. Listing is subject to a start price and undisclosed reserve price that can change.
Planning Permission
Full planning permission (WL/2025/00206) was granted on the 1st May 2025 for development of 1 dwelling and removal of the remains of the existing building.
1. MONEY LAUNDERING REGULATIONS: Intending purchasers will be asked to produce identification documentation at a later stage and we would ask for your co-operation in order that there will be no delay in agreeing the sale.
2. General: While we endeavour to make our sales particulars fair, accurate and reliable, they are only a general guide to the property and, accordingly, if there is any point which is of particular importance to you, please contact the office and we will be pleased to check the position for you, especially if you are contemplating travelling some distance to view the property.
3. The measurements indicated are supplied for guidance only and as such must be considered incorrect.
4. Services: Please note we have not tested the services or any of the equipment or appliances in this property, accordingly we strongly advise prospective buyers to commission their own survey or service reports before finalising their offer to purchase.
5. THESE PARTICULARS ARE ISSUED IN GOOD FAITH BUT DO NOT CONSTITUTE REPRESENTATIONS OF FACT OR FORM PART OF ANY OFFER OR CONTRACT. THE MATTERS REFERRED TO IN THESE PARTICULARS SHOULD BE INDEPENDENTLY VERIFIED BY PROSPECTIVE BUYERS OR TENANTS. NEITHER SEQUENCE (UK) LIMITED NOR ANY OF ITS EMPLOYEES OR AGENTS HAS ANY AUTHORITY TO MAKE OR GIVE ANY REPRESENTATION OR WARRANTY WHATEVER IN RELATION TO THIS PROPERTY.
Brochures
PDF Property ParticularsFull DetailsBrook Street, Hemswell, Gainsborough
NEAREST STATIONS
Distances are straight line measurements from the centre of the postcode- Kirton Lindsey Station5.3 miles
Notes
Disclaimer - Property reference LCR123652. The information displayed about this property comprises a property advertisement. Rightmove.co.uk makes no warranty as to the accuracy or completeness of the advertisement or any linked or associated information, and Rightmove has no control over the content. This property advertisement does not constitute property particulars. The information is provided and maintained by William H. Brown, Lincoln. Please contact the selling agent or developer directly to obtain any information which may be available under the terms of The Energy Performance of Buildings (Certificates and Inspections) (England and Wales) Regulations 2007 or the Home Report if in relation to a residential property in Scotland.
Auction Fees: The purchase of this property may include associated fees not listed here, as it is to be sold via auction. To find out more about the fees associated with this property please call William H. Brown, Lincoln on 020 3866 6725.
*Guide Price: An indication of a seller's minimum expectation at auction and given as a Guide Price or a range of Guide Prices. This is not necessarily the figure a property will sell for and is subject to change prior to the auction.
Reserve Price: Each auction property will be subject to a Reserve Price below which the property cannot be sold at auction. Normally the Reserve Price will be set within the range of Guide Prices or no more than 10% above a single Guide Price.
Map data ©OpenStreetMap contributors.








