Watt Road, Bridge of Weir

- PROPERTY TYPE
Semi-Detached
- BEDROOMS
3
- BATHROOMS
1
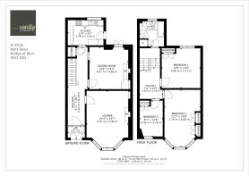
- SIZE
1,528 sq ft
142 sq m
- TENUREDescribes how you own a property. There are different types of tenure - freehold, leasehold, and commonhold.Read more about tenure in our glossary page.
Freehold
Description
St Kilda is immaculately presented and rich in traditional period character, whilst also offering excellent scope for purchasers to upgrade and modernise to their own taste. There is further potential to extend the property, subject to the usual planning consents, making this an ideal long-term family home. A broad and welcoming entrance hallway provides access to the main apartments and the staircase to the upper floor.
To the front of the property, the formal lounge is a bright and elegant room, enhanced by a large bay window that allows an abundance of natural light. To the rear, a cosy sitting or family room features a charming open fireplace, creating a warm and inviting space for evenings at home. Doors give access to the rear garden making this room particularly convenient for entertaining and enjoying the outdoor space during the summer months.
The kitchen is positioned to the rear and is fitted with a range of wall units, offering good storage and workspace, along with direct access to the garden.
On the upper level, there are three well-proportioned bedrooms, all offering excellent flexibility for family living or home working. The family bathroom is finished with a fresh white four-piece suite, including a bath and separate shower. The specification includes gas central heating.
The gardens are a standout feature, with large, south-facing rear grounds providing the perfect setting for summer barbecues, outdoor dining and children's play. Bounded by mature trees and hedging, the garden offers a high degree of privacy and a peaceful, leafy outlook. To the front, a substantial gated driveway provides parking for several cars, while a detached double garage offers secure parking and valuable additional storage.
Bridge of Weir is a highly desirable village, well known for its strong sense of community, excellent local amenities and highly regarded schooling. The area also benefits from convenient access to surrounding towns and Glasgow, making this a superb family home in a prime and well-connected location.
EER band D
Brochures
Home Report- COUNCIL TAXA payment made to your local authority in order to pay for local services like schools, libraries, and refuse collection. The amount you pay depends on the value of the property.Read more about council Tax in our glossary page.
- Ask agent
- PARKINGDetails of how and where vehicles can be parked, and any associated costs.Read more about parking in our glossary page.
- Yes
- GARDENA property has access to an outdoor space, which could be private or shared.
- Yes
- ACCESSIBILITYHow a property has been adapted to meet the needs of vulnerable or disabled individuals.Read more about accessibility in our glossary page.
- Ask agent
Energy performance certificate - ask agent
Watt Road, Bridge of Weir
Add an important place to see how long it'd take to get there from our property listings.
__mins driving to your place
Get an instant, personalised result:
- Show sellers you’re serious
- Secure viewings faster with agents
- No impact on your credit score
Your mortgage
Notes
Staying secure when looking for property
Ensure you're up to date with our latest advice on how to avoid fraud or scams when looking for property online.
Visit our security centre to find out moreDisclaimer - Property reference 101153005199. The information displayed about this property comprises a property advertisement. Rightmove.co.uk makes no warranty as to the accuracy or completeness of the advertisement or any linked or associated information, and Rightmove has no control over the content. This property advertisement does not constitute property particulars. The information is provided and maintained by Vanilla Square, Glasgow. Please contact the selling agent or developer directly to obtain any information which may be available under the terms of The Energy Performance of Buildings (Certificates and Inspections) (England and Wales) Regulations 2007 or the Home Report if in relation to a residential property in Scotland.
*This is the average speed from the provider with the fastest broadband package available at this postcode. The average speed displayed is based on the download speeds of at least 50% of customers at peak time (8pm to 10pm). Fibre/cable services at the postcode are subject to availability and may differ between properties within a postcode. Speeds can be affected by a range of technical and environmental factors. The speed at the property may be lower than that listed above. You can check the estimated speed and confirm availability to a property prior to purchasing on the broadband provider's website. Providers may increase charges. The information is provided and maintained by Decision Technologies Limited. **This is indicative only and based on a 2-person household with multiple devices and simultaneous usage. Broadband performance is affected by multiple factors including number of occupants and devices, simultaneous usage, router range etc. For more information speak to your broadband provider.
Map data ©OpenStreetMap contributors.




