
3 bedroom semi-detached house for sale
Hever Road, Edenbridge

- PROPERTY TYPE
Semi-Detached
- BEDROOMS
3
- BATHROOMS
1
- SIZE
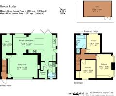
1,494 sq ft
139 sq m
- TENUREDescribes how you own a property. There are different types of tenure - freehold, leasehold, and commonhold.Read more about tenure in our glossary page.
Freehold
Key features
- Character Semi-Detached Former Coach House
- Idyllic Location with Rural Views walkable to Hever Train Station
- Three Double Bedrooms
- Striking Kitchen/Dining Room with Bi-Folds
- Elegant Character Sitting Room & Study/Snug
- Utility/Boot Room, Cloakroom & Laundry Room
- Contemporary Family Bathroom
- Gated Entrance & Gravel Parking Area
- Timber Home Office/Gym
- Attractively Landscaped Level Rear Garden & Terraces
Description
Accommodation - •Elegant sitting room with a feature log burning stove, timber mantle and exposed brick surround, original parquet flooring and wonderful high ceilings with inset pelmet lighting, window with fitted shutters, bespoke fitted bookcases and shelving, sliding doors providing access into the kitchen/dining room.
•Study/snug, ideal as a study or games/television room with aspect to rear overlooking the garden and deep understairs storage cupboard.
•Striking open-plan kitchen/dining room with high vaulted ceiling and bi-fold doors opening the space to the rear terrace and garden, ideal for summer dining and entertaining. Fitted with a comprehensive range of grey high gloss full height units and base units of cupboards and drawers, including a large central island unit and breakfast bar, providing extensive storage space with contrasting quartz worktops. Under mounted sink, Leisure range cooker with halogen hob, integrated dishwasher, bank of units incorporating full height integrated fridge and freezer. Open plan to the dining area with fitted bench seating, also providing additional storage with picture window offering a lovely view over the garden. Ceramic tiled flooring and underfloor heating throughout and stable door providing access to the parking area.
•Off the kitchen is the utility room, a useful area with sink, solid wood worktops and space for a washing machine and tumble dryer. Full height in-built storage area, ideal for coats and boots, door into the modern cloakroom and further door to the laundry room with worktops and Grant oil fired boiler. Windows with fitted shutters and continuation of the ceramic tiled flooring with underfloor heating.
•Staircase from lobby to first floor landing providing access to the principal bedrooms and family bathroom.
•Delightful main bedroom enjoying a beamed vaulted ceiling with mezzanine open loft storage area, fitted wardrobes, painted exposed brick fireplace and attractive corner casement windows adding to its charm.
•Second double bedroom also having fitted wardrobes and aspect to front affording a lovely view over the adjacent sheep field and countryside beyond. Third bedroom, a smaller double with high ceilings, aspect to rear and outlook over the garden.
•Contemporary family bathroom fitted with a white suite comprising close coupled toilet, vanity basin, panelled bath with handheld shower attachment, separate tiled shower enclosure with rainfall head and glazed screen. Window to the garden and attractive Victorian style tiled flooring.
•The property is approached over a shared driveway through a five bar gate leading to the gravel parking area with venetian fencing, mature beech hedging and access to the garden. The landscaped level rear garden is mainly laid to lawn with extensive terrace and pathway leading to the far rear, apple trees, venetian and post and rail fencing. Further feature circular terrace and garden storage shed. Fully insulated home office outbuilding with power and light, currently utilised as a gym.
•Services & Points of Note: Mains electricity. Oil central heating. Underfloor heating to the kitchen/dining, utility & laundry room. Nest controls. Shared private drainage treatment plant with neighbouring property. Screened oil tank. Right of access for neighbouring property over driveway for parking and rear garden for oil delivery and to service the sewage treatment plant (in neighbours garden).
•Council Tax: F – Sevenoaks District Council
•EPC: D
Situation - Brocas Lodge is situated in a delightful rural location within the High Weald Area of Outstanding Natural Beauty on the outskirts of the historic and picturesque village of Hever, renowned for the Castle where Anne Boleyn and Catherine of Aragon resided with its magnificent gardens and lake. The village enjoys local amenities including King Henry VIII public house, church, primary school, golf course and railway station walkable from the property offering services to London Bridge. The nearby town of Edenbridge offers shops and supermarkets including Waitrose, two mainline stations offering services to London Bridge/Victoria within 45 minutes and a large leisure centre. Sevenoaks, Hildenborough, Oxted, Tunbridge Wells and Tonbridge are all accessible and offer comprehensive shopping, educational, and recreational facilities with stations offering fast connections to London Cannon Street/Charing Cross. The area is well served by schools in the private and state sector with Primary schools nearby including Hever, Chiddingstone, Edenbridge and Four Elms as well as secondary and Grammar schools in Tonbridge, Tunbridge Wells and Sevenoaks and Preparatory schools including Holmewood House, Lingfield School and Hazlewood with Public Schools in Sevenoaks and Tonbridge. The surrounding countryside provides wonderful opportunities for riding, walking and cycling with both Penshurst Place and Chiddingstone Castle within easy reach, sailing at Bough Beech reservoir and racing at Lingfield. The M25 motorway can be accessed nearby at junctions 5 and 6, connecting to Gatwick and Heathrow Airports, the Channel Tunnel and Dover.
Brochures
Brocas Lodge £795,000 2026.pdf- COUNCIL TAXA payment made to your local authority in order to pay for local services like schools, libraries, and refuse collection. The amount you pay depends on the value of the property.Read more about council Tax in our glossary page.
- Band: F
- PARKINGDetails of how and where vehicles can be parked, and any associated costs.Read more about parking in our glossary page.
- Off street
- GARDENA property has access to an outdoor space, which could be private or shared.
- Yes
- ACCESSIBILITYHow a property has been adapted to meet the needs of vulnerable or disabled individuals.Read more about accessibility in our glossary page.
- Ask agent
Hever Road, Edenbridge
Add an important place to see how long it'd take to get there from our property listings.
__mins driving to your place
Get an instant, personalised result:
- Show sellers you’re serious
- Secure viewings faster with agents
- No impact on your credit score



Your mortgage
Notes
Staying secure when looking for property
Ensure you're up to date with our latest advice on how to avoid fraud or scams when looking for property online.
Visit our security centre to find out moreDisclaimer - Property reference 34412897. The information displayed about this property comprises a property advertisement. Rightmove.co.uk makes no warranty as to the accuracy or completeness of the advertisement or any linked or associated information, and Rightmove has no control over the content. This property advertisement does not constitute property particulars. The information is provided and maintained by James Millard Estate Agents, Hildenborough. Please contact the selling agent or developer directly to obtain any information which may be available under the terms of The Energy Performance of Buildings (Certificates and Inspections) (England and Wales) Regulations 2007 or the Home Report if in relation to a residential property in Scotland.
*This is the average speed from the provider with the fastest broadband package available at this postcode. The average speed displayed is based on the download speeds of at least 50% of customers at peak time (8pm to 10pm). Fibre/cable services at the postcode are subject to availability and may differ between properties within a postcode. Speeds can be affected by a range of technical and environmental factors. The speed at the property may be lower than that listed above. You can check the estimated speed and confirm availability to a property prior to purchasing on the broadband provider's website. Providers may increase charges. The information is provided and maintained by Decision Technologies Limited. **This is indicative only and based on a 2-person household with multiple devices and simultaneous usage. Broadband performance is affected by multiple factors including number of occupants and devices, simultaneous usage, router range etc. For more information speak to your broadband provider.
Map data ©OpenStreetMap contributors.





