
6 bedroom detached house for sale
Coresbrook Way, Knaphill, Woking, GU21

- PROPERTY TYPE
Detached
- BEDROOMS
6
- BATHROOMS
3
- SIZE
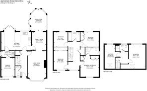
2,036 sq ft
189 sq m
- TENUREDescribes how you own a property. There are different types of tenure - freehold, leasehold, and commonhold.Read more about tenure in our glossary page.
Freehold
Key features
- Walking Distance to Brookwood Mainline Station
- Six Double Bedrooms
- Two Receptions Room
- Close to Knaphill Village
- Garage
- Driveway With Parking For Two Cars and E.V Charging Point
- Recently Updated Ensuite to Master
- Kitchen/Breakfast Room
Description
The top floor has been enhanced by a loft conversion, creating two spacious rooms which share the use of a contemporary shower room, making this an ideal space for older children, guests or home working.
On the first floor, there are four double bedrooms. The principal suite benefits from built-in wardrobes and a recently updated ensuite shower room. The remaining bedrooms are served by a neat and well appointed family bathroom fitted with a modern three piece suite.
The ground floor offers excellent living and entertaining space. A spacious front aspect living room features a charming fireplace fitted with a log burner, while an adjoining reception room is currently utilised as a family room. To the rear, a conservatory with a solid roof provides a comfortable year-round dining area and enjoys views over the garden.
The stunning kitchen is fitted with an extensive range of shaker style units, complemented by granite worktops. Integrated appliances include a double oven, gas hob, fridge/freezer and dishwasher, while a breakfast bar offers informal seating. A downstairs cloakroom and utility room with underfloor heating complete the internal accommodation.
Further benefits include an integral garage, currently used as a home gym.
Outside, the pleasant rear garden is mainly laid to lawn with a patio area ideal for outdoor dining. To the front, a block-paved driveway provides parking for two vehicles and includes an EV charging point.
The property is conveniently located close to Knaphill village, which offers a range of shops along with well regarded primary and lower schools. Brookwood Station is also nearby, providing easy access to London Waterloo, making this an excellent choice for commuters.
Location
Knaphill village has a vibrant range of shops, pubs, restaurants and a Post Office. For more comprehensive shopping Sainsbury's superstore is approximately quarter of a mile away. For commuting, nearby Brookwood station provides a regular service direct to Waterloo. Woking and Guildford. For those who enjoy the outdoors there is Stafford Lake which is ideal for dog walking and nearby Brookwood Country Park ideal for a family stroll on a Sunday.
Brochures
Particulars- COUNCIL TAXA payment made to your local authority in order to pay for local services like schools, libraries, and refuse collection. The amount you pay depends on the value of the property.Read more about council Tax in our glossary page.
- Band: F
- PARKINGDetails of how and where vehicles can be parked, and any associated costs.Read more about parking in our glossary page.
- Garage,Driveway,Off street
- GARDENA property has access to an outdoor space, which could be private or shared.
- Yes
- ACCESSIBILITYHow a property has been adapted to meet the needs of vulnerable or disabled individuals.Read more about accessibility in our glossary page.
- Ask agent
Coresbrook Way, Knaphill, Woking, GU21
Add an important place to see how long it'd take to get there from our property listings.
__mins driving to your place
Get an instant, personalised result:
- Show sellers you’re serious
- Secure viewings faster with agents
- No impact on your credit score
Your mortgage
Notes
Staying secure when looking for property
Ensure you're up to date with our latest advice on how to avoid fraud or scams when looking for property online.
Visit our security centre to find out moreDisclaimer - Property reference KNA240117. The information displayed about this property comprises a property advertisement. Rightmove.co.uk makes no warranty as to the accuracy or completeness of the advertisement or any linked or associated information, and Rightmove has no control over the content. This property advertisement does not constitute property particulars. The information is provided and maintained by Seymours Estate Agents, Knaphill. Please contact the selling agent or developer directly to obtain any information which may be available under the terms of The Energy Performance of Buildings (Certificates and Inspections) (England and Wales) Regulations 2007 or the Home Report if in relation to a residential property in Scotland.
*This is the average speed from the provider with the fastest broadband package available at this postcode. The average speed displayed is based on the download speeds of at least 50% of customers at peak time (8pm to 10pm). Fibre/cable services at the postcode are subject to availability and may differ between properties within a postcode. Speeds can be affected by a range of technical and environmental factors. The speed at the property may be lower than that listed above. You can check the estimated speed and confirm availability to a property prior to purchasing on the broadband provider's website. Providers may increase charges. The information is provided and maintained by Decision Technologies Limited. **This is indicative only and based on a 2-person household with multiple devices and simultaneous usage. Broadband performance is affected by multiple factors including number of occupants and devices, simultaneous usage, router range etc. For more information speak to your broadband provider.
Map data ©OpenStreetMap contributors.





