
3 bedroom detached house for sale
Wingfield Drive, Potton, Sandy

- PROPERTY TYPE
Detached
- BEDROOMS
3
- SIZE
Ask agent
- TENUREDescribes how you own a property. There are different types of tenure - freehold, leasehold, and commonhold.Read more about tenure in our glossary page.
Freehold
Key features
- Walled corner plot
- Three bedrooms
- En-suite to the master
- Two reception rooms
- Conservatory
- Cloakroom
- Store room
- Large kitchen
Description
A viewing is highly recommend. Booking through Kennedy & Co.
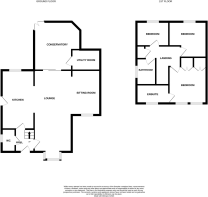
PARTICULARS The property is accessed through the front garden leading to:
PORCH New composite door. Outside lighting. Through to:
ENTRANCE HALL Oak parquet flooring. Radiator. Stairs rising to the first floor.
CLOAKROOM Wash hand basin with cupboard below. W.C. Obscure double glazed window to the side. Tiled flooring. Radiator.
LOUNGE 22' x 10' (6.71m x 3.05m) Double glazed box bay window to the front. Two radiators. Wall mounted electric steam fire. Double glazed patio doors to the conservatory. Parquet flooring. Open plan throughout.
DINING ROOM 12' 5" x 7' 7" (3.78m x 2.31m) Formally the garage space. Double glazed window to the front. Radiator. Parquet flooring.
CONSERVATORY 13' 2" x 13' 7" (4.01m x 4.14m) Double glazed doors and windows to the garden. Radiator. Tiled flooring. Door through to:
STORE AREA 7' 7" x 5' 5" (2.31m x 1.65m) Wall mounted cupboard with work top below. Access to loft space.
KITCHEN/BREAKFAST ROOM 18' x 9' 5" (5.49m x 2.87m) Double glazed window to the rear garden. Double glazed door to the side. High gloss kitchen originally supplied by John Lewis comprising a range of base and wall mounted units with soft clos drawers and cupboards. Acrylic stone worktops with splash guard surround, sink and drainer with mixer tap. AEG oven, hob, extractor and grill. Space and plumbing for washing machine and dishwasher. Space for fridge/freezer. Recessed lighting. Tiled flooring. Understairs cupboard.
LANDING Access to the loft space. Airing cupboard housing the gas boiler.
BEDROOM ONE 10' 3" x 10' 1" (3.12m x 3.07m) Double glazed window to the front. Fitted wardrobes. Radiator.
ENSUITE Obscure double glazed window to the rear. A large/double walk in shower. Vanity unit housing the wash hand basin, storage cupboards under and mirror fronted cupboard above. W.C. Radiator. Tiled flooring.
BEDROOM TWO 9' 6" x 10' 3" (2.9m x 3.12m) Two double glazed windows to the rear. Radiator.
BATHROOM Three piece suit comprising: Panelled bath with hand held shower. Pedestal wash hand basin. W.C. Tiled flooring. Radiator.
EXTERNALLY Front garden - Wrought iron rail fencing leading to a low maintenance garden space. Gated access to the rear.
Off road parking to the side.
Rear garden - Walled mature rear garden with mature trees and shrubbery. Laid to lawn and patio area. Gated access to the side.
Brochures
(S5) Brochure - L...- COUNCIL TAXA payment made to your local authority in order to pay for local services like schools, libraries, and refuse collection. The amount you pay depends on the value of the property.Read more about council Tax in our glossary page.
- Band: D
- PARKINGDetails of how and where vehicles can be parked, and any associated costs.Read more about parking in our glossary page.
- Yes
- GARDENA property has access to an outdoor space, which could be private or shared.
- Yes
- ACCESSIBILITYHow a property has been adapted to meet the needs of vulnerable or disabled individuals.Read more about accessibility in our glossary page.
- Ask agent
Wingfield Drive, Potton, Sandy
Add an important place to see how long it'd take to get there from our property listings.
__mins driving to your place
Get an instant, personalised result:
- Show sellers you’re serious
- Secure viewings faster with agents
- No impact on your credit score



Your mortgage
Notes
Staying secure when looking for property
Ensure you're up to date with our latest advice on how to avoid fraud or scams when looking for property online.
Visit our security centre to find out moreDisclaimer - Property reference 103515003706. The information displayed about this property comprises a property advertisement. Rightmove.co.uk makes no warranty as to the accuracy or completeness of the advertisement or any linked or associated information, and Rightmove has no control over the content. This property advertisement does not constitute property particulars. The information is provided and maintained by Kennedy & Co Sales and Lettings, Potton. Please contact the selling agent or developer directly to obtain any information which may be available under the terms of The Energy Performance of Buildings (Certificates and Inspections) (England and Wales) Regulations 2007 or the Home Report if in relation to a residential property in Scotland.
*This is the average speed from the provider with the fastest broadband package available at this postcode. The average speed displayed is based on the download speeds of at least 50% of customers at peak time (8pm to 10pm). Fibre/cable services at the postcode are subject to availability and may differ between properties within a postcode. Speeds can be affected by a range of technical and environmental factors. The speed at the property may be lower than that listed above. You can check the estimated speed and confirm availability to a property prior to purchasing on the broadband provider's website. Providers may increase charges. The information is provided and maintained by Decision Technologies Limited. **This is indicative only and based on a 2-person household with multiple devices and simultaneous usage. Broadband performance is affected by multiple factors including number of occupants and devices, simultaneous usage, router range etc. For more information speak to your broadband provider.
Map data ©OpenStreetMap contributors.





