3 bedroom semi-detached house for sale
Deynecourt Gardens, Wanstead

- PROPERTY TYPE
Semi-Detached
- BEDROOMS
3
- BATHROOMS
1
- SIZE
Ask agent
- TENUREDescribes how you own a property. There are different types of tenure - freehold, leasehold, and commonhold.Read more about tenure in our glossary page.
Freehold
Key features
- Semi-detached house
- Three bedrooms
- Two formal receptions
- Potential to extend (STPP)
- Chain free
- Off street parking
- Side access
- West facing garden
- 0.4 Miles to Nightingale Primary School
- 0.7 Miles to Wanstead High Street
Description
This attractive double-bayed home presents an excellent opportunity for purchasers seeking to put their own stamp on a property. Situated just 0.7 miles from Wanstead’s vibrant High Street and with both Wanstead and Snaresbrook Central Line stations within 0.9 miles, it offers convenient access to local amenities as well as the City and West End. Just a short stroll away, Roding Valley Park provides expansive walks, community tennis courts, and a children’s play area. Families will also appreciate the proximity to the highly regarded Nightingale Primary School, only 0.4 miles from the property, further enhancing the appeal of this well-located residence.
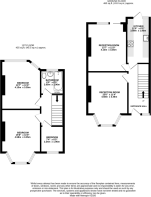
The property retains its traditional layout, with the ground floor comprising a formal sitting room, a dining room with large doors opening onto the rear garden, and a classic galley kitchen featuring dual runs of cabinetry. The generous plot and favourable westerly aspect provide ample potential to reconfigure or extend the rear of the property (STPP), creating a larger open-plan kitchen/dining/family space should one desire.
Upstairs, the first floor offers two well-proportioned double bedrooms, a single bedroom, and a family bathroom. For those seeking further accommodation, the loft provides scope for conversion to create a fourth bedroom and additional shower room (STPP), but is equally as useful for additional storage needs.
Externally, the property benefits from a driveway and side access, with the potential to create direct entry to the rear garden by installing a gate within the existing fencing - ideal for bikes, garden equipment, or simply enhancing day-to-day convenience.
The rear garden, laid to both patio and lawn, enjoys a desirable westerly aspect, providing an ideal space for summer entertaining, relaxing, or al fresco dining. The property is offered with no onward chain, providing a straightforward and hassle-free move.
EPC Rating: E54
Council Tax Band: E
An Anti-Money Laundering fee will be applicable to all purchasers at a cost of £18.00 per person.
Reception Room - 15' x 11'4" -
Dining Room - 13'7" x 10'12" -
Kitchen - 12'9" x 6'5" -
Bedroom - 15' x 10'12" -
Bedroom - 13'7" x 10'12" -
Brochures
Deynecourt Gardens, WansteadBrochure- COUNCIL TAXA payment made to your local authority in order to pay for local services like schools, libraries, and refuse collection. The amount you pay depends on the value of the property.Read more about council Tax in our glossary page.
- Band: E
- PARKINGDetails of how and where vehicles can be parked, and any associated costs.Read more about parking in our glossary page.
- Driveway
- GARDENA property has access to an outdoor space, which could be private or shared.
- Yes
- ACCESSIBILITYHow a property has been adapted to meet the needs of vulnerable or disabled individuals.Read more about accessibility in our glossary page.
- Ask agent
Deynecourt Gardens, Wanstead
Add an important place to see how long it'd take to get there from our property listings.
__mins driving to your place
Get an instant, personalised result:
- Show sellers you’re serious
- Secure viewings faster with agents
- No impact on your credit score
Your mortgage
Notes
Staying secure when looking for property
Ensure you're up to date with our latest advice on how to avoid fraud or scams when looking for property online.
Visit our security centre to find out moreDisclaimer - Property reference 34414835. The information displayed about this property comprises a property advertisement. Rightmove.co.uk makes no warranty as to the accuracy or completeness of the advertisement or any linked or associated information, and Rightmove has no control over the content. This property advertisement does not constitute property particulars. The information is provided and maintained by Petty Son & Prestwich Ltd, London. Please contact the selling agent or developer directly to obtain any information which may be available under the terms of The Energy Performance of Buildings (Certificates and Inspections) (England and Wales) Regulations 2007 or the Home Report if in relation to a residential property in Scotland.
*This is the average speed from the provider with the fastest broadband package available at this postcode. The average speed displayed is based on the download speeds of at least 50% of customers at peak time (8pm to 10pm). Fibre/cable services at the postcode are subject to availability and may differ between properties within a postcode. Speeds can be affected by a range of technical and environmental factors. The speed at the property may be lower than that listed above. You can check the estimated speed and confirm availability to a property prior to purchasing on the broadband provider's website. Providers may increase charges. The information is provided and maintained by Decision Technologies Limited. **This is indicative only and based on a 2-person household with multiple devices and simultaneous usage. Broadband performance is affected by multiple factors including number of occupants and devices, simultaneous usage, router range etc. For more information speak to your broadband provider.
Map data ©OpenStreetMap contributors.







