6 bedroom detached house for sale
Fulbrook, Nr Burford

- PROPERTY TYPE
Detached
- BEDROOMS
6
- BATHROOMS
4
- SIZE
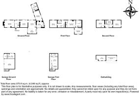
4,046 sq ft
376 sq m
- TENUREDescribes how you own a property. There are different types of tenure - freehold, leasehold, and commonhold.Read more about tenure in our glossary page.
Freehold
Description
This highly desirable home perfectly marries character charm with flexible and stylish family living. The main house is set over three floors and comprises entrance hall, principle sitting room with feature fire place, family sitting room with log burner, open plan kitchen/dining/living room with AGA, utility room, family room, shower room, office, landing, principle bedroom suite with en suite bathroom and dressing room, further double bedroom, family bathroom, second floor landing and three second floor bedrooms. In addition to the main house, there is a versatile self-contained one bedroomed annex with shower room and private outside space perfect for visiting guests or as the current owners have created, a successfully holiday let. Further outbuildings include a two-bay car port (under the annex), a separate outdoor office with bathroom and a gym. The gardens are a real highlight. They are mainly laid to lawn, the area closest to the house is formal garden with extensive patio, seating areas and a covered hot tub deck. A small stream runs down to the far end of the gardens which are given over to an orchard and there are further outbuildings which are perfect for storing the equipment necessary for maintaining such a garden and home. There is plentiful off road driveway parking and the property is securely fenced and is accessed via a five-bar gate.
DISTANCES
Burford 1/2 mile / Charlbury (mainline to London-Paddington) 8 miles / Witney 9 miles / Stow-on-the-Wold 10 miles / Oxford 21 miles / Cheltenham 23 miles / Heathrow 65 miles (All distances are approximate)
SITUATION
Fulbrook is located just across the River Windrush from the historic Cotswold town of Burford, it is raised above the river valley and has a parish church and a 17th century Cotswold stone pub, The Carpenters Arms, which is very friendly and well-reviewed. Burford has a large number of pubs, restaurants and hotels catering for all tastes, the shops provide a good selection of produce and clothing, although High Street chains have yet to make a significant impression on the town. State and private schooling in the area is outstanding, with schools in Burford, Bourton on the Water, Kingham and Cokethorpe.
DIRECTIONS
From Burford drive through Fulbrook past Carpenters Arms and War Memorial. As you start to go up hill out of village house is on the left immediately before speed derestriction sign. Drive through gate and park to left of garage.
VIEWING ARRANGEMENTS
Strictly by appointment with Penny & Sinclair
TENURE & POSSESSION
This property is freehold and offered with vacant possession upon completion.
SERVICES
Mains water and electricity. Oil fired central heating. The main House is connected to mains sewerage. Annexe has a private septic tank for drainage.
COUNCIL TAX
Council Tax band G
LOCAL AUTHORITY
West Oxfordshire District Council
IMPORTANT NOTICE
Penny & Sinclair, their clients and any joint agent gives notice to anyone reading these particulars that: i) the particulars do not constitute part of an offer or contract; ii) all descriptions, dimensions, references to the condition and necessary permissions for use and occupation, and other details are given without responsibility and any intending purchasers should not rely on them as statement or representations of fact. Iii) the text, photographs and plans are guidelines only and are not necessarily comprehensive. Any reference to alterations to, or use of, any part of the property does not mean that all necessary planning, building regulations or other consents have been obtained and Penny & Sinclair have not tested any services, equipment or facilities. A buyer or lessee must satisfy themselves by inspection or otherwise. Iv) the descriptions provided therein represent the opinion of the author and whilst given in good faith should not be construed as statements (truncated)
- COUNCIL TAXA payment made to your local authority in order to pay for local services like schools, libraries, and refuse collection. The amount you pay depends on the value of the property.Read more about council Tax in our glossary page.
- Band: G
- PARKINGDetails of how and where vehicles can be parked, and any associated costs.Read more about parking in our glossary page.
- Garage,Covered,Driveway
- GARDENA property has access to an outdoor space, which could be private or shared.
- Yes
- ACCESSIBILITYHow a property has been adapted to meet the needs of vulnerable or disabled individuals.Read more about accessibility in our glossary page.
- No wheelchair access
Energy performance certificate - ask agent
Fulbrook, Nr Burford
Add an important place to see how long it'd take to get there from our property listings.
__mins driving to your place
Get an instant, personalised result:
- Show sellers you’re serious
- Secure viewings faster with agents
- No impact on your credit score
Your mortgage
Notes
Staying secure when looking for property
Ensure you're up to date with our latest advice on how to avoid fraud or scams when looking for property online.
Visit our security centre to find out moreDisclaimer - Property reference BSS240086. The information displayed about this property comprises a property advertisement. Rightmove.co.uk makes no warranty as to the accuracy or completeness of the advertisement or any linked or associated information, and Rightmove has no control over the content. This property advertisement does not constitute property particulars. The information is provided and maintained by Penny & Sinclair, Burford. Please contact the selling agent or developer directly to obtain any information which may be available under the terms of The Energy Performance of Buildings (Certificates and Inspections) (England and Wales) Regulations 2007 or the Home Report if in relation to a residential property in Scotland.
*This is the average speed from the provider with the fastest broadband package available at this postcode. The average speed displayed is based on the download speeds of at least 50% of customers at peak time (8pm to 10pm). Fibre/cable services at the postcode are subject to availability and may differ between properties within a postcode. Speeds can be affected by a range of technical and environmental factors. The speed at the property may be lower than that listed above. You can check the estimated speed and confirm availability to a property prior to purchasing on the broadband provider's website. Providers may increase charges. The information is provided and maintained by Decision Technologies Limited. **This is indicative only and based on a 2-person household with multiple devices and simultaneous usage. Broadband performance is affected by multiple factors including number of occupants and devices, simultaneous usage, router range etc. For more information speak to your broadband provider.
Map data ©OpenStreetMap contributors.







