Light industrial facility for rent
Unit 1, Maylite Trading Estate, Berrow Green Road, Martley, Worcester, WR6 6PQ
Letting details
- Let available date:
- Now
- Deposit:
- £3,900A deposit provides security for a landlord against damage, or unpaid rent by a tenant.Read more about deposit in our glossary page.
- Let type:
- Long term
- Furnish type:
- Unfurnished
- PROPERTY TYPE
Light Industrial
- SIZE
1,658 sq ft
154 sq m
Key features
- Alarm
- Double glazed
- Parking
- Broadband/ADSL
- CCTV
- 3 Phase
- Roller Shutters
- Offices
Description
Property number 52816. Enquire through Rightmove's messaging system and we'll respond within 5 minutes, 24/7
Versatile Industrial & Office Premises, Martley, Worcestershire, WR6
Warehouses, Factory & Office Spaces in a Strategic Rural Location
A rare opportunity to lease part of a multi-functional commercial unit in the heart of the Worcestershire countryside. This property offers a perfect blend of high-bay industrial space (factory/warehouse) and professional office accommodation, making it an ideal headquarters for a growing SME, distribution hub or light manufacturing business. Suitable for business classes such as Light industry (B1), general industry (B2), storage/distribution (B8), offices, workshops, and e-commerce (no mechanics / vehicle storage).
Available on a new Full Repairing and Insuring Lease, for a term of years to be agreed (minimum 3 years).
The Property
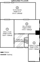
Warehouse / Factory Space: 1658sqft plus use of loading bay area (roller shutter opening) of 490sqft. (More space available, an additional 1584sqft and/or 1366sqft if required plus offices). Open-plan, high-ceiling (10.6ft), reinforced concrete flooring, 3-phase power.
Office Accommodation also available: x4 individual offices available, (sizes 397sqft, 313sqft, 255sqft, 137sqft) of modern, light-filled office space. Includes high-speed broadband, central heating.
Facilities: Dedicated kitchen/staff breakroom, male/female WCs, and 2 allocated parking spaces with ample room for HGV loading/unloading. Additional free parking available on the trading estate (1 minute walk) for staff and a free customer car parking area.
Location & Connectivity
Located in Martley (WR6), this property provides a peaceful, professional environment away from the congestion of Worcester city centre, while remaining highly accessible:
Worcester City Centre: Approx. 8 miles (20-minute drive).
Motorway Access: Excellent links to the M5 (junctions 5, 6 & 7) for North and Southbound travel.
Local Links: Positioned with easy access to the A443, A449, A4103 and A44, connecting you to Worcester, Stourport, Droitwich, Kidderminster, Leominster, Hereford and the wider West Midlands. M5 junctions 5 and 6 within easy reach.
Why Martley?
Choosing Martley offers your business a unique work-life advantage. You benefit from a dedicated local workforce and a supportive business community, all set against the backdrop of the Malvern Hills and Teme Valley. It is the ideal location for businesses looking to reduce overheads compared to city-centre rates without sacrificing connectivity.
Key Features
Secure Site: alarmed response premises and CCTV.
Flexible Terms: Competitive lease options available.
Ready for Fit-out: Available for immediate occupation.
Unit 1, Maylite Trading Estate, Berrow Green Road, Martley, Worcester, WR6 6PQ
NEAREST STATIONS
Distances are straight line measurements from the centre of the postcode- Worcester Foregate Street Station6.7 miles
Notes
Disclaimer - Property reference 52816. The information displayed about this property comprises a property advertisement. Rightmove.co.uk makes no warranty as to the accuracy or completeness of the advertisement or any linked or associated information, and Rightmove has no control over the content. This property advertisement does not constitute property particulars. The information is provided and maintained by Visum, Nationwide. Please contact the selling agent or developer directly to obtain any information which may be available under the terms of The Energy Performance of Buildings (Certificates and Inspections) (England and Wales) Regulations 2007 or the Home Report if in relation to a residential property in Scotland.
Map data ©OpenStreetMap contributors.







