
Elizabeth Drive, Oadby, Leicestershire, LE2

- PROPERTY TYPE
Semi-Detached
- BEDROOMS
3
- BATHROOMS
1
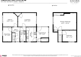
- SIZE
1,033 sq ft
96 sq m
- TENUREDescribes how you own a property. There are different types of tenure - freehold, leasehold, and commonhold.Read more about tenure in our glossary page.
Freehold
Key features
- Well proportioned family home.
- Separate lounge and dining room.
- Downstairs bedroom three.
- Downstairs bathroom.
- Two first floor bedrooms.
- Kitchen and garden room.
- Detached garage.
- Ample driveway parking.
- Generous lawned family gardens.
- No forward chain and some improvement required.
Description
Oadby is a highly sought after South Leicestershire suburb which affords easy access to some of the best private and public schools found in Leicestershire. These include the Leicester Grammar and High School, Brocks Hill Primary School, Launde Primary School, Beauchamp College and Manor High School. A wide range of retail and hospitality is available in the nearby Oadby Town Centre on the Parade alongside two close by national supermarkets.
This spacious family home offers versatile living with the bedroom and living accommodation arranged over two floors.
There is a welcoming entrance hall leading to a double bedroom to the front elevation and a lounge with patio doors leading to the rear garden. Also to the ground floor is a dining room/snug with front aspect.
The kitchen is to the rear and is fitted with a range of base and eye level units with metro tiling and space for appliances, Off the kitchen is a useful garden room with storage and access to the garden.
Also to the ground floor is the family bathroom fitted with a white suite.
To the first floor are a double and single bedroom.
The property occupies an elevated position on this favoured and quiet residential road with driveway parking to the side, detached single garage and mainly lawned rear gardens.
No forward chain.
- COUNCIL TAXA payment made to your local authority in order to pay for local services like schools, libraries, and refuse collection. The amount you pay depends on the value of the property.Read more about council Tax in our glossary page.
- Ask agent
- PARKINGDetails of how and where vehicles can be parked, and any associated costs.Read more about parking in our glossary page.
- Yes
- GARDENA property has access to an outdoor space, which could be private or shared.
- Yes
- ACCESSIBILITYHow a property has been adapted to meet the needs of vulnerable or disabled individuals.Read more about accessibility in our glossary page.
- Ask agent
Energy performance certificate - ask agent
Elizabeth Drive, Oadby, Leicestershire, LE2
Add an important place to see how long it'd take to get there from our property listings.
__mins driving to your place
Get an instant, personalised result:
- Show sellers you’re serious
- Secure viewings faster with agents
- No impact on your credit score
Your mortgage
Notes
Staying secure when looking for property
Ensure you're up to date with our latest advice on how to avoid fraud or scams when looking for property online.
Visit our security centre to find out moreDisclaimer - Property reference rm24elizabethdrive. The information displayed about this property comprises a property advertisement. Rightmove.co.uk makes no warranty as to the accuracy or completeness of the advertisement or any linked or associated information, and Rightmove has no control over the content. This property advertisement does not constitute property particulars. The information is provided and maintained by Adore Fine Homes Limited, Leicester. Please contact the selling agent or developer directly to obtain any information which may be available under the terms of The Energy Performance of Buildings (Certificates and Inspections) (England and Wales) Regulations 2007 or the Home Report if in relation to a residential property in Scotland.
*This is the average speed from the provider with the fastest broadband package available at this postcode. The average speed displayed is based on the download speeds of at least 50% of customers at peak time (8pm to 10pm). Fibre/cable services at the postcode are subject to availability and may differ between properties within a postcode. Speeds can be affected by a range of technical and environmental factors. The speed at the property may be lower than that listed above. You can check the estimated speed and confirm availability to a property prior to purchasing on the broadband provider's website. Providers may increase charges. The information is provided and maintained by Decision Technologies Limited. **This is indicative only and based on a 2-person household with multiple devices and simultaneous usage. Broadband performance is affected by multiple factors including number of occupants and devices, simultaneous usage, router range etc. For more information speak to your broadband provider.
Map data ©OpenStreetMap contributors.





