
4 bedroom detached house for sale
Bluebell Meadow Wiltshire Drive, Bradwell, Great Yarmouth, NR31 9FP

- PROPERTY TYPE
Detached
- BEDROOMS
4
- SIZE
Ask developer
- TENUREDescribes how you own a property. There are different types of tenure - freehold, leasehold, and commonhold.Read more about tenure in our glossary page.
Freehold
Key features
- Impressive kitchen/family/dining room with French doors to garden
- En suite to bedroom 1
- Downstairs WC and utility room with side access
- Bay window to the living room
- Plenty of storage throughout
- Family bathroom with modern fixtures and fittings
- Study upstairs
- Energy efficient
Description
The Lambridge is a four-bedroom family home. The spacious kitchen/family/dining room enjoys an open aspect through French doors to the rear garden. There’s a bright front-aspect living room with a bay window, a downstairs WC and handy utility. Upstairs you’ll find four bedrooms - bedroom one benefiting from an en suite - plus a convenient study, modern-fitted family bathroom and two storage cupboards.
Additional Information
- Tenure: Freehold
- Council tax band: Not made available by local authority until post-occupation
Parking - Single Garage
Room Dimensions
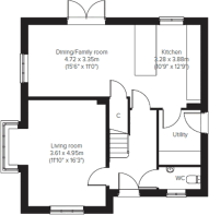
- Dining/Family room - 4.72 x 3.35 metre
- Kitchen - 3.28 x 3.88 metre
- Living room - 3.61 x 4.95 metre
- Bedroom One - 3.61 x 4.9 metre
- Bedroom Two - 4.25 x 4.11 metre
- Bedroom Three - 3.33 x 2.4 metre
- Bedroom Four - 2.33 x 3.45 metre
- Study - 2.16 x 2.4 metre
- COUNCIL TAXA payment made to your local authority in order to pay for local services like schools, libraries, and refuse collection. The amount you pay depends on the value of the property.Read more about council Tax in our glossary page.
- Ask developer
- PARKINGDetails of how and where vehicles can be parked, and any associated costs.Read more about parking in our glossary page.
- Yes
- GARDENA property has access to an outdoor space, which could be private or shared.
- Yes
- ACCESSIBILITYHow a property has been adapted to meet the needs of vulnerable or disabled individuals.Read more about accessibility in our glossary page.
- Ask developer
Energy performance certificate - ask developer
- Wide choice of 2, 3, 4 and 5 bedroom homes
- Range of amenities on your doorstep
- Easy access to Great Yarmouth & Norwich
- A range of Ofsted-rated 'Good' schools nearby
Bluebell Meadow Wiltshire Drive, Bradwell, Great Yarmouth, NR31 9FP
Add an important place to see how long it'd take to get there from our property listings.
__mins driving to your place
Get an instant, personalised result:
- Show sellers you’re serious
- Secure viewings faster with agents
- No impact on your credit score
About the development
About Persimmon Homes Anglia
Discover our energy-efficient new houses for sale in Bradwell, Great Yarmouth ? where you can enjoy community-focused living close to fantastic amenities, the coast and the historic cathedral city of Norwich.
Set in the charming village of Bradwell, our sought-after Bluebell Meadow development offers a range of modern new homes, including affordable one-bedroom homes (semi-detached) that are ideal for first-time buyers, and two, three and four-bedroom homes perfect for growing families.
Sharing its border with Great Yarmouth, Bradwell is a fantastic coastal location to call home. With a new home here, you?re just a stone?s throw away from the famous Norfolk Broads and glorious beaches at Great Yarmouth and Gorleston-on-Sea. With Great Yarmouth?s town centre minutes away by car, nearby you also have supermarkets, such as Sainsbury?s and Morrisons, James Paget Hospital, ?Good? (rated by Ofsted) schools and easy transport links available.
Norfolk is a unique and beautiful rural county, too. Perfect for weekends out and about, if you head inland, you'll find plenty of pretty villages, lovely local footpaths and traditional country pubs to explore. And with an abundance of cycle routes, the environmentally friendly bicycle is a great way to get about in Bradwell. Plus, the development is a stone's throw away from the A143, providing easy access to nearby towns and villages, as well as Bury St. Edmunds.
To start your new build journey and find out more, click the ?Arrange an appointment? icon below or call us. Alternatively, you can request a brochure for full information.
This development offers the following schemes:
- New Build Boost
- Deposit Boost: 5% Deposit Contribution Scheme
- Part Exchange your Home
- Own New Rate Reducer Scheme
- Home Change
Schemes are available on selected plots only, subject to status, terms and conditions apply. Contact the development for latest information.
Your mortgage
Notes
Staying secure when looking for property
Ensure you're up to date with our latest advice on how to avoid fraud or scams when looking for property online.
Visit our security centre to find out moreDisclaimer - Property reference 4_810. The information displayed about this property comprises a property advertisement. Rightmove.co.uk makes no warranty as to the accuracy or completeness of the advertisement or any linked or associated information, and Rightmove has no control over the content. This property advertisement does not constitute property particulars. The information is provided and maintained by Persimmon Homes Anglia. Please contact the selling agent or developer directly to obtain any information which may be available under the terms of The Energy Performance of Buildings (Certificates and Inspections) (England and Wales) Regulations 2007 or the Home Report if in relation to a residential property in Scotland.
*This is the average speed from the provider with the fastest broadband package available at this postcode. The average speed displayed is based on the download speeds of at least 50% of customers at peak time (8pm to 10pm). Fibre/cable services at the postcode are subject to availability and may differ between properties within a postcode. Speeds can be affected by a range of technical and environmental factors. The speed at the property may be lower than that listed above. You can check the estimated speed and confirm availability to a property prior to purchasing on the broadband provider's website. Providers may increase charges. The information is provided and maintained by Decision Technologies Limited. **This is indicative only and based on a 2-person household with multiple devices and simultaneous usage. Broadband performance is affected by multiple factors including number of occupants and devices, simultaneous usage, router range etc. For more information speak to your broadband provider.
Map data ©OpenStreetMap contributors.






