Church Street, Blaenau Ffestiniog, Gwynedd, LL41

- PROPERTY TYPE
End of Terrace
- BEDROOMS
3
- BATHROOMS
3
- SIZE
1,973 sq ft
183 sq m
- TENUREDescribes how you own a property. There are different types of tenure - freehold, leasehold, and commonhold.Read more about tenure in our glossary page.
Freehold
Key features
- 3 bedroom
- double glazing
- gas central heating
- end terrace
- Council Tax Band A
- EPC rating D
- Online Auction Date 26th February 2026
Description
The house is equipped with gas central heating and UPVC double glazing.
Blaenau Ffestiniog is known for its strong community feel and access to local amenities. The area is surrounded by scenic landscapes, providing opportunities for outdoor activities. With the property priced to sell, don't miss out on this chance to own a home possible as your first time buy or investment.
These are tips on the process, if successful you will be entering a legally bidding contract and you should therefore always take your own professional advice prior to bidding.
Auction Method:
The auction for this property will be conducted online through our online-bidding platform powered by Bamboo auctions. This is a “Timed Auction”. It differs to in room auctions by allowing you to bid from the comfort of your own home.
The proposed time slot and “end time” for the auction is displayed on Williams & Goodwin The Property People Ltd website - this may be subject to change, the property being withdrawn or sold prior. Bidding may open any time in the period usually up to 24 hours before the end time.
To view this, search for the property on the Williams & Goodwin website:
Once bidding opens the status will change from “Starting Soon” to the time remaining to bid and the end time/date of the auction is displayed on the page/lot. Please note each lot usually has a different end time.
Before you can bid you must go to your dashboard to:
Pass an online ID check
Enter your payment details
Enter your solicitor details. Please allow sufficient time to do this.
When you place your bid, you are deemed to have agreed to Williams & Goodwin / All Wales Auction and Bamboo Auctions Buyers Terms (England & Wales) which are available on the live auction section of the website. YOU MUST read the specific legal pack and any notes in the lot listing you are interested in BEFORE you bid. AGAIN please REMEMBER to do final checks as documents can be added, removed or changed at any time.
Auction type - Unconditional plus Fees:
Exchange will occur immediately at the end of the auction time period, provided you are the highest bidder and your bid has met or exceeded the reserve price. At that point, you have entered a legal commitment to complete the purchase and you will be charged £5000 online, which is split between the buyer fee and a holding deposit. Only the holding deposit amount will go towards the purchase price.
You must then transfer any outstanding amounts of the 10% deposit before 12pm the next business day and you must complete the sale within 20 business days unless the Special Conditions of Sale contained within the Legal Pack of that lot state otherwise.
Legal Pack:
Before bidding, you must view the legal pack for the property. This is the collection of legal documents that apply to the sale. The documents will include but are not limited to: Special Conditions of Sale, title documents from the Land Registry and Energy Performance Certificate.
To view the legal pack, first search for the property on website and click onto the property to view the property details.
There will be a sub-heading “Legal Documents”. Underneath this, you will be prompted to “Log in or register to view the legal documents”. Follow this link, you will then be directed to create an account to view the documents. You will need to verify your email address to view the legal pack.
Always check OTHER KEY INFO under the live auction listing for any addendum notices (these are possible amendments the auctioneers may consider necessary to post)
The legal pack can change at any time up until the auction starts so you must check for the most recent version of the legal pack. At the point of placing your bid, you are deemed to have read the legal pack and checked the addendum/Other Key info area in its entirety, including any changes. Failure to check for changes to the legal pack will not be a valid reason for withdrawing from the sale.
It is strongly recommended that you instruct a qualified professional to review the legal pack and raise any necessary enquiries before bidding.
Special Conditions of Sale:
The property is sold subject to any Special Conditions of Sale. These are contractual conditions that are included by the seller of the property - they are not part of the auctioneers - Williams & Goodwin The Property People also trading as All Wales Auction or any joint agents’ terms and conditions. The Special Conditions of Sale are legally binding. You are taken to have read and accepted these at the point of bidding, even if you have not done so. The Special Conditions of Sale are available to read in the legal pack.
Auction Fees:
From the £5000 charged online, the following non-refundable fees apply:
Buyer’s Fee - payable on exchange of contracts. This is £3,600 including VAT. The Buyer’s Fee is payable in addition to the purchase price.
You must check the legal pack, live auction section listing and special conditions (if any) of the lot you are interested in to see if any other fees apply to that lot. e.g. some lots seek buyers to pay for search fees and/or auctioneer fees etc.
Holding Deposit:
The remainder of the £5,000 charge less the buyer fee (specified above), is a non-refundable contribution towards the deposit (10% of the sale value) i.e. £1,400
By 12pm the next business day the winning buyer must pay the remainder of the 10% less the contribution already. This will be collected by Williams & Goodwin The Property People Ltd. Cash and cheques are not accepted.
Payment Method:
When you register to bid, you will be prompted to provide your payment details to Bamboo Auctions. In the event that you are the winning bidder, your card will automatically be charged £5000 as a proportion of the Buyer’s Fee & Deposit. The balance of the deposit due should then be paid to the auctioneers, Williams & Goodwin The Property People Ltd. Payment by cash or cheque will not be accepted.
Example: You win the bid on a property at a price of £100,000. At this point your bid is successful you will be charged £5000 instantly. Made up of:
• Buyer’s Fee of £3,600 (incl. VAT)
• Part Deposit payment of £1,400
As the actual purchase price amounted to £100,000, after the auction, you will be required to pay the following additional amount on top of the initial payment:
• £8,600 (£10,000 for Deposit as 10% of actual purchase price; Less amount paid at auction end time £1,400.)
Registration Process:
To register to bid on the property, search for the lot on website. Click onto the property, follow the link to “Log in/register to bid” , and you will then be directed to create an account and set up your profile to bid.
Final tip - always remember to refresh the browser. Good Luck!
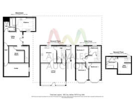
Porch
Hall 1
Hall 2
Ground Floor
Living Room
5.56m x 4.86m
Kitchen 1
3.71m x 3.53m
Kitchen 2
4.35m x 2.98m
Basement
Utility Room
4.17m x 3.10m
Store Room
WC
Bathroom 1
Bathroom 2
Bathroom 3
Cellar
5.32m x 2.94m
First Floor
Bedroom 1
3.78m x 2.64m
Bedroom 2
3.68m x 2.77m
Bedroom 3
3.71m x 2.77m
Second Floor
Attic
- COUNCIL TAXA payment made to your local authority in order to pay for local services like schools, libraries, and refuse collection. The amount you pay depends on the value of the property.Read more about council Tax in our glossary page.
- Band: A
- PARKINGDetails of how and where vehicles can be parked, and any associated costs.Read more about parking in our glossary page.
- Ask agent
- GARDENA property has access to an outdoor space, which could be private or shared.
- Ask agent
- ACCESSIBILITYHow a property has been adapted to meet the needs of vulnerable or disabled individuals.Read more about accessibility in our glossary page.
- Ask agent
Church Street, Blaenau Ffestiniog, Gwynedd, LL41
Add an important place to see how long it'd take to get there from our property listings.
__mins driving to your place
Get an instant, personalised result:
- Show sellers you’re serious
- Secure viewings faster with agents
- No impact on your credit score
Your mortgage
Notes
Staying secure when looking for property
Ensure you're up to date with our latest advice on how to avoid fraud or scams when looking for property online.
Visit our security centre to find out moreDisclaimer - Property reference RX706847. The information displayed about this property comprises a property advertisement. Rightmove.co.uk makes no warranty as to the accuracy or completeness of the advertisement or any linked or associated information, and Rightmove has no control over the content. This property advertisement does not constitute property particulars. The information is provided and maintained by All Wales Auction, Llangefni. Please contact the selling agent or developer directly to obtain any information which may be available under the terms of The Energy Performance of Buildings (Certificates and Inspections) (England and Wales) Regulations 2007 or the Home Report if in relation to a residential property in Scotland.
Auction Fees: The purchase of this property may include associated fees not listed here, as it is to be sold via auction. To find out more about the fees associated with this property please call All Wales Auction, Llangefni on 01248 663205.
*Guide Price: An indication of a seller's minimum expectation at auction and given as a Guide Price or a range of Guide Prices. This is not necessarily the figure a property will sell for and is subject to change prior to the auction.
Reserve Price: Each auction property will be subject to a Reserve Price below which the property cannot be sold at auction. Normally the Reserve Price will be set within the range of Guide Prices or no more than 10% above a single Guide Price.
*This is the average speed from the provider with the fastest broadband package available at this postcode. The average speed displayed is based on the download speeds of at least 50% of customers at peak time (8pm to 10pm). Fibre/cable services at the postcode are subject to availability and may differ between properties within a postcode. Speeds can be affected by a range of technical and environmental factors. The speed at the property may be lower than that listed above. You can check the estimated speed and confirm availability to a property prior to purchasing on the broadband provider's website. Providers may increase charges. The information is provided and maintained by Decision Technologies Limited. **This is indicative only and based on a 2-person household with multiple devices and simultaneous usage. Broadband performance is affected by multiple factors including number of occupants and devices, simultaneous usage, router range etc. For more information speak to your broadband provider.
Map data ©OpenStreetMap contributors.





