Plot for sale
Land at Haslucks Green Road, Shirley, Solihull
- PROPERTY TYPE
Plot
- BEDROOMS
3
- BATHROOMS
2
- SIZE
1,255 sq ft
117 sq m
Key features
- Full Planning Permitted
- Very Rare Proposition
- 1255 Sqft Proposed Dwelling
- Sympathetically Designed
- Fenced off and Ready to Go
- Available Now
- No Chain
- Desirable Location
- Viewings by Appointment Only
- Quote JK1260 on Enquiry
Description
A RARE AND UNIQUE PROPOSITION:
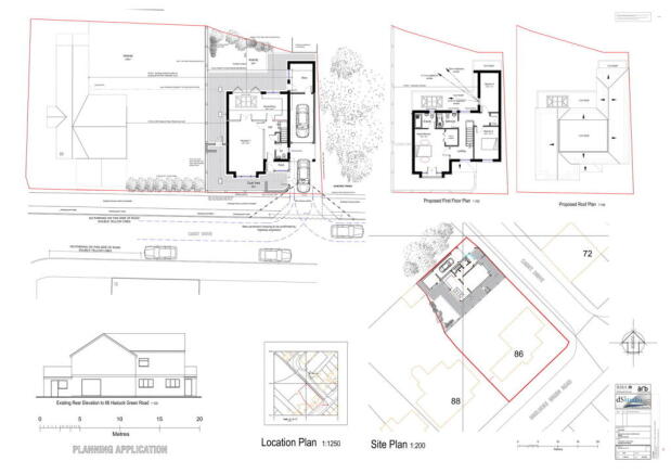
An opportunity, best suited to a self-builder, to obtain a parcel of land with full planning permission for a detached 3 bedroom home in a popular location in Shirley.
The proposed dwelling has been sympathetically designed by the applicant and we are told, buy the architect, the proposed internal footprint will total circa 1255 sqft. A boundary fence is currently being erected by the vendor, please use the drone footage for reference guide on the total plot size. The architect tells us the total site area is circa 2912 sqft.
A boundary fence is currently being erected by the vendor, please use the drone footage for reference on the total plot size. The land will be sold in its entirety, freehold, with no contingencies attached. The current hedge boundary, fronting Cadet Drive, is approximately 9ft deep.
Access for the proposed dwelling is set to be off of Cadet Drive, just off from Haslucks Green Road in Shirley. Full details of the application, plans and local information can be seen in the public domain on the Solihull Planning Portal, quoting reference PL/2024/00323/PPFL.
Situated in the heart of Shirley, Solihull, the area offers an excellent balance of suburban living with superb amenities and transport links. Shirley benefits from a vibrant high street and the nearby Parkgate Shopping Centre, along with supermarkets, cafés and everyday services, while larger retail and leisure facilities are available in Solihull town centre. For commuters, Shirley railway station provides regular services to Birmingham city centre, with additional stations at Whitlocks End and Solihull, plus frequent bus routes and easy access to the A34 Stratford Road and M42 motorway. The area is well regarded for education, with a good choice of local primary schools including Peterbrook Primary, Mill Lodge Primary and Tudor Grange Primary, and secondary options such as Light Hall School and Solihull Academy, alongside several highly regarded schools within the wider Solihull area.
Cash buyers only, or purchasers with access to private lending or developer finance. EPC exempt.
Viewings are available strictly via the agent, enquire today quoting JK1260 on enquiry.
Land at Haslucks Green Road, Shirley, Solihull
NEAREST STATIONS
Distances are straight line measurements from the centre of the postcode- Shirley Station0.8 miles
- Yardley Wood Station1.1 miles
- Whitlock's End Station1.6 miles
Notes
Disclaimer - Property reference S1569461. The information displayed about this property comprises a property advertisement. Rightmove.co.uk makes no warranty as to the accuracy or completeness of the advertisement or any linked or associated information, and Rightmove has no control over the content. This property advertisement does not constitute property particulars. The information is provided and maintained by eXp UK, West Midlands. Please contact the selling agent or developer directly to obtain any information which may be available under the terms of The Energy Performance of Buildings (Certificates and Inspections) (England and Wales) Regulations 2007 or the Home Report if in relation to a residential property in Scotland.
Map data ©OpenStreetMap contributors.





