
3 bedroom terraced house for sale
Church Street, Chasetown, Burntwood

- PROPERTY TYPE
Terraced
- BEDROOMS
3
- BATHROOMS
1
- SIZE
Ask agent
- TENUREDescribes how you own a property. There are different types of tenure - freehold, leasehold, and commonhold.Read more about tenure in our glossary page.
Freehold
Key features
- Stunning three bedroom property
- Character charm and modern convenience
- Deceptively spacious interior and large rear garden with parking
- Summer house to the rear with lawn and patio areas
- Three double bedrooms
- Original features such as cast iron fireplaces
Description
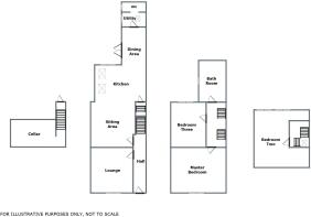
Deceptively spacious, the home offers generous living accommodation arranged over three floors, including three double bedrooms. The ground floor briefly comprises an entrance hallway, a cosy front lounge, and a breathtaking open-plan living area incorporating a sitting space, modern fitted kitchen, and dining area, together with a separate utility and guest WC.
The first floor features two double bedrooms and a generous family bathroom, while the top floor offers a further spacious double bedroom. Additionally, the property boasts a converted cellar currently used as a bar area—perfect for entertaining—and a superb fully equipped summer/guest house situated at the rear of the garden.
This exceptional home seamlessly blends period character with modern comfort, featuring charming original details such as cast-iron fireplaces and doors, complemented by a stylish kitchen with modern appliances and thoughtfully designed extensions and conversions. Other benefits include: UPVC double glazing and gas central heating provided by a brand new fitted boiler.
Externally, there is a small front garden providing access to the property. To the rear, a gated driveway offers off-road parking, while the beautifully landscaped garden includes an extended lawn, wood store, and multiple patio areas ideal for outdoor entertaining. The impressive summer house is fully insulated and finished to a high standard, with power points, spot lighting, laminate flooring, and bi-fold doors opening out onto the garden as well as adjoining storage shed.
RECEPTION HALL:
Composite entrance door, tiled flooring, ceiling light points, wall panelling, doors to the lounge and sitting area, plus stairs to the first floor.
LOUNGE:
12' 0'' x 13' 0'' (3.65m x 3.95m)
Feature fireplace with open grate fire, engineered oak flooring, radiator, ceiling light, bay window to the front and sliding doors into the sitting area.
SITTING AREA:
12' 4'' x 12' 1'' (3.76m x 3.69m)
Feature fireplace with log burner and brick surround, oak flooring, ceiling light point, opening to the kitchen plus door to the cellar.
EXTENDED KITCHEN:
14' 8'' x 11' 5'' (4.47m x 3.49m)
Range of matching wall and base units incorporating cabinets, drawers and work surfaces, inset Belfast sink with mono tap, range cooker set into brick recess, oak flooring, velux skylights, ceiling spot lights, opening to the dining area.
DINING AREA:
7' 6'' x 10' 8'' (2.29m x 3.25m)
Oak flooring, pitched ceiling with skylight, radiator, French doors to the garden and door to the utility.
UTILITY & WC:
Fitted work too and cabinet with space and plumbing for a washing machine and fridge-freezer, sky light, wall mounted gas boiler, window to the side, opening the WC with low level WC, wash hand basin, radiator and window to the side.
CELLAR:
12' 4'' x 7' 9'' (3.75m x 2.36m)
Fitted bench and bar units, light points, carpeted stairs and laminate flooring plus gas central heating radiator. Great for entertaining guests
FIRST FLOOR LANDING:
Carpeted flooring, ceiling light point, doors off to two bedrooms and the family bathroom with further staircase to the top floor bedroom.
BEDROOM ONE:
15' 11'' x 13' 0'' (4.85m x 3.95m)
Feature cast iron fireplace, carpeted flooring, radiator, ceiling light point and window to the front.
BEDROOM TWO (TOP FLOOR):
11' 1'' x 16' 5'' (3.38m x 5.00m)
Carpeted flooring, ceiling spot lights, radiator, dormer windows to the rear and Velux skylight.
BEDROOM THREE:
9' 11'' x 12' 0'' (3.03m x 3.65m)
Feature cast iron fireplace, carpeted flooring, radiator, ceiling light point and window to the rear.
FAMILY BATHROOM:
White suite comprising: roll top bath with side taps and shower attachment, separate shower cubicle, wash hand basin and low level WC, feature cast iron fireplace, ceiling light point, radiator and window to the side.
SUMMER HOUSE: :
Fully insulated and finished to a high standard, with power points, spot lighting, laminate flooring, and bi-fold doors opening out onto the garden. There is also an adjoining storage shed.
VIEWING:
Please contact us on if you would like to arrange a viewing appointment for this property or require further information.
DISCLAIMER:
These particulars are set up as a general outline only for the guidance of intending purchasers or lessees, and do not constitute part of an offer or contract. The sellers has given permission for all descriptions, dimensions, references to conditions, tenure, service charges and necessary permissions for use, occupation and other details to be used and we have taken them in good faith whether included or not & whilst we believe them to be correct, any intending purchasers or tenants should not rely on them as representations or fact but must satisfy themselves by inspection or otherwise as to the correctness of each of them and have this certified during the conveyancing by their solicitor. No person in the employment of Lovett&Co has any authority to make or give any representation or warranty whatsoever in relation to this property.
Brochures
Property BrochureFull Details- COUNCIL TAXA payment made to your local authority in order to pay for local services like schools, libraries, and refuse collection. The amount you pay depends on the value of the property.Read more about council Tax in our glossary page.
- Band: B
- PARKINGDetails of how and where vehicles can be parked, and any associated costs.Read more about parking in our glossary page.
- Yes
- GARDENA property has access to an outdoor space, which could be private or shared.
- Yes
- ACCESSIBILITYHow a property has been adapted to meet the needs of vulnerable or disabled individuals.Read more about accessibility in our glossary page.
- Ask agent
Church Street, Chasetown, Burntwood
Add an important place to see how long it'd take to get there from our property listings.
__mins driving to your place
Get an instant, personalised result:
- Show sellers you’re serious
- Secure viewings faster with agents
- No impact on your credit score
Your mortgage
Notes
Staying secure when looking for property
Ensure you're up to date with our latest advice on how to avoid fraud or scams when looking for property online.
Visit our security centre to find out moreDisclaimer - Property reference 10339815. The information displayed about this property comprises a property advertisement. Rightmove.co.uk makes no warranty as to the accuracy or completeness of the advertisement or any linked or associated information, and Rightmove has no control over the content. This property advertisement does not constitute property particulars. The information is provided and maintained by Lovett&Co. Estate Agents, Lichfield. Please contact the selling agent or developer directly to obtain any information which may be available under the terms of The Energy Performance of Buildings (Certificates and Inspections) (England and Wales) Regulations 2007 or the Home Report if in relation to a residential property in Scotland.
*This is the average speed from the provider with the fastest broadband package available at this postcode. The average speed displayed is based on the download speeds of at least 50% of customers at peak time (8pm to 10pm). Fibre/cable services at the postcode are subject to availability and may differ between properties within a postcode. Speeds can be affected by a range of technical and environmental factors. The speed at the property may be lower than that listed above. You can check the estimated speed and confirm availability to a property prior to purchasing on the broadband provider's website. Providers may increase charges. The information is provided and maintained by Decision Technologies Limited. **This is indicative only and based on a 2-person household with multiple devices and simultaneous usage. Broadband performance is affected by multiple factors including number of occupants and devices, simultaneous usage, router range etc. For more information speak to your broadband provider.
Map data ©OpenStreetMap contributors.





