
1 bedroom retirement property for sale
Tatterton Lodge, Wetherby, West Yorkshire

- PROPERTY TYPE
Retirement Property
- BEDROOMS
1
- BATHROOMS
1
- SIZE
Ask agent
Key features
- One bedroom second floor apartment
- Fully fitted kitchen with integrated appliances
- Lodge Manager available 5 days a week
- Owners’ Lounge & Kitchen with regular social events
- 24 hour Careline system for safety and security
- Owners private car parking
- Landscaped gardens
- Lift to all floors
- A Guest Suite is available for your friends and family to stay in. In addition, you are entitled to use the Guest Suites at all Churchill Living developments across the country. Prices are available
Description
**ONE BEDROOM SECOND FLOOR RETIREMENT APARTMENT**
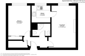
Situated in the fantastic development of Tatterton Lodge is this delightful one bedroom apartment. The property offers lovely views over the communal gardens and is presented in good order throughout.
The Living Room offers ample space for living and dining room furniture and benefits from a feature electric fire with attractive surround. A window provides lots of natural light as well as views over the communal gardens.
The Kitchen is accessed via the Living room and offers a range of modern eye and base level units with working surfaces over and tiled splashbacks. There is a built-in waist height oven, 4-ring electric hob with extractor hood over, washer/dryer, a fridge and freezer. A window provides light and ventilation.
The Bedroom is a good sized double room with built in mirrored wardrobe. There is plenty of space for additional furniture if required and large window keeps this lovely bedroom bright and light.
The Shower Room offers a curved shower with handrail, a WC, heated towel rail and wash basin with vanity until beneath.
Perfectly complementing this lovely apartment is a useful storage cupboard located off the Hallway.
Call us today to book your viewing at Tatterton Lodge!
Tatterton Lodge is a delightful development of 55 one and two bedroom apartments located in the charming historic town of Wetherby, centrally located between Leeds, York and Harrogate.
Wetherby’s rich heritage owes much to its location being a half way staging post between London and Edinburgh on the old Great North Road, which used to run directly through the town; many of the coaching Inns established during that time are still there to enjoy today. Having been granted a Royal Charter in 1240, the town has always been a popular place to live and visit. The 13th century medieval bridge remains a prominent feature of the town and there are many delightful riverside walks and the Turner Trail to enjoy a stroll.
Nestling in the heart of Yorkshire’s Golden Triangle of Leeds, York and Harrogate, Wetherby is ideally located for trips to these major cities to visit the shops and explore the many visitor attractions or enjoy days out to the Yorkshire Dales, the North Yorkshire Moors and the East coast. Wetherby racecourse, Harewood House and the delightful parks of Stockeld and Roundhay are nearby and the town centre has various shops, restaurants and eateries.
Wetherby is well served by regular public bus services with bus stops ideally located just outside Tatterton Lodge; in addition the main bus station is located in the market place. The town is also within easy reach of major road networks and served by Leeds Railway Station and Leeds Bradford International Airport catering for a variety of journeys.
Tatterton Lodge’s manager is on hand throughout the day to support the Owners and keep the development in perfect shape as well as arranging events such as movie nights to strawberry and cream afternoons, board games, music evenings, fitness classes and birthday celebrations.
A Guest Suite is available for your friends and family to stay in. In addition, you are entitled to use of the Guest Suites at all Churchill Living developments across the country. Prices are available from the Lodge Manager.
Tatterton Lodge has been designed with safety and security at the forefront, all apartments and communal areas have an emergency Careline system installed, monitored by the onsite Lodge Manager during the day and 24 hours, 365 days a year by the Careline team. A Careline integrated intruder alarm, secure video entry system and sophisticated fire and smoke detection systems throughout both the apartment and communal areas provide unrivalled peace of mind.
Tatterton Lodge is managed by the award winning Churchill Estates Management, working closely with Churchill Living and Churchill Sales & Lettings to maintain the highest standards of maintenance and service for every lodge and owner.
Tatterton Lodge requires at least one apartment resident to be over the age of 60 with any second resident over the age of 55.
Service Charge (Year Ending 31st May 2026): £3,334.55 per annum.
Ground Rent: £812.24 per annum. To be reviewed December 2030.
Council Tax Band C
125 year Lease commencing 2016
Please check regarding Pets with Churchill Estates Management. Any consents given in relation to pets are subject to the terms of the lease and any further rules and regulations made by Churchill Estates Management.
Service charges include: Careline system, buildings insurance, water and sewerage rates, ground source heating, communal cleaning, apartment heating, utilities and maintenance, garden maintenance, lift maintenance, lodge manager and a contribution to the contingency fund.
Brochures
Tatterton Lodge, Wetherby, West YorkshireEACBrochure- COUNCIL TAXA payment made to your local authority in order to pay for local services like schools, libraries, and refuse collection. The amount you pay depends on the value of the property.Read more about council Tax in our glossary page.
- Band: C
- PARKINGDetails of how and where vehicles can be parked, and any associated costs.Read more about parking in our glossary page.
- Yes
- GARDENA property has access to an outdoor space, which could be private or shared.
- Yes
- ACCESSIBILITYHow a property has been adapted to meet the needs of vulnerable or disabled individuals.Read more about accessibility in our glossary page.
- Ask agent
Tatterton Lodge, Wetherby, West Yorkshire
Add an important place to see how long it'd take to get there from our property listings.
__mins driving to your place

Notes
Staying secure when looking for property
Ensure you're up to date with our latest advice on how to avoid fraud or scams when looking for property online.
Visit our security centre to find out moreDisclaimer - Property reference 34421644. The information displayed about this property comprises a property advertisement. Rightmove.co.uk makes no warranty as to the accuracy or completeness of the advertisement or any linked or associated information, and Rightmove has no control over the content. This property advertisement does not constitute property particulars. The information is provided and maintained by Churchill Sales & Lettings, Ringwood. Please contact the selling agent or developer directly to obtain any information which may be available under the terms of The Energy Performance of Buildings (Certificates and Inspections) (England and Wales) Regulations 2007 or the Home Report if in relation to a residential property in Scotland.
*This is the average speed from the provider with the fastest broadband package available at this postcode. The average speed displayed is based on the download speeds of at least 50% of customers at peak time (8pm to 10pm). Fibre/cable services at the postcode are subject to availability and may differ between properties within a postcode. Speeds can be affected by a range of technical and environmental factors. The speed at the property may be lower than that listed above. You can check the estimated speed and confirm availability to a property prior to purchasing on the broadband provider's website. Providers may increase charges. The information is provided and maintained by Decision Technologies Limited. **This is indicative only and based on a 2-person household with multiple devices and simultaneous usage. Broadband performance is affected by multiple factors including number of occupants and devices, simultaneous usage, router range etc. For more information speak to your broadband provider.
Map data ©OpenStreetMap contributors.





