
3 bedroom semi-detached house for sale
19 Betton Street, Shrewsbury, SY3 7NY

- PROPERTY TYPE
Semi-Detached
- BEDROOMS
3
- BATHROOMS
1
- SIZE
Ask agent
- TENUREDescribes how you own a property. There are different types of tenure - freehold, leasehold, and commonhold.Read more about tenure in our glossary page.
Freehold
Key features
- Deceptively spacious semi-detached house
- Three bedrooms and bathroom
- Living room, dining room and kitchen
- Rear porch and garden room
- Easily maintained enclosed garden
- Off road parking
- Popular location close to amenities
Description
The property is situated in a sought after residential locality, within walking distance of the Shrewsbury town centre, shopping facilities within Longden Coleham, on a frequent bus service to the town centre and easy access to the Shrewsbury by-pass with M54 link to the West Midlands.
A deceptively spacious three bedroom semi-detached house offering versatile accommodation.
Inside The Property -
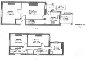
Entrance Hall -
Dining Room - 4.52m x 3.23m (14'10" x 10'7") - Window to the rear
Feature fire with surround and mantel
Built in store cupboards
Lounge - 3.63m x 4.29m (11'11" x 14'1") - Inset fire with surround and mantel
Window to the front
Kitchen - 2.69m x 2.44m (8'10" x 8'0") - Fitted with a range of matching wall and base units
Deep walk in pantry with shelving and access to Cellar
Door to:
Rear Porch - 1.14m x 1.35m (3'9" x 4'5") - Door to garden
Garden Room - 2.13m x 1.91m (7'0" x 6'3") - Accessed from the garden.
STAIRCASE rising from entrance hall to FIRST FLOOR LANDING
Bedroom 1 - 4.52m x 2.46m (14'10" x 8'1") -
Bedroom 2 - 3.63m x 2.31m (11'11" x 7'7") - Two built in double wardrobes
Bedroom 3 - 2.67m x 2.39m (8'9" x 7'10") -
Bathroom - Panelled bath with electric shower over
Wash hand basin, wc
Airing cupboard
Access to roof space
Outside The Property -
The property is approached over a paviour driveway providing parking with draft brick wall and hedge screen.
Enclosed REAR GARDEN laid to Astro turf and gravelled areas for ease of maintenance, paved patio providing ideal seating area with flower and shrub beds and borders. Garden store shed. The gardens are enclosed on all sides by mature fencing and hedging enjoying a high degree of privacy.
Brochures
19 Betton Street, Shrewsbury, SY3 7NYBrochure- COUNCIL TAXA payment made to your local authority in order to pay for local services like schools, libraries, and refuse collection. The amount you pay depends on the value of the property.Read more about council Tax in our glossary page.
- Band: B
- PARKINGDetails of how and where vehicles can be parked, and any associated costs.Read more about parking in our glossary page.
- Yes
- GARDENA property has access to an outdoor space, which could be private or shared.
- Yes
- ACCESSIBILITYHow a property has been adapted to meet the needs of vulnerable or disabled individuals.Read more about accessibility in our glossary page.
- Ask agent
Energy performance certificate - ask agent
19 Betton Street, Shrewsbury, SY3 7NY
Add an important place to see how long it'd take to get there from our property listings.
__mins driving to your place
Get an instant, personalised result:
- Show sellers you’re serious
- Secure viewings faster with agents
- No impact on your credit score
Your mortgage
Notes
Staying secure when looking for property
Ensure you're up to date with our latest advice on how to avoid fraud or scams when looking for property online.
Visit our security centre to find out moreDisclaimer - Property reference 34424339. The information displayed about this property comprises a property advertisement. Rightmove.co.uk makes no warranty as to the accuracy or completeness of the advertisement or any linked or associated information, and Rightmove has no control over the content. This property advertisement does not constitute property particulars. The information is provided and maintained by Miller Evans, Shrewsbury. Please contact the selling agent or developer directly to obtain any information which may be available under the terms of The Energy Performance of Buildings (Certificates and Inspections) (England and Wales) Regulations 2007 or the Home Report if in relation to a residential property in Scotland.
*This is the average speed from the provider with the fastest broadband package available at this postcode. The average speed displayed is based on the download speeds of at least 50% of customers at peak time (8pm to 10pm). Fibre/cable services at the postcode are subject to availability and may differ between properties within a postcode. Speeds can be affected by a range of technical and environmental factors. The speed at the property may be lower than that listed above. You can check the estimated speed and confirm availability to a property prior to purchasing on the broadband provider's website. Providers may increase charges. The information is provided and maintained by Decision Technologies Limited. **This is indicative only and based on a 2-person household with multiple devices and simultaneous usage. Broadband performance is affected by multiple factors including number of occupants and devices, simultaneous usage, router range etc. For more information speak to your broadband provider.
Map data ©OpenStreetMap contributors.








