Commercial property for rent
1 Kelberdale Court, Market Place, Leyburn
Letting details
- Let available date:
- Ask agent
- Deposit:
- £1,200A deposit provides security for a landlord against damage, or unpaid rent by a tenant.Read more about deposit in our glossary page.
- Let type:
- Long term
- PROPERTY TYPE
Commercial Property
- SIZE
Ask agent
Key features
- Versatile Retail Premises in Prime Location.
- First Floor Office Space
- WC
- Flexible Layout Options.
- Large Ground Floor Space with Separate Office.
- Good Natural Light.
Description
Prime Retail Opportunity in the Heart of Leyburn – 1 Kelberdale Court An excellent opportunity to lease a well-proportioned retail premises ideally situated just a short distance from the vibrant centre of Leyburn, a popular and bustling market town in the heart of Wensleydale. Leyburn offers a thriving local community and an array of amenities including a variety of independent shops, cafés, pubs, and restaurants. The town also features reputable schools, churches, a medical practice, and leisure facilities such as sports grounds and children’s play areas. A traditional outdoor market takes place every Friday, and the well-known Tennants Auctioneers is located nearby. The property enjoys excellent transport links, providing easy access to Richmond, Bedale, Northallerton, and the A1.
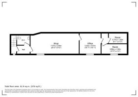
The premises comprise a spacious staircase leading to an entrance hall, which opens into a large, light-filled main room, ideal for retail use or a variety of alternative commercial purposes. In addition, there are two separate smaller rooms suitable for use as offices or treatment spaces, along with a kitchenette and WC facilities.
1 Kelberdale Court offers versatile accommodation and would suit a wide range of business ventures. Early viewing is highly recommended to fully appreciate the potential this property has to offer.
Entrance Hall
Fitted carpet. Front door. Under stairs storage. Staircase. Window to the front.
Hall
Laminate wood floor. Consumer unit. Internal window to the main area providing natural light.
WC
Laminate flooring. WC. wash basin. wall and base units. Stainless steel sink. Extractor fan.
Main Space
Laminate wooden flooring. Night storage heater. Large open space, ideal retail or office space. 2 Windows to front.
Second Space
Laminate wooden flooring. Window to front.
Rear Hall
Laminate wooden flooring.
Office
Laminate wooden flooring. Private office space.
Kitchenette
Laminate wooden flooring. Wall & base units. Window to the front.
Agents Notes
1 Kelberdale Court, Market Place, Leyburn
NEAREST STATIONS
Distances are straight line measurements from the centre of the postcode- Leyburn Station0.3 miles
Notes
Disclaimer - Property reference RX707744. The information displayed about this property comprises a property advertisement. Rightmove.co.uk makes no warranty as to the accuracy or completeness of the advertisement or any linked or associated information, and Rightmove has no control over the content. This property advertisement does not constitute property particulars. The information is provided and maintained by J.R Hopper & Co, Leyburn - Commercial. Please contact the selling agent or developer directly to obtain any information which may be available under the terms of The Energy Performance of Buildings (Certificates and Inspections) (England and Wales) Regulations 2007 or the Home Report if in relation to a residential property in Scotland.
Map data ©OpenStreetMap contributors.





