Eglinton Workshops Eglinton Country Park, Kilwinning, KA13 7QA
- SIZE AVAILABLE
4,251 sq ft
395 sq m
- SECTOR
Warehouse to lease
Lease details
- Lease available date:
- Now
- Lease type:
- Long term
Key features
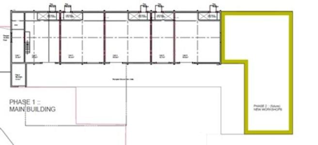
- Semi-rural position on the outskirts of Kilwinning Close to main road networks Workshops currently under refurbishment Units available from 24 sqm ‚ì 395 sqm (258 sqft ‚ì 4252 sqft) 100% rates
Description
Eglinton Workshops comprise of a detached workshop property that is undergoing refurbishment into units in a variety of sizes to suits occupier requirements, with units available from Spring 2025. Units are available from 24 sqm to 395 sqm (258 sqft to 4252 sqft), with minimum 3m internal eaves clearance and most having vehicle entry doors. The Workshops will have a shared yard area with phase 2 new build units also proposed later. The new units are to be assessed for rates purposes but are expected to qualify for 100% rates relief via the Small Business Scheme, subject to occupier status. Flexible lease terms are available at competitive rates, further details available upon application to the letting agent. EPC available upon completion Each party to be responsible for their own legal costs incurred.
Location
Eglinton Workshops are located within the semi-rural Eglinton Country Park, on the south eastern outskirts of Kilwinning, with the site accessed via a single track road off Irvine Road (A737), a busy main road and bus route. Kilwinning town centre is around 2 miles north west of the location, with Irvine around 4 miles south east.
Brochures
Eglinton Workshops Eglinton Country Park, Kilwinning, KA13 7QA
NEAREST STATIONS
Distances are straight line measurements from the centre of the postcode- Kilwinning Station1.3 miles
- Irvine Station2.4 miles
- Stevenston Station2.8 miles
Notes
Disclaimer - Property reference 348996-2. The information displayed about this property comprises a property advertisement. Rightmove.co.uk makes no warranty as to the accuracy or completeness of the advertisement or any linked or associated information, and Rightmove has no control over the content. This property advertisement does not constitute property particulars. The information is provided and maintained by DM Hall, Glasgow. Please contact the selling agent or developer directly to obtain any information which may be available under the terms of The Energy Performance of Buildings (Certificates and Inspections) (England and Wales) Regulations 2007 or the Home Report if in relation to a residential property in Scotland.
Map data ©OpenStreetMap contributors.




