Queens Road, Nuneaton
- SIZE
Ask agent
- SECTOR
High street retail property to lease
Lease details
- Lease available date:
- Ask agent
Key features
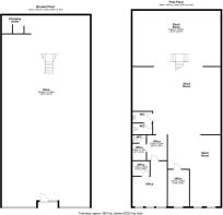
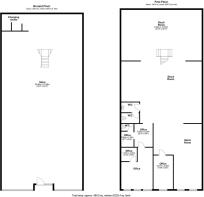
- Substantial Retail Unit On Two Floors
- High Profile Pedestrianised Position
- Adjacent To Abbey Street Public Car Park
- Close By To The New Development
Description
Description - The property comprises a substantial two storey town centre building situated in a prominent location adjacent to Abbey Street pay-and-display public car park and occupying a high profile position at the head of the Queens Road pedestrianised area. The unit offers a largely open plan retail space on the ground floor with a further sales area at first floor level, together with ancillary office, storage and staff facilities.
Rateable Value - We understand that the current rateable value is: £36,000.
This is due to increase on April 1st 2026 to: £43,000.
We advise to do your own due diligence regarding this information.
Energy Performance Certificate - EPC Rating 38 B
Services - This property is connected to all mains services, less gas
Legal Costs - Each party will be responsible for their own legal costs.
Vat - VAT is not elected for this property.
Viewing - To arrange a viewing please contact the commercial Team on or (Option 2)
Important Notes - We are required by HMRC to conduct anti-money laundering checks on all parties with an interest in the property and accordingly we will require forms of identification in due course. Particulars: These Particulars do not constitute an offer or contract and should not be relied upon as being factually accurate, the photographs show only part of the property and the areas, measurements and distances given are approximately only. A buyer or a lessee must make their own enquiries or inspections and should not solely rely on these Particulars or other statements by Sheldon Bosley Knight.
VAT: The VAT position relating to the property may change without notice
Brochures
Queens Road, Nuneaton
NEAREST STATIONS
Distances are straight line measurements from the centre of the postcode- Nuneaton Station0.4 miles
- Bedworth Station3.0 miles
- Hinckley Station4.3 miles
Notes
Disclaimer - Property reference 34425406. The information displayed about this property comprises a property advertisement. Rightmove.co.uk makes no warranty as to the accuracy or completeness of the advertisement or any linked or associated information, and Rightmove has no control over the content. This property advertisement does not constitute property particulars. The information is provided and maintained by Loveitts Commercial, Coventry. Please contact the selling agent or developer directly to obtain any information which may be available under the terms of The Energy Performance of Buildings (Certificates and Inspections) (England and Wales) Regulations 2007 or the Home Report if in relation to a residential property in Scotland.
Map data ©OpenStreetMap contributors.





