Charles Close, Caister-on-sea

- PROPERTY TYPE
Terraced
- BEDROOMS
2
- BATHROOMS
2
- SIZE
Ask agent
- TENUREDescribes how you own a property. There are different types of tenure - freehold, leasehold, and commonhold.Read more about tenure in our glossary page.
Freehold
Key features
- Mid-Terrace House
- Very Well-Presented
- Spacious Living Areas
- Cloakroom
- Bathroom & Separate WC
- Fitted Kitchen
- 2 Bedrooms
- Enclosed Garden
- Covered Seating Area
- Driveway Parking
Description
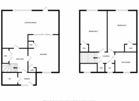
ENTRANCE PORCH 4' 4" x 4' 3" (1.32m x 1.3m) tiled flooring; UPVC double-glazed door to front; UPVC double-glazed windows to front and side aspects.
DOWNSTAIRS CLOAKROOM 6' 5" x 3' 9" (1.96m x 1.14m) fitted with a white suite comprising of a low level wc, vanity hand wash basin with mixer tap over and storage cupboards below, tiled splash back, wall mounted gas-fired boiler.
ENTRANCE HALLWAY 7' 11 max minus stairwell" x 5' 11" (2.41m x 1.8m) UPVC double-glazed door to porchway; floors to first floor landing; under stairs storage cupboard.
SITTING ROOM 20 max' x 13' 7 max" (6.1m x 4.14m) L-shaped sitting room /dining room; UPVC double-glazed window to rear; UPVC double-glazed door to rear; dining area, wall mounted electric fire.
KITCHEN 11' 4 max" x 8' 7 max" (3.45m x 2.62m) fitted with a range of wall and base units with square edge work surfaces over; built-in electric oven; inset 4 ring electric hob with cooker hood over; inset stainless steel single drainer sink with mixer tap over; plumbing for automatic washing machine; tiled splashbacks; space for fridge freezer; built-in pantry cupboard; built-in storage cupboard; UPVC double-glazed window to front.
FIRST FLOOR LANDING 7' x 2' 10" (2.13m x 0.86m) loft access, built-in storage cupboard.
BEDROOM 1 13' 8 max" x 10' 5 max" (4.17m x 3.18m) UPVC double-glazed window to rear; built-in wardrobe.
BEDROOM 2 13' 7 max" x 9' 1 max" (4.14m x 2.77m) UPVC double-glazed window to rear; built-in wardrobe.
SHOWER ROOM/ WET ROOM 5' 10" x 5' 7" (1.78m x 1.7m) fitted with a vanity wash hand basin with mixer tap over and storage cupboards below, wall mounted electric shower unit; fully tiled walls; wet room style flooring; UPVC double-glazed window to front.
SEPARATE WC 4' 9" x 2' 8" (1.45m x 0.81m) UPVC double-glazed window to front; low level wc.
OUTSIDE To the front of the property is a garden area laid mainly to lawn with driveway parking and shingle borders, paved patio seating area provides ideal space for relaxing and entertaining, outside tap. To the rear of the property is an enclosed garden area laid mainly to lawn with well stocked flower and shrub borders, paved patio area with covered pagoda providing, storage area, brick built shed, rear access gate and visitors car park area.
COUNCIL TAX This property is currently listed as Band A.
VIEWINGS Strictly by appointment with the selling agents, BYCROFT ESTATE AGENTS, tel: .
DISCLAIMER While we endeavour to make our sales particulars fair, accurate and reliable, they are only a general guide to the property and, accordingly, if there is any point which is of particular importance to you, please contact the office and we will be pleased to check the position for you, especially if you are contemplating travelling some distance to view the property.
The approximate room sizes are only intended as general guidance. You must verify the dimensions carefully before ordering carpets or any built-in furniture.
Any references to garden sizes are approximate and subject to confirmation by a measured survey. A prospective purchaser is advised to arrange for their own land survey to be carried out.
Please note we have not tested the services or any of the equipment or appliances in this property, accordingly we strongly advise prospective buyers to commission their own survey or service reports before finalising their offer to purchase.
THESE PARTICULARS ARE ISSUED IN GOOD FAITH BUT DO NOT CONSTITUTE REPRESENTATIONS OF FACT OR FORM PART OF ANY OFFER OR CONTRACT. THE MATTERS REFERRED TO IN THESE PARTICULARS SHOULD BE INDEPENDENTLY VERIFIED BY PROSPECTIVE BUYERS.
- COUNCIL TAXA payment made to your local authority in order to pay for local services like schools, libraries, and refuse collection. The amount you pay depends on the value of the property.Read more about council Tax in our glossary page.
- Band: A
- PARKINGDetails of how and where vehicles can be parked, and any associated costs.Read more about parking in our glossary page.
- Garage
- GARDENA property has access to an outdoor space, which could be private or shared.
- Yes
- ACCESSIBILITYHow a property has been adapted to meet the needs of vulnerable or disabled individuals.Read more about accessibility in our glossary page.
- Ask agent
Charles Close, Caister-on-sea
Add an important place to see how long it'd take to get there from our property listings.
__mins driving to your place
Get an instant, personalised result:
- Show sellers you’re serious
- Secure viewings faster with agents
- No impact on your credit score



Your mortgage
Notes
Staying secure when looking for property
Ensure you're up to date with our latest advice on how to avoid fraud or scams when looking for property online.
Visit our security centre to find out moreDisclaimer - Property reference 101177013522. The information displayed about this property comprises a property advertisement. Rightmove.co.uk makes no warranty as to the accuracy or completeness of the advertisement or any linked or associated information, and Rightmove has no control over the content. This property advertisement does not constitute property particulars. The information is provided and maintained by Bycroft Estate Agents, Great Yarmouth. Please contact the selling agent or developer directly to obtain any information which may be available under the terms of The Energy Performance of Buildings (Certificates and Inspections) (England and Wales) Regulations 2007 or the Home Report if in relation to a residential property in Scotland.
*This is the average speed from the provider with the fastest broadband package available at this postcode. The average speed displayed is based on the download speeds of at least 50% of customers at peak time (8pm to 10pm). Fibre/cable services at the postcode are subject to availability and may differ between properties within a postcode. Speeds can be affected by a range of technical and environmental factors. The speed at the property may be lower than that listed above. You can check the estimated speed and confirm availability to a property prior to purchasing on the broadband provider's website. Providers may increase charges. The information is provided and maintained by Decision Technologies Limited. **This is indicative only and based on a 2-person household with multiple devices and simultaneous usage. Broadband performance is affected by multiple factors including number of occupants and devices, simultaneous usage, router range etc. For more information speak to your broadband provider.
Map data ©OpenStreetMap contributors.




