
6 bedroom semi-detached house for sale
Mostyn Avenue, Craig Y Don

- PROPERTY TYPE
Semi-Detached
- BEDROOMS
6
- BATHROOMS
2
- SIZE
Ask agent
- TENUREDescribes how you own a property. There are different types of tenure - freehold, leasehold, and commonhold.Read more about tenure in our glossary page.
Freehold
Key features
- SUBSTANTIAL SIX BEDROOM SEMI DETACHED HOME
- OFFERS VERSATILE AND EXTENDED ACCOMMODATION
- VICTORIAN PERIOD PROPERTY WITH CHARMING FEATURES
- MODERN KITCHEN AND BATHROOM
- SITUATED ON THE LEVEL CLOSE TO THE SHOPS & PROMENADE
- FREEHOLD
Description
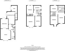
The versatile and substantial accommodation which is laid over three floors comprises: Entrance porch with double doors through to the hallway, W.C, lounge with wall mounted electric fire and double doors into the dining room which has double doors onto the rear garden, recently fitted modern kitchen/breakfast room with integrated full length fridge and freezer, electric oven, gas hob, corner carousel cupboard and a cupboard for a dryer, inner hall area providing access to a utility room with space and plumbing for a washing machine and the Ideal combination boiler, snug with double doors onto the rear garden.
To the first floor: Landing with walk in store cupboard/room, three bedrooms and four piece bathroom.
To the second floor: Three further bedrooms (one of which currently has some kitchen units fitted) and a shower room.
UPVC double glazing and gas fired Ideal combination boiler.
To the outside there is a low maintenance gated front garden with timber gate providing access to the rear garden which is mainly laid to lawn with flagged patio seating areas, raised beds and a timber gate providing access to the rear.
Porch
6' 0'' x 3' 11'' (1.83m x 1.19m)
Hall
18' 3'' x 9' 6'' (5.56m x 2.89m)
W.C
5' 7'' x 5' 5'' (1.70m x 1.65m)
Lounge
16' 8'' x 15' 2'' (5.08m x 4.62m)
Dining Room
14' 9'' x 11' 9'' (4.49m x 3.58m)
Snug
8' 10'' x 9' 1'' (2.69m x 2.77m)
Utility Room
7' 4'' x 3' 5'' (2.23m x 1.04m)
Kitchen/Breakfast Room
18' 10'' x 11' 10'' (5.74m x 3.60m)
Landing
8' 6'' x 12' 7'' (2.59m x 3.83m)
Bedroom One
16' 6'' x 11' 11'' (5.03m x 3.63m)
Bedroom Two
13' 0'' x 9' 5'' (3.96m x 2.87m)
Bedroom Three
12' 9'' x 11' 10'' (3.88m x 3.60m)
Bathroom
9' 5'' x 6' 7'' (2.87m x 2.01m)
Store Room
4' 6'' x 2' 11'' (1.37m x 0.89m)
Landing
5' 3'' x 3' 7'' (1.60m x 1.09m)
Bedroom Four
15' 11'' x 9' 11'' (4.85m x 3.02m)
Bedroom Five
14' 0'' x 11' 6'' (4.26m x 3.50m)
Shower Room
10' 7'' x 4' 8'' (3.22m x 1.42m)
Bedroom Six
9' 10'' x 9' 7'' (2.99m x 2.92m)
Location
The property is situated in a residential street in Craig Y Don within level walking distance of the local shops, other facilities and the Promenade, the theatre, Mostyn Champney Retail Park, the new shopping development off Mostyn Broadway and Craig Y Don local shops and amenities.
Directions
From our Conwy office follow the one-way system out of Conwy via the bridge. At the roundabout take the first exit onto Glan y Mor Road. Take a right turn up Pentywyn Road and proceed along, going straight across at the mini roundabout, continue until you reach the large roundabout. Take the third exit onto Queen's Road and proceed to the end of this road. At the junction turn right onto Mostyn Avenue where the property will be located on the left-hand side.
Brochures
Full Details- COUNCIL TAXA payment made to your local authority in order to pay for local services like schools, libraries, and refuse collection. The amount you pay depends on the value of the property.Read more about council Tax in our glossary page.
- Band: E
- PARKINGDetails of how and where vehicles can be parked, and any associated costs.Read more about parking in our glossary page.
- Ask agent
- GARDENA property has access to an outdoor space, which could be private or shared.
- Yes
- ACCESSIBILITYHow a property has been adapted to meet the needs of vulnerable or disabled individuals.Read more about accessibility in our glossary page.
- Ask agent
Mostyn Avenue, Craig Y Don
Add an important place to see how long it'd take to get there from our property listings.
__mins driving to your place
Get an instant, personalised result:
- Show sellers you’re serious
- Secure viewings faster with agents
- No impact on your credit score
Your mortgage
Notes
Staying secure when looking for property
Ensure you're up to date with our latest advice on how to avoid fraud or scams when looking for property online.
Visit our security centre to find out moreDisclaimer - Property reference 12804070. The information displayed about this property comprises a property advertisement. Rightmove.co.uk makes no warranty as to the accuracy or completeness of the advertisement or any linked or associated information, and Rightmove has no control over the content. This property advertisement does not constitute property particulars. The information is provided and maintained by Fletcher & Poole, Conwy. Please contact the selling agent or developer directly to obtain any information which may be available under the terms of The Energy Performance of Buildings (Certificates and Inspections) (England and Wales) Regulations 2007 or the Home Report if in relation to a residential property in Scotland.
*This is the average speed from the provider with the fastest broadband package available at this postcode. The average speed displayed is based on the download speeds of at least 50% of customers at peak time (8pm to 10pm). Fibre/cable services at the postcode are subject to availability and may differ between properties within a postcode. Speeds can be affected by a range of technical and environmental factors. The speed at the property may be lower than that listed above. You can check the estimated speed and confirm availability to a property prior to purchasing on the broadband provider's website. Providers may increase charges. The information is provided and maintained by Decision Technologies Limited. **This is indicative only and based on a 2-person household with multiple devices and simultaneous usage. Broadband performance is affected by multiple factors including number of occupants and devices, simultaneous usage, router range etc. For more information speak to your broadband provider.
Map data ©OpenStreetMap contributors.








