Woodland Terrace, ABERCARN, NP11

- PROPERTY TYPE
Terraced
- BEDROOMS
2
- BATHROOMS
1
- SIZE
Ask agent
- TENUREDescribes how you own a property. There are different types of tenure - freehold, leasehold, and commonhold.Read more about tenure in our glossary page.
Freehold
Key features
- REDUCED
Description
It is surrounded by mountains and countryside, but is a stroll away from village amenities, the local pub, and school.
The main road links to the M4 corridor are nearby, as are the railway stations in Newbridge and Crosskeys.
If you enjoy rural walks there are an abundance of them.
It enjoys a generously sized garden to the front, ideal for enjoying the feel of the countryside.
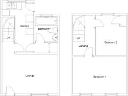
Inside you find a cosy lounge, a fitted kitchen, and a bathroom to the ground floor and a small landing and two double bedrooms on the first floor.
The lounge (4.51m x 3.20m) has a door and a window to the front, and laminate flooring.
The kitchen (4.56m x 1.48m x 2.45m x 1.03m L shaped) has a window and door to the exterior, tiled flooring, and a range of cabinets with room for appliances.
The family bathroom (2.03m x 1.71m) has a window, laminate flooring, wall tiling, a WC, a wash basin, and a bath with an electric shower over.
The first-floor landing leads to the two bedrooms.
Bedroom one (4.44m x 3.07m) has two rear windows, and carpet flooring.
Bedroom two (3.15m x 2.50m) has a front window for the views, fitted storage that houses the boiler, and carpet flooring.
Your perfect first home, your perfect cottage.
- COUNCIL TAXA payment made to your local authority in order to pay for local services like schools, libraries, and refuse collection. The amount you pay depends on the value of the property.Read more about council Tax in our glossary page.
- Ask agent
- PARKINGDetails of how and where vehicles can be parked, and any associated costs.Read more about parking in our glossary page.
- Ask agent
- GARDENA property has access to an outdoor space, which could be private or shared.
- Yes
- ACCESSIBILITYHow a property has been adapted to meet the needs of vulnerable or disabled individuals.Read more about accessibility in our glossary page.
- Ask agent
Energy performance certificate - ask agent
Woodland Terrace, ABERCARN, NP11
Add an important place to see how long it'd take to get there from our property listings.
__mins driving to your place
Get an instant, personalised result:
- Show sellers you’re serious
- Secure viewings faster with agents
- No impact on your credit score
Affordability
Notes
Staying secure when looking for property
Ensure you're up to date with our latest advice on how to avoid fraud or scams when looking for property online.
Visit our security centre to find out moreDisclaimer - Property reference WOODLANDTCETHIRTYFOUR. The information displayed about this property comprises a property advertisement. Rightmove.co.uk makes no warranty as to the accuracy or completeness of the advertisement or any linked or associated information, and Rightmove has no control over the content. This property advertisement does not constitute property particulars. The information is provided and maintained by Cariad Property, Newbridge. Please contact the selling agent or developer directly to obtain any information which may be available under the terms of The Energy Performance of Buildings (Certificates and Inspections) (England and Wales) Regulations 2007 or the Home Report if in relation to a residential property in Scotland.
*This is the average speed from the provider with the fastest broadband package available at this postcode. The average speed displayed is based on the download speeds of at least 50% of customers at peak time (8pm to 10pm). Fibre/cable services at the postcode are subject to availability and may differ between properties within a postcode. Speeds can be affected by a range of technical and environmental factors. The speed at the property may be lower than that listed above. You can check the estimated speed and confirm availability to a property prior to purchasing on the broadband provider's website. Providers may increase charges. The information is provided and maintained by Decision Technologies Limited. **This is indicative only and based on a 2-person household with multiple devices and simultaneous usage. Broadband performance is affected by multiple factors including number of occupants and devices, simultaneous usage, router range etc. For more information speak to your broadband provider.
Map data ©OpenStreetMap contributors.





