
Larkspur Drive, Cramlington, Newcastle Upon Tyne

Letting details
- Let available date:
- Now
- Deposit:
- Ask agentA deposit provides security for a landlord against damage, or unpaid rent by a tenant.Read more about deposit in our glossary page.
- Min. Tenancy:
- Ask agent How long the landlord offers to let the property for.Read more about tenancy length in our glossary page.
- Let type:
- Long term
- Furnish type:
- Unfurnished
- Council Tax:
- Ask agent
- PROPERTY TYPE
Town House
- BEDROOMS
3
- BATHROOMS
2
- SIZE
Ask agent
Key features
- Professional Landlord
- New Build Property
- White Goods Included
- Off Road Parking
- Pets Considered
- Call For More Information
- Long Term Tenancies Available
- Zero Deposit Option Available
- Council Tax Band: C
Description
ZERO DEPOSIT OPTION AVAILABLE. Jan Forster Estates are delighted to offer this 'Norbury' style house, located in West Meadows in Cramlington.
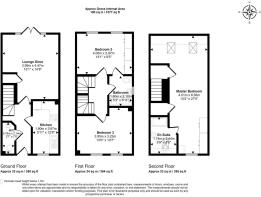
This three-storey home, features generously sized rooms and abundant storage options. The ground floor welcomes you with a delightful lounge/diner located at the rear of the property, with French doors linking the indoor and outdoor space. At the front, a modern kitchen awaits, accompanied by a separate WC and a convenient storage cupboard. The first floor accommodates 2 spacious double bedrooms and a family bathroom serves as a dividing space between these two bedrooms. The second floor provides an expansive main bedroom, which covers the entire floor space and includes a dressing area, en-suite and further storage cupboards.
Living here means you can enjoy country walks at Northumberlandia, just minutes from your doorstep. As well as being a short drive or walk from Manor Walks shopping centre and Cramlington train station. With local amenities, close access to the A19 and A1 and schools rated 'Good' nearby, West Meadows is the perfect place for your family to call home.
Lomond, on behalf of Lloyds Living, part of Lloyds Banking Group, operates a growing portfolio of more than 3,000 professionally managed homes for rent, improving access to good value, quality, sustainable housing across the UK. Lloyds Living helps to support investment into local communities by building and renting homes that people want, in the places they are needed.
Property features and specifications may vary on a plot-by-plot basis. Whilst every attempt has been made to ensure accuracy, all measurements are approximate and not to scale. Computer-generated images, floor plans, and photos (CGIs) are for illustrative purposes only and may not represent the final design or finish of the property. For further information on layouts and specifications, please speak to your Lloyds Living representative.
Brochures
Larkspur Drive, Cramlington, Newcastle Upon Tyne- COUNCIL TAXA payment made to your local authority in order to pay for local services like schools, libraries, and refuse collection. The amount you pay depends on the value of the property.Read more about council Tax in our glossary page.
- Band: C
- PARKINGDetails of how and where vehicles can be parked, and any associated costs.Read more about parking in our glossary page.
- Yes
- GARDENA property has access to an outdoor space, which could be private or shared.
- Ask agent
- ACCESSIBILITYHow a property has been adapted to meet the needs of vulnerable or disabled individuals.Read more about accessibility in our glossary page.
- Ask agent
Larkspur Drive, Cramlington, Newcastle Upon Tyne
Add an important place to see how long it'd take to get there from our property listings.
__mins driving to your place
Notes
Staying secure when looking for property
Ensure you're up to date with our latest advice on how to avoid fraud or scams when looking for property online.
Visit our security centre to find out moreDisclaimer - Property reference 34385131. The information displayed about this property comprises a property advertisement. Rightmove.co.uk makes no warranty as to the accuracy or completeness of the advertisement or any linked or associated information, and Rightmove has no control over the content. This property advertisement does not constitute property particulars. The information is provided and maintained by Jan Forster Estates, Gosforth. Please contact the selling agent or developer directly to obtain any information which may be available under the terms of The Energy Performance of Buildings (Certificates and Inspections) (England and Wales) Regulations 2007 or the Home Report if in relation to a residential property in Scotland.
*This is the average speed from the provider with the fastest broadband package available at this postcode. The average speed displayed is based on the download speeds of at least 50% of customers at peak time (8pm to 10pm). Fibre/cable services at the postcode are subject to availability and may differ between properties within a postcode. Speeds can be affected by a range of technical and environmental factors. The speed at the property may be lower than that listed above. You can check the estimated speed and confirm availability to a property prior to purchasing on the broadband provider's website. Providers may increase charges. The information is provided and maintained by Decision Technologies Limited. **This is indicative only and based on a 2-person household with multiple devices and simultaneous usage. Broadband performance is affected by multiple factors including number of occupants and devices, simultaneous usage, router range etc. For more information speak to your broadband provider.
Map data ©OpenStreetMap contributors.





