Healthcare facility to lease
Hanley Road, London, N4
- SIZE AVAILABLE
5,350 sq ft
497 sq m
- SECTOR
Healthcare facility to lease
- USE CLASSUse class orders: Class E
E
Lease details
- Lease available date:
- Ask agent
Key features
- Former Medical Centre in prominent location
- Class E use - Suitable for a variety of uses such as Nursery, Office, Vets, Gym
- Approximately 5,350 sq ft
- Six on-site parking spaces together with an external garden area
- Well-configured accommodation over ground and first floor, providing adaptable space that could be split if required
- Landlord may consider a sale of the virtual freehold (999 Years)
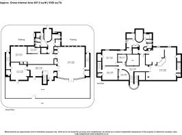
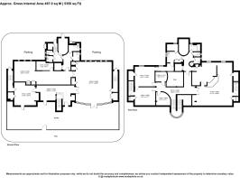
Description
Externally, the property benefits from secure, gated outside space, with rear parking bays providing parking for up to six vehicles. Internally, the ground floor features an impressive double-volume entrance hall, six classrooms / treatment rooms / offices, together with a kitchen, WCs and ancillary storage. The first floor provides four further classrooms / treatment rooms / offices, a large landing with a feature window, two WCs, a shower room and a kitchen.
The landlord may also consider a sale of the virtual freehold (999 years)
The property is located on the northern side of Hanley Road, which connects directly with Hornsey Road and Crouch Hill / Stroud Green Road. Crouch Hill Station (London Overground) is within a short walk, providing convenient access across London. The property is also within easy reach of Finsbury Park, Crouch End and Holloway Road / Archway, with Archway Underground Station close by.
The area is a popular and well-established location, with a wide selection of cafés, bars and restaurants situated along Crouch Hill and Stroud Green Road, all within walking distance. The property is further well positioned for Highgate and Islington, with good road access to the North Circular Road, the M1 via Brent Cross, and Central London.
Brochures
Hanley Road, London, N4
NEAREST STATIONS
Distances are straight line measurements from the centre of the postcode- Crouch Hill Station0.1 miles
- Finsbury Park Station0.6 miles
- Harringay Station0.7 miles
Notes
Disclaimer - Property reference AMP4568. The information displayed about this property comprises a property advertisement. Rightmove.co.uk makes no warranty as to the accuracy or completeness of the advertisement or any linked or associated information, and Rightmove has no control over the content. This property advertisement does not constitute property particulars. The information is provided and maintained by Alex Martin Commercial Ltd, London. Please contact the selling agent or developer directly to obtain any information which may be available under the terms of The Energy Performance of Buildings (Certificates and Inspections) (England and Wales) Regulations 2007 or the Home Report if in relation to a residential property in Scotland.
Map data ©OpenStreetMap contributors.





