Throws Corner, Stebbing, Dunmow, Essex, CM6
- PROPERTY TYPE
Land
- SIZE
Ask agent
Key features
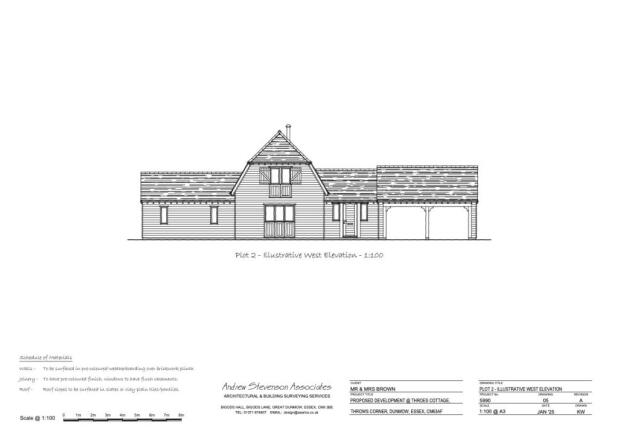
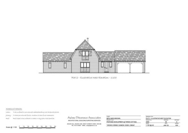
- Building Plot 0.30 of an acre
- Planning Permission for a 4 Bedroom Detached Dwelling
- Approaching 2000 sq ft of accommodation
- (Planning Ref : UTT/ 25/0314/OP)
- Off-Street Parking
- Double Garage
- Private Rear Garden
Description
IMPORTANT NOTE TO POTENTIAL PURCHASERS & TENANTS:
We endeavour to make our particulars accurate and reliable, however, they do not constitute or form part of an offer or any contract and none is to be relied upon as statements of representation or fact. The services, systems and appliances listed in this specification have not been tested by us and no guarantee as to their operating ability or efficiency is given. All photographs and measurements have been taken as a guide only and are not precise. Floor plans where included are not to scale and accuracy is not guaranteed. If you require clarification or further information on any points, please contact us, especially if you are travelling some distance to view.
POTENTIAL PURCHASERS: Fixtures and fittings other than those mentioned are to be agreed with the seller.
POTENTIAL TENANTS: Properties are offered in line with current legislation, including the Renters Rights Act. Tenancies will typically be granted as periodic (rolling) agreements, unless otherwise agreed. A security deposit will be required, capped in line with current legislation. It is the tenant’s responsibility to insure their personal possessions.
BUYERS INFORMATION
To conform with government Money Laundering Regulations 2019, we are required to confirm the identity of all prospective buyers. We use the services of a third party, Lifetime Legal, who will contact you directly at an agreed time to do this. They will need the full name, date of birth and current address of all buyers and ID. There is a nominal charge of £80 inc VAT for this (for the transaction not per person), payable direct to Lifetime Legal. Please note, we are unable to advertise a property or issue a memorandum of sale until the checks are complete.
REFERRAL FEES
We may refer you to recommended providers of ancillary services such as Conveyancing, Financial Services, Insurance and Surveying. We may receive a commission payment fee or other benefit (known as a referral fee) for recommending their services. You are not under any obligation to use the services of the recommended provider. The ancillary service provider may be an associated company of Intercounty.
IFC250162/5
Brochures
Full Brochure PDFThrows Corner, Stebbing, Dunmow, Essex, CM6
NEAREST STATIONS
Distances are straight line measurements from the centre of the postcode- Stansted Airport Station6.4 miles



Notes
Disclaimer - Property reference IFC250162. The information displayed about this property comprises a property advertisement. Rightmove.co.uk makes no warranty as to the accuracy or completeness of the advertisement or any linked or associated information, and Rightmove has no control over the content. This property advertisement does not constitute property particulars. The information is provided and maintained by Fine & Country, Bishop's Stortford. Please contact the selling agent or developer directly to obtain any information which may be available under the terms of The Energy Performance of Buildings (Certificates and Inspections) (England and Wales) Regulations 2007 or the Home Report if in relation to a residential property in Scotland.
Map data ©OpenStreetMap contributors.




