
Main Street, Drymen

- PROPERTY TYPE
Detached
- BEDROOMS
4
- BATHROOMS
2
- SIZE
Ask agent
- TENUREDescribes how you own a property. There are different types of tenure - freehold, leasehold, and commonhold.Read more about tenure in our glossary page.
Freehold
Description
• Fantastic location in Drymen
• Original house dating from mid 19th century
• High standard of specification throughout (inc. engineered oak floors across much of ground floor)
• Four bedrooms, three large public areas
• Hive Smart Heating
• Large, landscaped gardens grounds
• Workshop which is accessed from the garage, with sheltered wood store to the rear
• Amazing panoramic views
• Within The Loch Lomond & The Trossachs National Park
• Off street parking and detached double garage
A simply charming detached property of generous proportion that has, over the decades, been significantly extended and redesigned to create a traditionally styled home that seamlessly meets with the demands of modern living. Set upon a large garden plot to the northerly side of Drymen and with a notably private setting that belies its attractive proximity to the amenities of the Village.
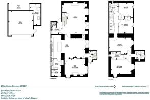
The property was originally constructed c.1856 for the Duke of Montrose as a ‘school of industry’ and was converted for residential use in the 1950’s. A double storey extension was added to the easterly gable in the 1990’s. What now stands is a home formed of seven generous apartments (four bedrooms, three large public rooms), with a generous floor space of c. 2,062 ft² - corners and retreats for all the family. A lovely marriage of period allure and contemporary spaces/finishes.
Our suite of HDR images, 360° immersive tour, HD video, and floor plan will allow for thorough desktop appraisal of the property, with a summary of the accommodation as follows:
Summary of Accommodation
- Reception hallway
- Family room with multi fuel stove
- Open plan dining/kitchen area, the kitchen area benefitting from underfloor heating, separated by breakfast bar
- Secondary kitchen with utility area off
- Spacious lounge with multi fuel stove
- Four double bedrooms
- Family bathroom and separate shower room
The property is set upon a generous plot with and large lawned garden and sections of patio/decking providing space for outdoor furniture/al fresco dining. Bordered by established hedging (great privacy), with a thoughtfully curated selection of perennial/annual specimens providing various points of interest across the seasons.
Parking is to the rear of the property via a shared private road and, combined with the space afforded via the double garage, there is space for three normal sized vehicles.
Situation
Drymen is a south Stirlingshire village, within the Loch Lomond and Trossachs National Park and the “gateway” to the east side of Loch Lomond. It is on the West Highland Way yet is only some 18 miles to Glasgow city centre and 12 miles to the suburbs of Milngavie and Bearsden. Stirling 22 miles, Edinburgh 62 miles. It has a few local shops, two hotels, café, restaurants and one of Scotland’s oldest pubs, The Clachan. Its village primary is well regarded with secondary at Balfron High, which has a strong record of academic achievement.
SAT NAV REF: G63 0BP
EPC : BAND C
COUNCIL TAX : BAND G
TENURE : FREEHOLD
EPC Rating: C
Council Tax Band: G
- COUNCIL TAXA payment made to your local authority in order to pay for local services like schools, libraries, and refuse collection. The amount you pay depends on the value of the property.Read more about council Tax in our glossary page.
- Band: G
- PARKINGDetails of how and where vehicles can be parked, and any associated costs.Read more about parking in our glossary page.
- Garage,Driveway
- GARDENA property has access to an outdoor space, which could be private or shared.
- Yes
- ACCESSIBILITYHow a property has been adapted to meet the needs of vulnerable or disabled individuals.Read more about accessibility in our glossary page.
- Ask agent
Main Street, Drymen
Add an important place to see how long it'd take to get there from our property listings.
__mins driving to your place
Get an instant, personalised result:
- Show sellers you’re serious
- Secure viewings faster with agents
- No impact on your credit score
Your mortgage
Notes
Staying secure when looking for property
Ensure you're up to date with our latest advice on how to avoid fraud or scams when looking for property online.
Visit our security centre to find out moreDisclaimer - Property reference BXL250033. The information displayed about this property comprises a property advertisement. Rightmove.co.uk makes no warranty as to the accuracy or completeness of the advertisement or any linked or associated information, and Rightmove has no control over the content. This property advertisement does not constitute property particulars. The information is provided and maintained by Rettie, Bearsden. Please contact the selling agent or developer directly to obtain any information which may be available under the terms of The Energy Performance of Buildings (Certificates and Inspections) (England and Wales) Regulations 2007 or the Home Report if in relation to a residential property in Scotland.
*This is the average speed from the provider with the fastest broadband package available at this postcode. The average speed displayed is based on the download speeds of at least 50% of customers at peak time (8pm to 10pm). Fibre/cable services at the postcode are subject to availability and may differ between properties within a postcode. Speeds can be affected by a range of technical and environmental factors. The speed at the property may be lower than that listed above. You can check the estimated speed and confirm availability to a property prior to purchasing on the broadband provider's website. Providers may increase charges. The information is provided and maintained by Decision Technologies Limited. **This is indicative only and based on a 2-person household with multiple devices and simultaneous usage. Broadband performance is affected by multiple factors including number of occupants and devices, simultaneous usage, router range etc. For more information speak to your broadband provider.
Map data ©OpenStreetMap contributors.






