
4 bedroom detached house for sale
Willow Tree Fields, Nailsea, Nailsea, BS48

- PROPERTY TYPE
Detached
- BEDROOMS
4
- BATHROOMS
2
- SIZE
Ask agent
- TENUREDescribes how you own a property. There are different types of tenure - freehold, leasehold, and commonhold.Read more about tenure in our glossary page.
Freehold
Key features
- Almost New & Immaculately Presented
- Balance of 10 Year NHBC Guarantee
- Fabulous Kitchen/Dining Room With Integrated Appliances
- Sitting Room & Study
- Utility Room/Cloakroom
- Principal Bedroom & En Suite Bathroom
- Three Further Double Bedrooms
- Garage & Parking
- Glorious South West Facing Rear Gardens
Description
A beautifully presented, energy-efficient, high-specification, nearly new 4-bedroom, 2-bathroom home at Netherton Grange, Nailsea. This outstanding four double bedroom, three reception room, 2 bathroom detached family home is very energy efficient and is offered with the balance of a 10 year NHBC Guarantee. The light and airy property is well presented with neutral decoration and enjoys a prime setting in this sought after development with a private south facing garden, a long drive, a large garage to the side and the advantage of a more open outlook to the front towards an area of parkland.
Typically, the first houses that are occupied in any new development stand in some of the very best positions and this house is no exception with a feeling of space around the property, an attractive approach and a secluded sunny garden.
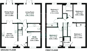
Entrance Hall
Entered via composite door. Stairs rise to first floor accommodation. Doors to Study, Utility/Cloakroom, Sitting Room and Kitchen/Diner. Storage cupboard. Karndean flooring and radiator.
Study
10' 0" x 8' 9" (3.05m x 2.67m)
UPVC double glazed window to front and radiator.
Cloakroom
Fitted with contemporary range of base units with quartz work surfaces over. Inset ceramic hand wash basin with mixer tap over. Integrated washing machine. Low level W.C and extractor fan. Karndean flooring and radiator.
Sitting Room
15' 7" x 12' 10" (4.75m x 3.91m)
UPVC double glazed French doors and windows to rear. Radiator and door to Dining Room.
Dining Room
12' 10" x 10' 8" (3.91m x 3.25m)
UPVC double glazed French doors and windows to rear. Double doors opening to Kitchen. Karndean flooring and radiator.
Kitchen
15' 9" x 11' 0" (4.80m x 3.35m)
Fitted with a range of wall and base units with quartz work surfaces over. Inset one and a half stainless steel sink with mixer tap over. Built in electric double oven, gas hob and extractor over. Wall mounted "Ideal" boiler. Integrated dishwasher and fridge freezer. UPVC double glazed window to front and radiator. Karndean flooring.
First Floor Landing
Loft access. Airing cupboard housing immersion tank. Doors to all Bedrooms & Family Bathroom.
Principal Bedroom
16' 1" x 11' 11" (4.90m x 3.63m)
UPVC double glazed window to front and radiator. Door to En-Suite Shower Room.
En-Suite Shower Room
Tiled and fitted with a white suite comprising; double shower with thermostatic shower attachment, pedestal hand wash basin with mixer tap and low level W.C. Heated towel rail and extractor fan. Tiled floor and UPVC double glazed frosted window to front.
Bedroom Two
13' 1" x 11' 0" (3.99m x 3.35m)
UPVC double glazed window to front and radiator.
Bedroom Three
15' 6" x 7' 4" (4.72m x 2.24m)
UPVC double glazed window to rear and radiator.
Bedroom Four
12' 6" x 8' 4" (3.81m x 2.54m)
UPVC double glazed window to rear and radiator.
Bathroom
Tiled and fitted with a white suite comprising; panelled bath with mixer taps, thermostatic shower attachment and glazed screen over, pedestal hand wash basin with mixer tap and low level W.C. UPVC double glazed frosted window to rear and radiator. Extractor fan and tiled floor.
Rear Garden
fully closed by timber panel fencing. Paved patio adjoins the property, with steps descending to laid to lawn. Pedestrian door to Garage and gated side access to front. Outdoor lighting and tap.
Front Garden
Tarmac driveway, with parking for 2/3 cars.
Garage
Up and over door to front. Lighting and power connected.
Tenure & Council Tax Band
Tenure: Freehold
Council Tax Band: F
Brochures
Brochure 1- COUNCIL TAXA payment made to your local authority in order to pay for local services like schools, libraries, and refuse collection. The amount you pay depends on the value of the property.Read more about council Tax in our glossary page.
- Band: F
- PARKINGDetails of how and where vehicles can be parked, and any associated costs.Read more about parking in our glossary page.
- Yes
- GARDENA property has access to an outdoor space, which could be private or shared.
- Yes
- ACCESSIBILITYHow a property has been adapted to meet the needs of vulnerable or disabled individuals.Read more about accessibility in our glossary page.
- Ask agent
Willow Tree Fields, Nailsea, Nailsea, BS48
Add an important place to see how long it'd take to get there from our property listings.
__mins driving to your place
Get an instant, personalised result:
- Show sellers you’re serious
- Secure viewings faster with agents
- No impact on your credit score
Your mortgage
Notes
Staying secure when looking for property
Ensure you're up to date with our latest advice on how to avoid fraud or scams when looking for property online.
Visit our security centre to find out moreDisclaimer - Property reference 29554922. The information displayed about this property comprises a property advertisement. Rightmove.co.uk makes no warranty as to the accuracy or completeness of the advertisement or any linked or associated information, and Rightmove has no control over the content. This property advertisement does not constitute property particulars. The information is provided and maintained by Hunter Leahy, Nailsea. Please contact the selling agent or developer directly to obtain any information which may be available under the terms of The Energy Performance of Buildings (Certificates and Inspections) (England and Wales) Regulations 2007 or the Home Report if in relation to a residential property in Scotland.
*This is the average speed from the provider with the fastest broadband package available at this postcode. The average speed displayed is based on the download speeds of at least 50% of customers at peak time (8pm to 10pm). Fibre/cable services at the postcode are subject to availability and may differ between properties within a postcode. Speeds can be affected by a range of technical and environmental factors. The speed at the property may be lower than that listed above. You can check the estimated speed and confirm availability to a property prior to purchasing on the broadband provider's website. Providers may increase charges. The information is provided and maintained by Decision Technologies Limited. **This is indicative only and based on a 2-person household with multiple devices and simultaneous usage. Broadband performance is affected by multiple factors including number of occupants and devices, simultaneous usage, router range etc. For more information speak to your broadband provider.
Map data ©OpenStreetMap contributors.





