2 bedroom terraced house for sale
Granadiers Rd, Winchester, SO22 6GR

- PROPERTY TYPE
Terraced
- BEDROOMS
2
- SIZE
Ask developer
- TENUREDescribes how you own a property. There are different types of tenure - freehold, leasehold, and commonhold.Read more about tenure in our glossary page.
Ask developer
Key features
- All-inclusive specification as standard
- High specification kitchen with integrated Bosch appliances
- Amtico flooring and carpet throughout
- Lawned rear garden with paved paths/ patio area and shed
- En suite and fitted wardrobe to bedroom one
- Juliet balcony and ensuite to bedroom two
- Airsource heat pumps
- Electric car charging point
- Two allocated parking spaces
- Located just a short walk to Winchester train station and town
Description
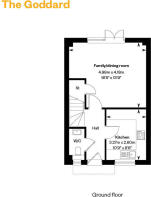
The Goddard is contemporary in every way. Featuring an informal living and dining space with a separate kitchen for cooking and relaxing in style, as well as access to the rear garden through French doors. The W.C. and under stairs cupboard add to the convenience of this modern home.
Both bedrooms are well-proportioned, with the primary featuring an en suite bathroom as well as a built-in wardrobe, while the second bedroom is complemented by an en suite shower room. Benefiting from two car parking spaces and electric car charging point.
Tenure - Freehold. Service Charge - N/A. Council Tax - D. Management fee - £218
*Terms and conditions apply
Brochures
Brochure 1- COUNCIL TAXA payment made to your local authority in order to pay for local services like schools, libraries, and refuse collection. The amount you pay depends on the value of the property.Read more about council Tax in our glossary page.
- Ask developer
- PARKINGDetails of how and where vehicles can be parked, and any associated costs.Read more about parking in our glossary page.
- Yes
- GARDENA property has access to an outdoor space, which could be private or shared.
- Yes
- ACCESSIBILITYHow a property has been adapted to meet the needs of vulnerable or disabled individuals.Read more about accessibility in our glossary page.
- Ask developer
Energy performance certificate - ask developer
Granadiers Rd, Winchester, SO22 6GR
Add an important place to see how long it'd take to get there from our property listings.
__mins driving to your place
Get an instant, personalised result:
- Show sellers you’re serious
- Secure viewings faster with agents
- No impact on your credit score
About Cala Homes Southern
Cala Homes
For many, the name Cala is synonymous with stunning design.
You’ll see it throughout our exclusive developments with their striking, individual homes, which combine traditional design features with contemporary home comforts. Generously proportioned and boasting light, bright living areas, these aspirational and award winning homes are the foundation of Cala’s excellent reputation in the quality house building market.
We began building homes over thirty years ago, and today we apply the same guiding principles of exceptional design and build, insisting on meeting stringent standards and offering value for money in a wide range of sought-after locations. Whatever you’re seeking, be it a stylish waterfront apartment, a rural retreat or an urban pied-a-terre, Cala Homes offer an outstanding choice of properties for the discerning housebuyer across the UK.
Your mortgage
Notes
Staying secure when looking for property
Ensure you're up to date with our latest advice on how to avoid fraud or scams when looking for property online.
Visit our security centre to find out moreDisclaimer - Property reference 339261_2_33_100774. The information displayed about this property comprises a property advertisement. Rightmove.co.uk makes no warranty as to the accuracy or completeness of the advertisement or any linked or associated information, and Rightmove has no control over the content. This property advertisement does not constitute property particulars. The information is provided and maintained by Cala Homes Southern. Please contact the selling agent or developer directly to obtain any information which may be available under the terms of The Energy Performance of Buildings (Certificates and Inspections) (England and Wales) Regulations 2007 or the Home Report if in relation to a residential property in Scotland.
*This is the average speed from the provider with the fastest broadband package available at this postcode. The average speed displayed is based on the download speeds of at least 50% of customers at peak time (8pm to 10pm). Fibre/cable services at the postcode are subject to availability and may differ between properties within a postcode. Speeds can be affected by a range of technical and environmental factors. The speed at the property may be lower than that listed above. You can check the estimated speed and confirm availability to a property prior to purchasing on the broadband provider's website. Providers may increase charges. The information is provided and maintained by Decision Technologies Limited. **This is indicative only and based on a 2-person household with multiple devices and simultaneous usage. Broadband performance is affected by multiple factors including number of occupants and devices, simultaneous usage, router range etc. For more information speak to your broadband provider.
Map data ©OpenStreetMap contributors.





