
Little Ninnis, Redruth, Cornwall, TR16

- PROPERTY TYPE
Barn Conversion
- BEDROOMS
2
- BATHROOMS
2
- SIZE
Ask agent
- TENUREDescribes how you own a property. There are different types of tenure - freehold, leasehold, and commonhold.Read more about tenure in our glossary page.
Freehold
Key features
- Development opportunity
- Barn conversion
- Planning consent for two dwellings
- Semi-detached
- Rural
- Open plan living
- Utility & bathroom
- En-suites
- Quiet location
Description
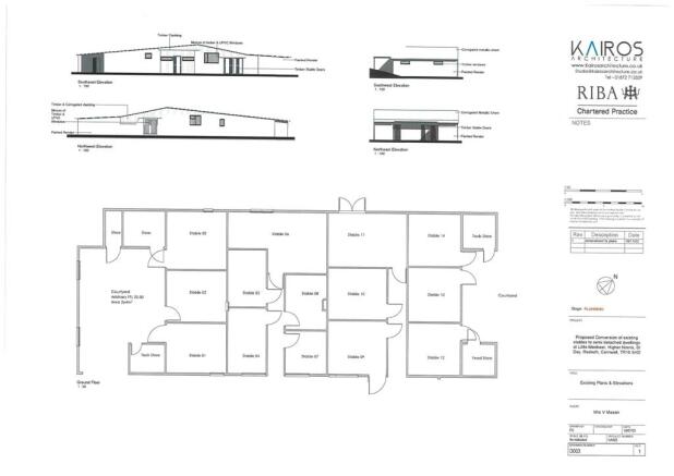
Planning Permission Granted – PA24/00608
Miller Countrywide are delighted to offer to the market this fantastic development opportunity on behalf of our client. Set within a peaceful rural Cornish hamlet with beautiful countryside views, this site offers full planning permission to convert a redundant stable block into two semi-detached dwellings.
The Development
This unique opportunity allows the buyer to create two charming semi-detached homes, each thoughtfully designed to complement the tranquil rural surroundings while offering modern, open-plan living.
Each proposed property features:
• Spacious open-plan living area
• Separate utility room
• Two double bedrooms, both with en-suite bathrooms
• Additional family bathroom
• Private parking and gardens
This scheme perfectly balances rural character with contemporary comfort — ideal for those seeking an investment project or a countryside retreat.
Services & Utilities
• Mains water and mains electricity are available on site
• Soakaway system in place
• Private drainage will need to be installed
• Heating via air-source heat pump (recommended)
• Potential to incorporate solar PV and solar-thermal systems
Planning Details
• Planning Application No.: PA24/00608
• Permission granted to convert the existing redundant stable block into two semi-detached dwellings
• Full architectural drawings, floor plans, and location plans are available upon request
Location
Little Menheer Farm sits in Higher Ninnis, St Day, a quiet rural hamlet yet conveniently close to local amenities. The nearby village of St Day offers a welcoming community with:
• Vogue Inn pub
• St Day FC football club
• Local shops and services
The towns of Redruth and Camborne are only a short drive away, offering supermarkets, leisure facilities, and rail connections to Penzance, Truro, and London Paddington.
Truro city centre is also within easy reach, providing a wider range of shops, restaurants, and schools.
Why You’ll Love It
This is a rare opportunity to acquire a slice of genuine Cornish countryside with full planning already in place. Whether you’re a developer, builder, or self-builder looking for your next project, Little Menheer Farm offers huge potential to create two stunning homes surrounded by beautiful scenery and close to all local conveniences.
Viewings & Enquiries
Viewings are by appointment only.
To register your interest or obtain further information, please contact Miller Countrywide (Camborne Branch) on .
What three words for directions
enclosing.operating.closed
Here’s how to get to Little Menheer Farm (postcode TR16 5HD, in the hamlet of Higher Ninnis / St Day, Cornwall).
Location overview
• Address: Little Menheer Farm, Higher Ninnis / Ninnis, St Day / Redruth, Cornwall TR16 5HD.
• It’s a rural farm area, so lanes may be narrow.
By car
1. Input TR16 5HD into your GPS or map app.
2. From the major roads (e.g., the A30): exit towards the Redruth / St Day / Higher Ninnis area.
3. As you get closer to Higher Ninnis, watch for narrow country lanes and farm-entrance signage.
4. On arrival at the lane in Higher Ninnis you should see Little Menheer Farm along that lane (or nearby signposted).
5. Park thoughtfully—farm tracks may require slower speeds and care around buildings and livestock.
Public transport & last leg
• There are no direct major transport links to the farm itself (rural location).
• If coming by train or bus to a nearby town (e.g., Redruth or St Day), you’ll likely need a taxi for the final leg into the lane at Higher Ninnis.
• Check local bus services to Higher Ninnis / St Day and then arrange onward travel.
Brochures
Particulars- COUNCIL TAXA payment made to your local authority in order to pay for local services like schools, libraries, and refuse collection. The amount you pay depends on the value of the property.Read more about council Tax in our glossary page.
- Band: TBC
- PARKINGDetails of how and where vehicles can be parked, and any associated costs.Read more about parking in our glossary page.
- Yes
- GARDENA property has access to an outdoor space, which could be private or shared.
- Yes
- ACCESSIBILITYHow a property has been adapted to meet the needs of vulnerable or disabled individuals.Read more about accessibility in our glossary page.
- Ask agent
Energy performance certificate - ask agent
Little Ninnis, Redruth, Cornwall, TR16
Add an important place to see how long it'd take to get there from our property listings.
__mins driving to your place
Get an instant, personalised result:
- Show sellers you’re serious
- Secure viewings faster with agents
- No impact on your credit score



Affordability
Notes
Staying secure when looking for property
Ensure you're up to date with our latest advice on how to avoid fraud or scams when looking for property online.
Visit our security centre to find out moreDisclaimer - Property reference CAO250356. The information displayed about this property comprises a property advertisement. Rightmove.co.uk makes no warranty as to the accuracy or completeness of the advertisement or any linked or associated information, and Rightmove has no control over the content. This property advertisement does not constitute property particulars. The information is provided and maintained by Miller Countrywide, Camborne. Please contact the selling agent or developer directly to obtain any information which may be available under the terms of The Energy Performance of Buildings (Certificates and Inspections) (England and Wales) Regulations 2007 or the Home Report if in relation to a residential property in Scotland.
*This is the average speed from the provider with the fastest broadband package available at this postcode. The average speed displayed is based on the download speeds of at least 50% of customers at peak time (8pm to 10pm). Fibre/cable services at the postcode are subject to availability and may differ between properties within a postcode. Speeds can be affected by a range of technical and environmental factors. The speed at the property may be lower than that listed above. You can check the estimated speed and confirm availability to a property prior to purchasing on the broadband provider's website. Providers may increase charges. The information is provided and maintained by Decision Technologies Limited. **This is indicative only and based on a 2-person household with multiple devices and simultaneous usage. Broadband performance is affected by multiple factors including number of occupants and devices, simultaneous usage, router range etc. For more information speak to your broadband provider.
Map data ©OpenStreetMap contributors.




