2 bedroom terraced house for sale
Parc Fferws, Penybanc, Ammanford, SA18 3QX

- PROPERTY TYPE
Terraced
- BEDROOMS
2
- BATHROOMS
1
- SIZE
Ask agent
- TENUREDescribes how you own a property. There are different types of tenure - freehold, leasehold, and commonhold.Read more about tenure in our glossary page.
Ask agent
Key features
- Two Bed Modern Terrace Home
- Ideal First Time Buyer's Purchase
- Ground Floor WC
- First Floor Bathrooom
- Gas C/h & Double Glazing
- Low Maintenance Rear Garden
- Popular Developemnt
- Ease Of Access To M4 Motorway
- Outskirts Of Ammanford Town Centre
- EPC Rating: B
Description
A modern mid-terrace property located on a popular development in the village of Penybanc, on the outskirts of Ammanford. This home offers two double bedrooms, a ground-floor cloakroom, and a first-floor bathroom. It benefits from gas-fired central heating and double glazing throughout. Externally, there is off-road parking for two vehicles at the front and a manageable rear garden, offering ease of maintenance and convenience. This property is ideal for first-time buyers or those looking to downsize.
Penybanc village provides essential amenities, including a shop and petrol station, with the main shopping facilities available in nearby Ammanford town centre. Easy access to the M4 motorway is available via junction 49 at Pont Abraham.
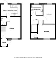
Accommodation:
Entrance Porch
Lounge - 4.6m x 4.04m (15'1" x 13'3"/9'8")
Kitchen/Breakfast Room - 3.84m x 2.46m (12'7"/10'2" x 8'1")
First Floor Landing
Bedroom One - 3.56m x 3m (11'8" x 9'10")
Bedroom Two - 3.53m x 2.21m (11'7" x 7'3"/6'3)
Bathroom - 2.21m x 1.75m (7'3" x 5'9")
Externally
Services
Tenure
Council Tax
Broadband/Mobile Phone Coverage
Disclaimer
Brochures
Brochure 1- COUNCIL TAXA payment made to your local authority in order to pay for local services like schools, libraries, and refuse collection. The amount you pay depends on the value of the property.Read more about council Tax in our glossary page.
- Band: C
- PARKINGDetails of how and where vehicles can be parked, and any associated costs.Read more about parking in our glossary page.
- Driveway
- GARDENA property has access to an outdoor space, which could be private or shared.
- Private garden
- ACCESSIBILITYHow a property has been adapted to meet the needs of vulnerable or disabled individuals.Read more about accessibility in our glossary page.
- Ask agent
Parc Fferws, Penybanc, Ammanford, SA18 3QX
Add an important place to see how long it'd take to get there from our property listings.
__mins driving to your place
Get an instant, personalised result:
- Show sellers you’re serious
- Secure viewings faster with agents
- No impact on your credit score
Your mortgage
Notes
Staying secure when looking for property
Ensure you're up to date with our latest advice on how to avoid fraud or scams when looking for property online.
Visit our security centre to find out moreDisclaimer - Property reference S1581209. The information displayed about this property comprises a property advertisement. Rightmove.co.uk makes no warranty as to the accuracy or completeness of the advertisement or any linked or associated information, and Rightmove has no control over the content. This property advertisement does not constitute property particulars. The information is provided and maintained by Calow Evans, Ammanford. Please contact the selling agent or developer directly to obtain any information which may be available under the terms of The Energy Performance of Buildings (Certificates and Inspections) (England and Wales) Regulations 2007 or the Home Report if in relation to a residential property in Scotland.
*This is the average speed from the provider with the fastest broadband package available at this postcode. The average speed displayed is based on the download speeds of at least 50% of customers at peak time (8pm to 10pm). Fibre/cable services at the postcode are subject to availability and may differ between properties within a postcode. Speeds can be affected by a range of technical and environmental factors. The speed at the property may be lower than that listed above. You can check the estimated speed and confirm availability to a property prior to purchasing on the broadband provider's website. Providers may increase charges. The information is provided and maintained by Decision Technologies Limited. **This is indicative only and based on a 2-person household with multiple devices and simultaneous usage. Broadband performance is affected by multiple factors including number of occupants and devices, simultaneous usage, router range etc. For more information speak to your broadband provider.
Map data ©OpenStreetMap contributors.




