
3 bedroom detached bungalow for sale
Snowdrop Cottage, Cothill, Abingdon, OX13

- PROPERTY TYPE
Detached Bungalow
- BEDROOMS
3
- BATHROOMS
1
- SIZE
Ask agent
- TENUREDescribes how you own a property. There are different types of tenure - freehold, leasehold, and commonhold.Read more about tenure in our glossary page.
Freehold
Key features
- Approx 1175 sq.ft accommodation
- 47' x 18'7 outbuilding 875 sq.ft (currently in a state of disrepair)
- Efficient newly installed electric heaters, plus wood burning stove
- Replacement double glazed windows
- Council Tax Band:F
- Services: Mains electricity and water connected. Septic tank drainage
- EPC Rating: F
- Council Tax Band: F
Description
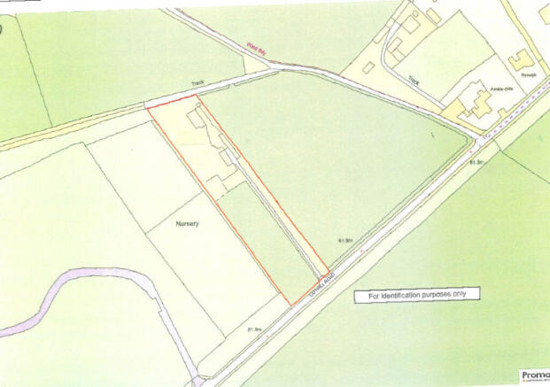
A unique and rare opportunity to acquire an early 1960’s built 3 bedroom detached bungalow which has been the subject of much recent improvement, in a tranquil rural setting just 3 miles west of Abingdon on Thames, with paddock and gardens amounting to approx. 2 acres.
Planning Permission
Planning permission has recently been granted by the Vale of White Horse District Council for the demolition of existing dwelling and garage, and erection of replacement dwelling, annex and garage block. P25/V1550/FUL Please see the proposed computer-generated images herewith for a visual reference; detailed information of which can be found on the Vale of White Horse online planning portal.
The Location
Tucked away (almost hidden) down a long private driveway akin to a country lane, to the left of which is its own paddock bordered by woodland, and to the right of which is open farmland with far reaching views beyond. There is gated access to the rear of the property onto a tree fringed bridle path, connecting to a number of scenic lightly wooded countryside walks few are privileged to experience.
Rural but by no means isolated. Marcham is the nearest village, just a mile away with community store/Post Office, infant & primary school, pub (additional nearby pub/restaurants are available), church and petrol station. The historic market town of Abingdon is within 3 miles and provides more comprehensive shopping, schooling and recreational amenities.
Oxford is just 8 miles, whilst quick and easy access is available onto the nearby A34 connecting northbound to the M40, southbound to the M4. For commuters, Didcot Parking is approx 12 miles and provides a regular mainline connection to London Paddington in as little as 36 minutes. Keen golfers – treat yourselves to nearby Frilford Heath’s three 18-hole championship quality courses.
- COUNCIL TAXA payment made to your local authority in order to pay for local services like schools, libraries, and refuse collection. The amount you pay depends on the value of the property.Read more about council Tax in our glossary page.
- Band: F
- PARKINGDetails of how and where vehicles can be parked, and any associated costs.Read more about parking in our glossary page.
- Driveway
- GARDENA property has access to an outdoor space, which could be private or shared.
- Yes
- ACCESSIBILITYHow a property has been adapted to meet the needs of vulnerable or disabled individuals.Read more about accessibility in our glossary page.
- Ask agent
Snowdrop Cottage, Cothill, Abingdon, OX13
Add an important place to see how long it'd take to get there from our property listings.
__mins driving to your place
Get an instant, personalised result:
- Show sellers you’re serious
- Secure viewings faster with agents
- No impact on your credit score
Your mortgage
Notes
Staying secure when looking for property
Ensure you're up to date with our latest advice on how to avoid fraud or scams when looking for property online.
Visit our security centre to find out moreDisclaimer - Property reference RX726008. The information displayed about this property comprises a property advertisement. Rightmove.co.uk makes no warranty as to the accuracy or completeness of the advertisement or any linked or associated information, and Rightmove has no control over the content. This property advertisement does not constitute property particulars. The information is provided and maintained by Thomas Merrifield, Abingdon. Please contact the selling agent or developer directly to obtain any information which may be available under the terms of The Energy Performance of Buildings (Certificates and Inspections) (England and Wales) Regulations 2007 or the Home Report if in relation to a residential property in Scotland.
*This is the average speed from the provider with the fastest broadband package available at this postcode. The average speed displayed is based on the download speeds of at least 50% of customers at peak time (8pm to 10pm). Fibre/cable services at the postcode are subject to availability and may differ between properties within a postcode. Speeds can be affected by a range of technical and environmental factors. The speed at the property may be lower than that listed above. You can check the estimated speed and confirm availability to a property prior to purchasing on the broadband provider's website. Providers may increase charges. The information is provided and maintained by Decision Technologies Limited. **This is indicative only and based on a 2-person household with multiple devices and simultaneous usage. Broadband performance is affected by multiple factors including number of occupants and devices, simultaneous usage, router range etc. For more information speak to your broadband provider.
Map data ©OpenStreetMap contributors.








