3 bedroom semi-detached house for sale
Collingwood Road, Great Yarmouth

- PROPERTY TYPE
Semi-Detached
- BEDROOMS
3
- BATHROOMS
2
- SIZE
Ask agent
- TENUREDescribes how you own a property. There are different types of tenure - freehold, leasehold, and commonhold.Read more about tenure in our glossary page.
Freehold
Key features
- 3 Double Bedrooms
- Modern Fitted Kitchen
- 3 Spacious Reception Rooms
- Downstairs Shower Room
- En-Suite Shower Room
- Separate Bathroom
- Utility Room
- Popular Location
- West Facing Garden
- Walking Distance to the Beach and Sea
Description
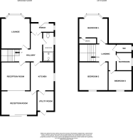
PORCH UPVC front door and side panel; UPVC window to side with double internal doors into hallway.
DOWNSTAIRS SHOWER ROOM low level wc; wash basin; walk-in electric shower, UPVC window; radiator.
KITCHEN 12' x 10' (3.66m x 3.05m) range of white gloss base units; pantry style cupboard; integrated double oven; electric hob; large UPVC window to side aspect; radiator.
UTILITY ROOM houses the gas central heating boiler; UPVC window to side; UPVC double door to rear; space for washing machine, tumble dryer and a slim line dishwasher (still to install).
RECEPTION ROOM 1 12' x 12' (3.66m x 3.66m) UPVC bay window to front aspect; radiator; feature fireplace.
RECEPTION ROOM 2 12' x 11' (3.66m x 3.35m) feature fireplace; opens to Reception room 3.
RECEPTION ROOM 3 14' x 10' (4.27m x 3.05m) large sliding UPVC patio doors to rear garden; radiator.
FIRST FLOOR
BEDROOM 1 12' 0" x 11' 0" (3.66m x 3.35m) spacious double-bedroom; bay UPVC window to front aspect; radiator; en-suite.
BEDROOM 2 12' x 11' (3.66m x 3.35m) large UPVC window to rear aspect; radiator.
BEDROOM 3 10' x 8' (3.05m x 2.44m) UPVC window to rear aspect overlooking the garden; radiator.
BATHROOM comprising of a jacuzzi bath with hand held shower; wash basin; UPVC window; fully tiled.
SEPARATE WC UPVC window; radiator.
GARAGE brick built; up and over door; power.
OUTSIDE To the rear is a low maintenance large brick weaved area ideal for outside dining, summer house
COUNCIL TAX This property is currently listed as Band D.
VIEWINGS Strictly by appointment with the selling agents, BYCROFT ESTATE AGENTS, tel: .
DISCLAIMER While we endeavour to make our sales particulars fair, accurate and reliable, they are only a general guide to the property and, accordingly, if there is any point which is of particular importance to you, please contact the office and we will be pleased to check the position for you, especially if you are contemplating travelling some distance to view the property.
The approximate room sizes are only intended as general guidance. You must verify the dimensions carefully before ordering carpets or any built-in furniture.
Any references to garden sizes are approximate and subject to confirmation by a measured survey. A prospective purchaser is advised to arrange for their own land survey to be carried out.
Please note we have not tested the services or any of the equipment or appliances in this property, accordingly we strongly advise prospective buyers to commission their own survey or service reports before finalising their offer to purchase.
THESE PARTICULARS ARE ISSUED IN GOOD FAITH BUT DO NOT CONSTITUTE REPRESENTATIONS OF FACT OR FORM PART OF ANY OFFER OR CONTRACT. THE MATTERS REFERRED TO IN THESE PARTICULARS SHOULD BE INDEPENDENTLY VERIFIED BY PROSPECTIVE BUYERS
- COUNCIL TAXA payment made to your local authority in order to pay for local services like schools, libraries, and refuse collection. The amount you pay depends on the value of the property.Read more about council Tax in our glossary page.
- Band: D
- PARKINGDetails of how and where vehicles can be parked, and any associated costs.Read more about parking in our glossary page.
- Garage,Off street
- GARDENA property has access to an outdoor space, which could be private or shared.
- Yes
- ACCESSIBILITYHow a property has been adapted to meet the needs of vulnerable or disabled individuals.Read more about accessibility in our glossary page.
- Ask agent
Collingwood Road, Great Yarmouth
Add an important place to see how long it'd take to get there from our property listings.
__mins driving to your place
Get an instant, personalised result:
- Show sellers you’re serious
- Secure viewings faster with agents
- No impact on your credit score



Your mortgage
Notes
Staying secure when looking for property
Ensure you're up to date with our latest advice on how to avoid fraud or scams when looking for property online.
Visit our security centre to find out moreDisclaimer - Property reference 101177013553. The information displayed about this property comprises a property advertisement. Rightmove.co.uk makes no warranty as to the accuracy or completeness of the advertisement or any linked or associated information, and Rightmove has no control over the content. This property advertisement does not constitute property particulars. The information is provided and maintained by Bycroft Estate Agents, Great Yarmouth. Please contact the selling agent or developer directly to obtain any information which may be available under the terms of The Energy Performance of Buildings (Certificates and Inspections) (England and Wales) Regulations 2007 or the Home Report if in relation to a residential property in Scotland.
*This is the average speed from the provider with the fastest broadband package available at this postcode. The average speed displayed is based on the download speeds of at least 50% of customers at peak time (8pm to 10pm). Fibre/cable services at the postcode are subject to availability and may differ between properties within a postcode. Speeds can be affected by a range of technical and environmental factors. The speed at the property may be lower than that listed above. You can check the estimated speed and confirm availability to a property prior to purchasing on the broadband provider's website. Providers may increase charges. The information is provided and maintained by Decision Technologies Limited. **This is indicative only and based on a 2-person household with multiple devices and simultaneous usage. Broadband performance is affected by multiple factors including number of occupants and devices, simultaneous usage, router range etc. For more information speak to your broadband provider.
Map data ©OpenStreetMap contributors.




