
2 bedroom bungalow for sale
Willoughby Avenue, Didsbury, M20

- PROPERTY TYPE
Bungalow
- BEDROOMS
2
- BATHROOMS
1
- SIZE
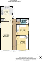
976 sq ft
91 sq m
- TENUREDescribes how you own a property. There are different types of tenure - freehold, leasehold, and commonhold.Read more about tenure in our glossary page.
Freehold
Key features
- Two Bedroom Bungalow
- In Need Of Renovation
- Heaps Of Potential
- Quiet Cul-De-Sac
- Approx. 976 Sq.Ft
- South Easterly Garden
- Detached Garage
- Walking Distance To Didsbury Village
Description
The accommodation reveals and enclosed porch, opening to the hallway with cloak room and rear door out to the garden. There is a bright and spacious double length bay-fronted living room, with ample space for both living and dining furniture. A door from the living room leads through to the spacious kitchen, fitted with an ample selection of base and wall units. Dual aspect windows flood the room in natural light. A door provides access from the kitchen to the garden.
There are two bedrooms, both fitted with bespoke fitted wardrobes. The property is served by the modern wet room.
The property is approached via a driveway, providing access to the detached garage. A gate to the side of the property provides access through to the South Westerly garden, which is mainly laid to lawn with a block paved patio area.
The property has vast scope to improve and extend, subject to relevant planning and consent.
Freehold
Council Tax Band: D
Approx. 976 Sq.Ft
- COUNCIL TAXA payment made to your local authority in order to pay for local services like schools, libraries, and refuse collection. The amount you pay depends on the value of the property.Read more about council Tax in our glossary page.
- Band: D
- PARKINGDetails of how and where vehicles can be parked, and any associated costs.Read more about parking in our glossary page.
- Yes
- GARDENA property has access to an outdoor space, which could be private or shared.
- Yes
- ACCESSIBILITYHow a property has been adapted to meet the needs of vulnerable or disabled individuals.Read more about accessibility in our glossary page.
- Ask agent
Energy performance certificate - ask agent
Willoughby Avenue, Didsbury, M20
Add an important place to see how long it'd take to get there from our property listings.
__mins driving to your place
Get an instant, personalised result:
- Show sellers you’re serious
- Secure viewings faster with agents
- No impact on your credit score



Your mortgage
Notes
Staying secure when looking for property
Ensure you're up to date with our latest advice on how to avoid fraud or scams when looking for property online.
Visit our security centre to find out moreDisclaimer - Property reference DIS260043. The information displayed about this property comprises a property advertisement. Rightmove.co.uk makes no warranty as to the accuracy or completeness of the advertisement or any linked or associated information, and Rightmove has no control over the content. This property advertisement does not constitute property particulars. The information is provided and maintained by Philip James Kennedy, Didsbury. Please contact the selling agent or developer directly to obtain any information which may be available under the terms of The Energy Performance of Buildings (Certificates and Inspections) (England and Wales) Regulations 2007 or the Home Report if in relation to a residential property in Scotland.
*This is the average speed from the provider with the fastest broadband package available at this postcode. The average speed displayed is based on the download speeds of at least 50% of customers at peak time (8pm to 10pm). Fibre/cable services at the postcode are subject to availability and may differ between properties within a postcode. Speeds can be affected by a range of technical and environmental factors. The speed at the property may be lower than that listed above. You can check the estimated speed and confirm availability to a property prior to purchasing on the broadband provider's website. Providers may increase charges. The information is provided and maintained by Decision Technologies Limited. **This is indicative only and based on a 2-person household with multiple devices and simultaneous usage. Broadband performance is affected by multiple factors including number of occupants and devices, simultaneous usage, router range etc. For more information speak to your broadband provider.
Map data ©OpenStreetMap contributors.





