
Hogarth Road, London, SW5

Letting details
- Let available date:
- 01/07/2026
- Deposit:
- Ask agentA deposit provides security for a landlord against damage, or unpaid rent by a tenant.Read more about deposit in our glossary page.
- Min. Tenancy:
- Ask agent How long the landlord offers to let the property for.Read more about tenancy length in our glossary page.
- Furnish type:
- Furnished
- Council Tax:
- Ask agent
- PROPERTY TYPE
Flat
- BEDROOMS
1
- BATHROOMS
1
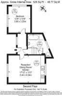
- SIZE
525 sq ft
49 sq m
Key features
- Fully Furnished
- Safe environment
- Student friendly
- Great local amenities
- Heart of London
Description
Bright Comfortable living room - Windows on two walls (can easily fit a 2nd person sleeping area)
Fully equipped open kitchen
Full Bathroom includes a bathtub for ultimate relaxation
Third Floor
Central Heating
24 hours CCTV Security
2 minutes Walking distance to Earls Court tube station
10 minutes Walking distance to Gloucester Road tube station
Great local amenities (supermarket, pharmacies, banks, restaurants and more)
Walking distance to Natural History Museum and Imperial College
Location:
* 2 mins to Earl's Court tube
* 10 mins to Gloucester Road station
* Walking distance to Imperial College & Natural History Museum
* Surrounded by shops, pharmacies, restaurants & more
Ready from 01 July 2026- Flexible Stays Welcome:
* Summer stays ( from 1 week to 3 months - short courses & internships)
* Academic Year 2026/27 - contracts from September
Fees:
* No agency fees
* A Happy New Horse Year Promotion - Book before 17 February 2026 & get 50% of one week's rent as CASHBACK !
* Utility bills negotiable - for student booking 2026/27 Academic Year !
- COUNCIL TAXA payment made to your local authority in order to pay for local services like schools, libraries, and refuse collection. The amount you pay depends on the value of the property.Read more about council Tax in our glossary page.
- Ask agent
- PARKINGDetails of how and where vehicles can be parked, and any associated costs.Read more about parking in our glossary page.
- Ask agent
- GARDENA property has access to an outdoor space, which could be private or shared.
- Ask agent
- ACCESSIBILITYHow a property has been adapted to meet the needs of vulnerable or disabled individuals.Read more about accessibility in our glossary page.
- Ask agent
Hogarth Road, London, SW5
Add an important place to see how long it'd take to get there from our property listings.
__mins driving to your place
Notes
Staying secure when looking for property
Ensure you're up to date with our latest advice on how to avoid fraud or scams when looking for property online.
Visit our security centre to find out moreDisclaimer - Property reference 3Hogarth. The information displayed about this property comprises a property advertisement. Rightmove.co.uk makes no warranty as to the accuracy or completeness of the advertisement or any linked or associated information, and Rightmove has no control over the content. This property advertisement does not constitute property particulars. The information is provided and maintained by RR Properties, London. Please contact the selling agent or developer directly to obtain any information which may be available under the terms of The Energy Performance of Buildings (Certificates and Inspections) (England and Wales) Regulations 2007 or the Home Report if in relation to a residential property in Scotland.
*This is the average speed from the provider with the fastest broadband package available at this postcode. The average speed displayed is based on the download speeds of at least 50% of customers at peak time (8pm to 10pm). Fibre/cable services at the postcode are subject to availability and may differ between properties within a postcode. Speeds can be affected by a range of technical and environmental factors. The speed at the property may be lower than that listed above. You can check the estimated speed and confirm availability to a property prior to purchasing on the broadband provider's website. Providers may increase charges. The information is provided and maintained by Decision Technologies Limited. **This is indicative only and based on a 2-person household with multiple devices and simultaneous usage. Broadband performance is affected by multiple factors including number of occupants and devices, simultaneous usage, router range etc. For more information speak to your broadband provider.
Map data ©OpenStreetMap contributors.






