
Padstow Road, Childwall, L16

- PROPERTY TYPE
Semi-Detached
- BEDROOMS
3
- BATHROOMS
1
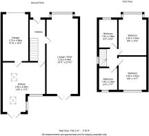
- SIZE
1,176 sq ft
109 sq m
Key features
- Immaculately Presented Semi Detached Home
- Stunning Modern Fitted Kitchen With Integrated Appliances, Ceiling Speakers And Automated Lighting
- Beautifully Manicured 88ft West Facing Rear Garden
- Three Well Proportioned Double Bedrooms
- Spacious Integral Garage
- Cosy Lounge With Log Burner And Patio Doors Overlooking The Rear Garden
- Dining Area With Feature Fire Place, Bay Window And Media Wall
- Security Lighting & CCTV Surrounding Property
- Off Road Parking
- Highly Desirable Area In The Catchment For Reputable Primary & Secondary Schools
Description
Situated on the highly regarded Padstow Road in the heart of Childwall, L16, this exceptional three-bedroom home has been thoughtfully upgraded to an outstanding standard, offering stylish, contemporary living with impressive outdoor space.
Upon arrival, the property benefits from off-road parking and a beautifully maintained front garden, creating excellent kerb appeal. Stepping inside, you are welcomed by a bright and spacious entrance hall, enhanced by automated sensor lighting and striking LED feature lighting along the staircase, setting the tone for the quality found throughout.
To the left, a generous through lounge and dining room provides an ideal space for both relaxation and entertaining. The cosy lounge features a powerful 9.5kW log burner and patio doors overlooking the picturesque rear garden. The adjoining dining area boasts a bespoke media wall with feature lighting, a bay window, and an attractive feature fireplace. This elegant space is finished with walnut engineered flooring and recessed spotlights.
The ground floor is further complemented by a high-specification kitchen, designed for modern family living. Fitted with quartz worktops and a breakfast bar, the kitchen includes a full range of integrated appliances, including a dishwasher, fridge freezer, washer, dryer, wine fridge, induction hob, and double oven. Two picture windows and additional patio doors flood the space with natural light and provide seamless access to the garden. The kitchen also offers internal access to the integral garage, which is well-sized, fully powered and lit, and presents excellent potential for conversion, subject to relevant permissions. Both the kitchen and hallway are finished with Amtico LVT flooring throughout.
To the first floor are three well-proportioned bedrooms. The rear bedroom enjoys stunning views over the garden and features a panelled feature wall and useful storage cupboard. The impressive master bedroom benefits from a bay window, panelled chimney breast, and two large fitted wardrobes, which the current vendors are happy to leave. The third bedroom is also of a good size and comfortably accommodates a double bed. The accommodation is completed by a well-appointed family bathroom with a walk in shower, basin and toilet, with the benefit of automated PIR controlled LED lighting, feature spot lights in skirting boards and Amtico LVT flooring.
Externally, the rear garden is truly a standout feature. Extending to approximately 88 feet and enjoying a west-facing aspect, this beautifully landscaped space has been designed for both entertaining and relaxation. Highlights include automated programmed feature lighting, bespoke water feature, custom-built dual barbecue, multi-tiered layout with gabion walls, a handcrafted pergola, three separate dining areas, as well as security lighting and CCTV.
This remarkable home combines high-quality finishes, generous living space, and a stunning outdoor environment, making it an ideal choice for families and discerning buyers seeking a premium property in one of Childwall’s most desirable locations.
Parking - Driveway
- COUNCIL TAXA payment made to your local authority in order to pay for local services like schools, libraries, and refuse collection. The amount you pay depends on the value of the property.Read more about council Tax in our glossary page.
- Band: C
- PARKINGDetails of how and where vehicles can be parked, and any associated costs.Read more about parking in our glossary page.
- Driveway
- GARDENA property has access to an outdoor space, which could be private or shared.
- Private garden
- ACCESSIBILITYHow a property has been adapted to meet the needs of vulnerable or disabled individuals.Read more about accessibility in our glossary page.
- Ask agent
Energy performance certificate - ask agent
Padstow Road, Childwall, L16
Add an important place to see how long it'd take to get there from our property listings.
__mins driving to your place
Get an instant, personalised result:
- Show sellers you’re serious
- Secure viewings faster with agents
- No impact on your credit score
Your mortgage
Notes
Staying secure when looking for property
Ensure you're up to date with our latest advice on how to avoid fraud or scams when looking for property online.
Visit our security centre to find out moreDisclaimer - Property reference 19d8ba4d-10ec-4236-8833-086daa66d74a. The information displayed about this property comprises a property advertisement. Rightmove.co.uk makes no warranty as to the accuracy or completeness of the advertisement or any linked or associated information, and Rightmove has no control over the content. This property advertisement does not constitute property particulars. The information is provided and maintained by North Wall, Liverpool. Please contact the selling agent or developer directly to obtain any information which may be available under the terms of The Energy Performance of Buildings (Certificates and Inspections) (England and Wales) Regulations 2007 or the Home Report if in relation to a residential property in Scotland.
*This is the average speed from the provider with the fastest broadband package available at this postcode. The average speed displayed is based on the download speeds of at least 50% of customers at peak time (8pm to 10pm). Fibre/cable services at the postcode are subject to availability and may differ between properties within a postcode. Speeds can be affected by a range of technical and environmental factors. The speed at the property may be lower than that listed above. You can check the estimated speed and confirm availability to a property prior to purchasing on the broadband provider's website. Providers may increase charges. The information is provided and maintained by Decision Technologies Limited. **This is indicative only and based on a 2-person household with multiple devices and simultaneous usage. Broadband performance is affected by multiple factors including number of occupants and devices, simultaneous usage, router range etc. For more information speak to your broadband provider.
Map data ©OpenStreetMap contributors.





