
3 bedroom semi-detached house for sale
Cedar Road, Barrow-in-furness, LA14 5ED

- PROPERTY TYPE
Semi-Detached
- BEDROOMS
3
- BATHROOMS
1
- SIZE
Ask agent
- TENUREDescribes how you own a property. There are different types of tenure - freehold, leasehold, and commonhold.Read more about tenure in our glossary page.
Freehold
Key features
- 3 Bed Semi-Detached Property
- Sought-after Location
- Parking For Several cars
- Appealing Opportunity For Individuals Or Families
- Gated Driveway
- Detached Garage
- Large Garden To The Side And Rear
- Features A Large Conservatory
- Ample Living Space
- Council Tax Band A
Description
This extended semi-detached house with three bedrooms offers comfortable living in a sought-after location. With a well-proportioned layout and the benefit of a garden, it presents an appealing opportunity for individuals or families seeking a home in the town. The property features a large conservatory to the rear, providing a versatile second reception space. A gated driveway is a major advantage in this location, offering space for several cars and access to a garage.
Location
What3Words///chef.loving.moon
Description
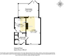
Accessed via a welcoming entrance hall, the ground floor of this property features stairs to the first floor and access to a stylish kitchen and a naturally bright lounge. The lounge boasts a large window to the front elevation and a sliding glass door leading into the conservatory, perfect for relaxation.
The contemporary kitchen will appeal to most, offering a sleek finish with integrated fingertip style handles to the cabinet and drawer fronts, complemented by a wood-effect laminate work surface with an inset sink unit. The kitchen includes an integrated oven, halogen-style hob with splashback and extractor hood, a built-in fridge/freezer and plumbing for a washing machine. The boiler is conveniently concealed within the understairs cupboard, alongside a side access door that leads to the driveway, which offers ample room for several cars and access to the garage.
Upstairs, the landing provides ladder access to the loft and doors to the contemporary-style bathroom and three bedrooms. The third bedroom is currently being utilised as a dressing room/office space. The bathroom features a marble-style panelled finish to the walls, complementing the white sanitary ware and the grey units beneath the hand basin and to the concealed cistern. There is a dual-head shower fitting over the bath and a glazed screen.
Outside, the property benefits from easy-to-maintain garden areas. The local area is well connected by a regular bus service that runs close by. There is also a community hub, a convenience store and schools nearby.
Tenure
Freehold.
Services
Mains gas, electricity, water and drainage.
Brochures
Brochure 1- COUNCIL TAXA payment made to your local authority in order to pay for local services like schools, libraries, and refuse collection. The amount you pay depends on the value of the property.Read more about council Tax in our glossary page.
- Band: A
- PARKINGDetails of how and where vehicles can be parked, and any associated costs.Read more about parking in our glossary page.
- Driveway
- GARDENA property has access to an outdoor space, which could be private or shared.
- Private garden
- ACCESSIBILITYHow a property has been adapted to meet the needs of vulnerable or disabled individuals.Read more about accessibility in our glossary page.
- Ask agent
Energy performance certificate - ask agent
Cedar Road, Barrow-in-furness, LA14 5ED
Add an important place to see how long it'd take to get there from our property listings.
__mins driving to your place
Get an instant, personalised result:
- Show sellers you’re serious
- Secure viewings faster with agents
- No impact on your credit score



Your mortgage
Notes
Staying secure when looking for property
Ensure you're up to date with our latest advice on how to avoid fraud or scams when looking for property online.
Visit our security centre to find out moreDisclaimer - Property reference S1582840. The information displayed about this property comprises a property advertisement. Rightmove.co.uk makes no warranty as to the accuracy or completeness of the advertisement or any linked or associated information, and Rightmove has no control over the content. This property advertisement does not constitute property particulars. The information is provided and maintained by Poole Townsend, Barrow-in-Furness. Please contact the selling agent or developer directly to obtain any information which may be available under the terms of The Energy Performance of Buildings (Certificates and Inspections) (England and Wales) Regulations 2007 or the Home Report if in relation to a residential property in Scotland.
*This is the average speed from the provider with the fastest broadband package available at this postcode. The average speed displayed is based on the download speeds of at least 50% of customers at peak time (8pm to 10pm). Fibre/cable services at the postcode are subject to availability and may differ between properties within a postcode. Speeds can be affected by a range of technical and environmental factors. The speed at the property may be lower than that listed above. You can check the estimated speed and confirm availability to a property prior to purchasing on the broadband provider's website. Providers may increase charges. The information is provided and maintained by Decision Technologies Limited. **This is indicative only and based on a 2-person household with multiple devices and simultaneous usage. Broadband performance is affected by multiple factors including number of occupants and devices, simultaneous usage, router range etc. For more information speak to your broadband provider.
Map data ©OpenStreetMap contributors.






