Common Close, Chandler's Ford, Eastleigh

- PROPERTY TYPE
Detached Bungalow
- BEDROOMS
4
- BATHROOMS
1
- SIZE
Ask agent
- TENUREDescribes how you own a property. There are different types of tenure - freehold, leasehold, and commonhold.Read more about tenure in our glossary page.
Freehold
Description
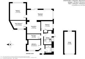
Accommodation -
Entrance Hall: -
Store Room: - 11'9" x 4'5" (3.58m x 1.35m)
Kitchen: - 12' x 7'1" (3.65m x 2.16m) Space for cooker, integrated extractor hood, space for fridge, space and plumbing for washing machine, space and plumbing for dishwasher, wall mounted boiler.
Dining Room: - 11'9" x 10'10" (3.57m x 3.30m)
Sitting Room: - 22'5" x 8'11" (6.83m x 2.73m)
Bedroom 1: - 14'9" x 13'10" (4.50m x 4.22m)
Bedroom 2: - 10'6" x 9' (3.20m x 2.75m)
Bedroom 3: - 10'2" x 7'10" (3.10m x 2.39m)
Bedroom 4 / Study: - 13'11" x 6'11" (4.23m x 2.10m)
Shower Room: - Comprising double width shower cubicle, wash hand basin, WC.
Outside -
Front: - Block paved driveway providing off road parking, side access to rear garden.
Rear Garden: - Area laid to lawn, variety of mature plants, bushes, tress and shrubs.
Garage: - With up and over door.
Other Information -
Tenure: - Freehold
Approximate Age: - 1954
Approximate Area: - 118.6sqm/1278sqft (Including garage)
Sellers Position: - No forward chain
Heating: - Gas central heating
Windows: - UPVC double glazed windows
Loft Space: - Partially boarded with ladder and light connected
Infant/Junior School: - Chandler's Ford Infant/Merdon Junior School
Secondary School: - Thornden Secondary School
Council Tax: - Band E
Local Council: - Eastleigh Borough Council -
Agents Note: - If you have an offer accepted on a property we will need to, by law, conduct Anti Money Laundering Checks. There is a charge of £60 including vat for these checks regardless of the number of buyers involved.
Brochures
Common Close, Chandler's Ford, EastleighBrochure- COUNCIL TAXA payment made to your local authority in order to pay for local services like schools, libraries, and refuse collection. The amount you pay depends on the value of the property.Read more about council Tax in our glossary page.
- Band: E
- PARKINGDetails of how and where vehicles can be parked, and any associated costs.Read more about parking in our glossary page.
- Driveway
- GARDENA property has access to an outdoor space, which could be private or shared.
- Yes
- ACCESSIBILITYHow a property has been adapted to meet the needs of vulnerable or disabled individuals.Read more about accessibility in our glossary page.
- Ask agent
Common Close, Chandler's Ford, Eastleigh
Add an important place to see how long it'd take to get there from our property listings.
__mins driving to your place
Get an instant, personalised result:
- Show sellers you’re serious
- Secure viewings faster with agents
- No impact on your credit score



Your mortgage
Notes
Staying secure when looking for property
Ensure you're up to date with our latest advice on how to avoid fraud or scams when looking for property online.
Visit our security centre to find out moreDisclaimer - Property reference 34436680. The information displayed about this property comprises a property advertisement. Rightmove.co.uk makes no warranty as to the accuracy or completeness of the advertisement or any linked or associated information, and Rightmove has no control over the content. This property advertisement does not constitute property particulars. The information is provided and maintained by Sparks Ellison, Chandler's Ford. Please contact the selling agent or developer directly to obtain any information which may be available under the terms of The Energy Performance of Buildings (Certificates and Inspections) (England and Wales) Regulations 2007 or the Home Report if in relation to a residential property in Scotland.
*This is the average speed from the provider with the fastest broadband package available at this postcode. The average speed displayed is based on the download speeds of at least 50% of customers at peak time (8pm to 10pm). Fibre/cable services at the postcode are subject to availability and may differ between properties within a postcode. Speeds can be affected by a range of technical and environmental factors. The speed at the property may be lower than that listed above. You can check the estimated speed and confirm availability to a property prior to purchasing on the broadband provider's website. Providers may increase charges. The information is provided and maintained by Decision Technologies Limited. **This is indicative only and based on a 2-person household with multiple devices and simultaneous usage. Broadband performance is affected by multiple factors including number of occupants and devices, simultaneous usage, router range etc. For more information speak to your broadband provider.
Map data ©OpenStreetMap contributors.





