3 bedroom terraced house for sale
Coopers Lane, Evesham, WR11

- PROPERTY TYPE
Terraced
- BEDROOMS
3
- BATHROOMS
1
- SIZE
Ask agent
Key features
- No Forward Chain
- Tenanted for Immediate Investment
- 3 Bedrooms
- Terraced House
Description
Bettermove are proud to present this 3 bedroom terraced cottage in Evesham, available with no forward chain.
The property is currently tenanted and it will be sold with tenants in situ for immediate investment. Rental yields can be obtained through Bettermove.
The property benefits from double glazing, and gas central heating throughout. Parking is available, with 2 spaces accessible via private driveway
The council tax band is C.
This is a leasehold property with 973 years remaining on the lease.
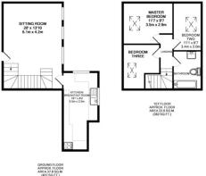
The interior of this beautifully presented property comprises a spacious living room, and fitted kitchen on the ground floor. The first floor consists of three bedrooms and the family bathroom. The exterior boasts a communal garden, perfect for enjoying the summer months.
Located in the popular town of Evesham, the property is close to a range of amenities, including shops, supermarkets, restaurants and pubs. Excellent transport connections can be found from Evesham Train Station, a variety of local bus routes, and quick access to the A46, leading to the M5.
-----------------------------------------------------------------------------------
Reserve It Now
Secure your property with a £1,000 exclusivity deposit.
It’s taken off the market, locked in for you, and returned to you on completion. No risk of being gazumped. No wasted costs.
Talk to our team today about Exclusivity Deposits
------------------------------------------------------------------------------------
Part Exchange Available
We can take your property in as part exchange, giving you a guaranteed buyer and a quicker, chain-free move.
Ask our team today about how our Part Exchange option can help you move with confidence.
Part Exchange subject to terms, valuation, and eligibility.
This exciting opportunity should not be missed. All enquiries can be made through Bettermove.
Building Safety
None
Mobile Signal
4G great data and voice
Construction Type
Floor: (other premises below)Roof: Roof room(s), insulated (assumed)Walls: Solid brick, as built, no insulation (assumed)Windows: Fully double glazed or Velux to upper floor Lighting: Low energy lighting in all fixed outlets
Existing Planning Permission
None
Coalfield or Mining
no
Brochures
Brochure 1- COUNCIL TAXA payment made to your local authority in order to pay for local services like schools, libraries, and refuse collection. The amount you pay depends on the value of the property.Read more about council Tax in our glossary page.
- Band: C
- PARKINGDetails of how and where vehicles can be parked, and any associated costs.Read more about parking in our glossary page.
- Driveway
- GARDENA property has access to an outdoor space, which could be private or shared.
- Ask agent
- ACCESSIBILITYHow a property has been adapted to meet the needs of vulnerable or disabled individuals.Read more about accessibility in our glossary page.
- No wheelchair access
Coopers Lane, Evesham, WR11
Add an important place to see how long it'd take to get there from our property listings.
__mins driving to your place
Get an instant, personalised result:
- Show sellers you’re serious
- Secure viewings faster with agents
- No impact on your credit score
Your mortgage
Notes
Staying secure when looking for property
Ensure you're up to date with our latest advice on how to avoid fraud or scams when looking for property online.
Visit our security centre to find out moreDisclaimer - Property reference 29921076. The information displayed about this property comprises a property advertisement. Rightmove.co.uk makes no warranty as to the accuracy or completeness of the advertisement or any linked or associated information, and Rightmove has no control over the content. This property advertisement does not constitute property particulars. The information is provided and maintained by Bettermove, Nationwide. Please contact the selling agent or developer directly to obtain any information which may be available under the terms of The Energy Performance of Buildings (Certificates and Inspections) (England and Wales) Regulations 2007 or the Home Report if in relation to a residential property in Scotland.
*This is the average speed from the provider with the fastest broadband package available at this postcode. The average speed displayed is based on the download speeds of at least 50% of customers at peak time (8pm to 10pm). Fibre/cable services at the postcode are subject to availability and may differ between properties within a postcode. Speeds can be affected by a range of technical and environmental factors. The speed at the property may be lower than that listed above. You can check the estimated speed and confirm availability to a property prior to purchasing on the broadband provider's website. Providers may increase charges. The information is provided and maintained by Decision Technologies Limited. **This is indicative only and based on a 2-person household with multiple devices and simultaneous usage. Broadband performance is affected by multiple factors including number of occupants and devices, simultaneous usage, router range etc. For more information speak to your broadband provider.
Map data ©OpenStreetMap contributors.




