3 bedroom detached bungalow for sale
Rothafield Road, Oxford, OX2

- PROPERTY TYPE
Detached Bungalow
- BEDROOMS
3
- BATHROOMS
3
- SIZE
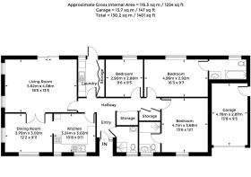
1,259 sq ft
117 sq m
- TENUREDescribes how you own a property. There are different types of tenure - freehold, leasehold, and commonhold.Read more about tenure in our glossary page.
Freehold
Key features
- End of Chain
- Two Bedrooms with En-Suite Bathrooms
- High Specification Kitchen
- Lawn Garden
- Desirable North Oxford Location
- Cherwell Catchment Area
Description
This end of chain, spacious three bedroom detached bungalow has been recently refurbished to offer accessible modern living on a desirable North Oxford side road - perfect for those looking to downsize, or for a first home in this popular community.
The centrepiece of the property is a series of interconnected living spaces, including a high specification kitchen with many integrated appliances and two spacious reception rooms - the larger of which benefits from a feature fireplace and bright sliding doors leading to the leafy garden. Garden access is shared by an adjacent utility room.
There is a wealth of convenient accommodation including three bedrooms, two of which also have access to en-suite bathrooms with stunning contemporary finishes. The family bathroom has been equally modernised, boasting an accessible walk-in-shower.
The garden runs the length of the property, and offers numerous seating areas and well-tended flower-beds. There are further gardens to the front, in addition to an integral garage.
Location:
Situated just north of the centre of Summertown the property is conveniently placed to enjoy the popular cafes, restaurants, and shops. It is within easy distance of Oxford Parkway Station (1 mile ), which gives direct access to London. The house is also ideally situated between the Banbury and Woodstock roads, both with frequent bus services into the City Centre. The area is within the catchment for Wolvercote Primary School and The Cherwell School, with many private schools also in the vicinity.
With a large recreation ground a few yards along the road, and within walking distance of the popular 42 hectares Cutteslowe Park and the meadows of Wolvercote, the house is moments away from expansive green spaces ideal for walking, cycling or just unwinding.
EPC Rating: D
- COUNCIL TAXA payment made to your local authority in order to pay for local services like schools, libraries, and refuse collection. The amount you pay depends on the value of the property.Read more about council Tax in our glossary page.
- Band: F
- PARKINGDetails of how and where vehicles can be parked, and any associated costs.Read more about parking in our glossary page.
- Yes
- GARDENA property has access to an outdoor space, which could be private or shared.
- Yes
- ACCESSIBILITYHow a property has been adapted to meet the needs of vulnerable or disabled individuals.Read more about accessibility in our glossary page.
- Ask agent
Energy performance certificate - ask agent
Rothafield Road, Oxford, OX2
Add an important place to see how long it'd take to get there from our property listings.
__mins driving to your place
Get an instant, personalised result:
- Show sellers you’re serious
- Secure viewings faster with agents
- No impact on your credit score



Your mortgage
Notes
Staying secure when looking for property
Ensure you're up to date with our latest advice on how to avoid fraud or scams when looking for property online.
Visit our security centre to find out moreDisclaimer - Property reference 9c8fa3c4-eb71-4db2-bd8e-ae3e12598f13. The information displayed about this property comprises a property advertisement. Rightmove.co.uk makes no warranty as to the accuracy or completeness of the advertisement or any linked or associated information, and Rightmove has no control over the content. This property advertisement does not constitute property particulars. The information is provided and maintained by Breckon & Breckon, Summertown. Please contact the selling agent or developer directly to obtain any information which may be available under the terms of The Energy Performance of Buildings (Certificates and Inspections) (England and Wales) Regulations 2007 or the Home Report if in relation to a residential property in Scotland.
*This is the average speed from the provider with the fastest broadband package available at this postcode. The average speed displayed is based on the download speeds of at least 50% of customers at peak time (8pm to 10pm). Fibre/cable services at the postcode are subject to availability and may differ between properties within a postcode. Speeds can be affected by a range of technical and environmental factors. The speed at the property may be lower than that listed above. You can check the estimated speed and confirm availability to a property prior to purchasing on the broadband provider's website. Providers may increase charges. The information is provided and maintained by Decision Technologies Limited. **This is indicative only and based on a 2-person household with multiple devices and simultaneous usage. Broadband performance is affected by multiple factors including number of occupants and devices, simultaneous usage, router range etc. For more information speak to your broadband provider.
Map data ©OpenStreetMap contributors.




