
Chadworth Way, Claygate, KT10

Letting details
- Let available date:
- 14/03/2026
- Deposit:
- Ask agentA deposit provides security for a landlord against damage, or unpaid rent by a tenant.Read more about deposit in our glossary page.
- Min. Tenancy:
- 12 months How long the landlord offers to let the property for.Read more about tenancy length in our glossary page.
- Let type:
- Long term
- Furnish type:
- Unfurnished
- Council Tax:
- Ask agent
- PROPERTY TYPE
Detached
- BEDROOMS
4
- BATHROOMS
3
- SIZE
2,540 sq ft
236 sq m
Key features
- 4 Generous Bedrooms
- 3 Bathrooms (2 en-suite)
- Fully fitted kitchen
- Separate laundry/kitchenette
- Spacious two-car garage
- Generous garden
- EPC Rating: D
- Council Tax Band: G
Description
This well-presented four-bedroom house in Surrey offers versatile and comfortable living in a highly sought-after Claygate location.
The property comprises four bedrooms, three bathrooms (two en-suite), a fully fitted kitchen with quartz worktops, a separate laundry/kitchenette, a dining room, a studio room, a separate living room, and a spacious two-car garage. The reception leads directly to a generous garden, providing an ideal space for relaxing or entertaining.
Recently refurbished, the home combines modern finishes with practical living, making it ideal for families or professionals. Conveniently located close to Claygate Overground station and local amenities, it offers easy access to the wider area.
Offered unfurnished and available for occupation from 14 March - contact us today to arrange a viewing.
EPC Rating: D
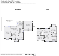
Living room
7.38m x 4.15m
Kitchen
5.63m x 3.7m
Master bedroom
3.84m x 4.07m
Bedroom 2
5.01m x 4.26m
Bedroom 3
2.7m x 3.23m
Bedroom 4
2.63m x 4.19m
Study
3.12m x 3.68m
Dining Room
3.44m x 3.59m
- COUNCIL TAXA payment made to your local authority in order to pay for local services like schools, libraries, and refuse collection. The amount you pay depends on the value of the property.Read more about council Tax in our glossary page.
- Band: G
- PARKINGDetails of how and where vehicles can be parked, and any associated costs.Read more about parking in our glossary page.
- Yes
- GARDENA property has access to an outdoor space, which could be private or shared.
- Rear garden
- ACCESSIBILITYHow a property has been adapted to meet the needs of vulnerable or disabled individuals.Read more about accessibility in our glossary page.
- Ask agent
Energy performance certificate - ask agent
Chadworth Way, Claygate, KT10
Add an important place to see how long it'd take to get there from our property listings.
__mins driving to your place



Notes
Staying secure when looking for property
Ensure you're up to date with our latest advice on how to avoid fraud or scams when looking for property online.
Visit our security centre to find out moreDisclaimer - Property reference 2d4ad790-92fb-4af6-8c74-3f1128f9c233. The information displayed about this property comprises a property advertisement. Rightmove.co.uk makes no warranty as to the accuracy or completeness of the advertisement or any linked or associated information, and Rightmove has no control over the content. This property advertisement does not constitute property particulars. The information is provided and maintained by Lawsons & Daughters, London. Please contact the selling agent or developer directly to obtain any information which may be available under the terms of The Energy Performance of Buildings (Certificates and Inspections) (England and Wales) Regulations 2007 or the Home Report if in relation to a residential property in Scotland.
*This is the average speed from the provider with the fastest broadband package available at this postcode. The average speed displayed is based on the download speeds of at least 50% of customers at peak time (8pm to 10pm). Fibre/cable services at the postcode are subject to availability and may differ between properties within a postcode. Speeds can be affected by a range of technical and environmental factors. The speed at the property may be lower than that listed above. You can check the estimated speed and confirm availability to a property prior to purchasing on the broadband provider's website. Providers may increase charges. The information is provided and maintained by Decision Technologies Limited. **This is indicative only and based on a 2-person household with multiple devices and simultaneous usage. Broadband performance is affected by multiple factors including number of occupants and devices, simultaneous usage, router range etc. For more information speak to your broadband provider.
Map data ©OpenStreetMap contributors.





