Kings Road, Sherborne

- PROPERTY TYPE
Detached
- BEDROOMS
4
- BATHROOMS
2
- SIZE
Ask agent
- TENUREDescribes how you own a property. There are different types of tenure - freehold, leasehold, and commonhold.Read more about tenure in our glossary page.
Freehold
Key features
- Development Opportunity
- Detached Home
- Large Garden
- Sought after Location
- Planning Reference WD/D/18/000185
- Freehold
- Energy Efficiency Rating - TBC
- No Onward Chain
Description
Planning
Planning permission has previously been granted under reference WD/D/18/000185. Interested parties are advised to make their own enquiries with Dorset Council to satisfy themselves as to the scope, status and any conditions attached to this consent.
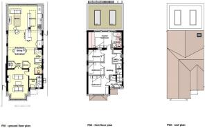
Inside - The property is presently stripped back internally, with walls removed and no fitted staircase or services, allowing flexibility in final layout and design. the attached floorplans illustrate potential arrangements only and should be viewed as a guide. when completed, the accommodation could include a reception room on the ground floor, alongside a spacious kitchen and dining area, with four bedrooms and bath/shower rooms on the first floor. The scale of the house and ceiling heights typical of the Victorian era provide an excellent canvas for a contemporary or period-inspired finish, subject to the necessary consents.
Outside - To the rear is a south-facing garden which offers a good degree of privacy and pleasant outlooks, although it is currently in need of full landscaping. The plot allows space for seating areas and garden design to suit individual tastes. The front aspect reflects the property’s position within an established residential street of attractive period homes.
Situation - Kings Road is a popular and well-regarded street within easy walking distance of Sherborne town centre. Sherborne offers a wide range of independent shops, cafés and restaurants, as well as supermarkets, schooling and leisure facilities. The town benefits from a mainline railway station with regular services to London Waterloo, making it particularly appealing for commuters, while the surrounding Dorset countryside provides excellent walking and outdoor pursuits.
Important Information - The property is currently a building site and is not mortgageable in its present condition. There are no utilities connected, and no fitted kitchen, bathrooms, windows or heating system. The floorplans provided are for guidance only and do not reflect the current internal condition. All works would be subject to the necessary building regulations and consents. The property is offered for sale freehold with no onward chain.
Brochures
Kings Road, Sherborne- COUNCIL TAXA payment made to your local authority in order to pay for local services like schools, libraries, and refuse collection. The amount you pay depends on the value of the property.Read more about council Tax in our glossary page.
- Ask agent
- PARKINGDetails of how and where vehicles can be parked, and any associated costs.Read more about parking in our glossary page.
- Ask agent
- GARDENA property has access to an outdoor space, which could be private or shared.
- Yes
- ACCESSIBILITYHow a property has been adapted to meet the needs of vulnerable or disabled individuals.Read more about accessibility in our glossary page.
- Ask agent
Kings Road, Sherborne
Add an important place to see how long it'd take to get there from our property listings.
__mins driving to your place
Get an instant, personalised result:
- Show sellers you’re serious
- Secure viewings faster with agents
- No impact on your credit score
Your mortgage
Notes
Staying secure when looking for property
Ensure you're up to date with our latest advice on how to avoid fraud or scams when looking for property online.
Visit our security centre to find out moreDisclaimer - Property reference 34439387. The information displayed about this property comprises a property advertisement. Rightmove.co.uk makes no warranty as to the accuracy or completeness of the advertisement or any linked or associated information, and Rightmove has no control over the content. This property advertisement does not constitute property particulars. The information is provided and maintained by Morton New, Sturminster Newton. Please contact the selling agent or developer directly to obtain any information which may be available under the terms of The Energy Performance of Buildings (Certificates and Inspections) (England and Wales) Regulations 2007 or the Home Report if in relation to a residential property in Scotland.
*This is the average speed from the provider with the fastest broadband package available at this postcode. The average speed displayed is based on the download speeds of at least 50% of customers at peak time (8pm to 10pm). Fibre/cable services at the postcode are subject to availability and may differ between properties within a postcode. Speeds can be affected by a range of technical and environmental factors. The speed at the property may be lower than that listed above. You can check the estimated speed and confirm availability to a property prior to purchasing on the broadband provider's website. Providers may increase charges. The information is provided and maintained by Decision Technologies Limited. **This is indicative only and based on a 2-person household with multiple devices and simultaneous usage. Broadband performance is affected by multiple factors including number of occupants and devices, simultaneous usage, router range etc. For more information speak to your broadband provider.
Map data ©OpenStreetMap contributors.




