DANIEL THOMAS | Meadow Cross, Waltham Abbey, EN9

- PROPERTY TYPE
Terraced
- BEDROOMS
3
- BATHROOMS
1
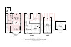
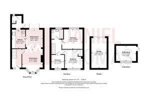
- SIZE
1,052 sq ft
98 sq m
- TENUREDescribes how you own a property. There are different types of tenure - freehold, leasehold, and commonhold.Read more about tenure in our glossary page.
Freehold
Key features
- Quote Ref: 736230 when calling
- CHAIN FREE
- SUPERBLY PRESENTED
- GARAGE AND DRIVEWAY
- CLOAKROOM
- OUTBUILDING FOR HOME OFFICE/ GYM
- CONTEMPORARY KITCHEN & BATHROOM
- REAR ACCESS
- CLOSE TO SCHOOLS
Description
Externally, the home continues to impress with a driveway, garage and a versatile garden outbuilding—ideal for use as a home office, gym or hobby room. Perfectly positioned for families, the property is conveniently located close to schools and excellent commuter links, making it an ideal choice for modern family living.
Viewings
This property is being marketed by Daniel Thomas Estate Agents, offering a bespoke proactive service. You can contact us directly on . Viewings by appointment only.
Discover Waltham Abbey
Waltham Abbey offers a balanced lifestyle, blending the charm of a historic market town with modern amenities. Located within the Epping Forest District of Essex, this town is enveloped by picturesque countryside and convenient travel paths. With the M25 close by, commuting is straightforward and easy. In the heart of the town lies a rich selection of pubs and local shops, while charming period houses, modern dwellings, and town centre cottages provide diverse options for living in Waltham Abbey. You can access plenty of green spaces and activities, including the Lee Valley Regional Park and Epping Forest. It's an inviting town with exceptional historical significance and amenities, making it an ideal place for anyone considering moving to Waltham Abbey.
Things to do
Waltham Abbey offers an array of attractions and activities for any interest. Food and drink lovers can savour the tastes offered by local eateries including Italian, Indian and Turkish cuisines, not to mention Costa Coffee and the famous pie and mash restaurant. Those seeking exploration can embark on walks around the beautiful Abbey and Cornmill Meadows, especially for the keen wildlife watchers. For the sports-inclined, there's no shortage of activities, with golfing at the West Essex Golf Club and white water sports at the renowned Lee Valley White Water Centre. Shopaholics can enjoy local and high-street shopping including TK Maxx, Tesco and Lidl, completing the enjoyable and diverse experience of living in Waltham Abbey.
Transport
Waltham Abbey is ideally situated for commuters. For those travelling by train, Waltham Cross station is a key access point, offering direct services to London Liverpool Street in about 30 minutes. This makes it a quick journey for commuters or visitors coming from central London. Additionally, for those looking to use the London Underground, the nearest Central Line stations are Loughton and Theydon Bois, which are just a short drive or bus ride away. For road travellers, Waltham Abbey is ideally positioned near major road networks. The town is just off the M25 motorway, providing links to various parts of London and the surrounding counties, whilst the A10 is a short distance away. Bus services are also plentiful, with numerous routes covering the town and its surrounding areas.
- COUNCIL TAXA payment made to your local authority in order to pay for local services like schools, libraries, and refuse collection. The amount you pay depends on the value of the property.Read more about council Tax in our glossary page.
- Band: D
- PARKINGDetails of how and where vehicles can be parked, and any associated costs.Read more about parking in our glossary page.
- Yes
- GARDENA property has access to an outdoor space, which could be private or shared.
- Yes
- ACCESSIBILITYHow a property has been adapted to meet the needs of vulnerable or disabled individuals.Read more about accessibility in our glossary page.
- Ask agent
DANIEL THOMAS | Meadow Cross, Waltham Abbey, EN9
Add an important place to see how long it'd take to get there from our property listings.
__mins driving to your place
Get an instant, personalised result:
- Show sellers you’re serious
- Secure viewings faster with agents
- No impact on your credit score
About Keller Williams Plus, Covering Nationwide
Suite 1G, Widford Business Centre, 33 Robjohns Road, Chelmsford, CM1 3AG

Affordability
Notes
Staying secure when looking for property
Ensure you're up to date with our latest advice on how to avoid fraud or scams when looking for property online.
Visit our security centre to find out moreDisclaimer - Property reference RX736230. The information displayed about this property comprises a property advertisement. Rightmove.co.uk makes no warranty as to the accuracy or completeness of the advertisement or any linked or associated information, and Rightmove has no control over the content. This property advertisement does not constitute property particulars. The information is provided and maintained by Keller Williams Plus, Covering Nationwide. Please contact the selling agent or developer directly to obtain any information which may be available under the terms of The Energy Performance of Buildings (Certificates and Inspections) (England and Wales) Regulations 2007 or the Home Report if in relation to a residential property in Scotland.
*This is the average speed from the provider with the fastest broadband package available at this postcode. The average speed displayed is based on the download speeds of at least 50% of customers at peak time (8pm to 10pm). Fibre/cable services at the postcode are subject to availability and may differ between properties within a postcode. Speeds can be affected by a range of technical and environmental factors. The speed at the property may be lower than that listed above. You can check the estimated speed and confirm availability to a property prior to purchasing on the broadband provider's website. Providers may increase charges. The information is provided and maintained by Decision Technologies Limited. **This is indicative only and based on a 2-person household with multiple devices and simultaneous usage. Broadband performance is affected by multiple factors including number of occupants and devices, simultaneous usage, router range etc. For more information speak to your broadband provider.
Map data ©OpenStreetMap contributors.




