3 bedroom semi-detached house for sale
Kenmore Crescent, Bradford, BD6

- PROPERTY TYPE
Semi-Detached
- BEDROOMS
3
- BATHROOMS
1
- SIZE
Ask agent
- TENUREDescribes how you own a property. There are different types of tenure - freehold, leasehold, and commonhold.Read more about tenure in our glossary page.
Freehold
Key features
- 3 BEDROOM EXTENDED BAY SEMI DETACHED
- GCH WITH AN IDEAL LOGIC CONDENSING COMBI-BOILER
- MAINLY UPVC DG WINDOWS WITH SOME WOOD WINDOWS
- BAY LOUNGE
- EXTENDED DINING ROOM LEADS INTO THE EXTENSION FAMILY ROOM
- KITCHEN
- UPSTAIRS ARE 3 BEDROOMS
- BATHROOM PLUS A SHOWER CUBICLE
- LOFT SPACE USE OCCASIONAL ROOM WITH DROP DOWN LADDER
- DRIVE PLUS GARDENS TO THE FRONT & REAR
Description
EXTENDED 3 BEDROOM BAY SEMI-DETACHED * HALLWAY * BAY LOUNGE * DINING ROOM WITH AN EXTENSION WHICH LEADS TO A FAMILY ROOM * KITCHEN * UPSTAIRS ARE 3 BEDROOMS * BATHROOM PLUS A SHOWER CUBICLE * FULLY BOARDED AND CARPETED LOFT SPACE WITH A DROP DOWN LADDER * GCH WITH AN IDEAL CONDENSING COMBI-BOILER * MAINLY UPVC DG WINDOWS PLUS SOME SMALLER WOOD WINDOWS * FRONT & REAR GARDENS * DRIVE AND STORAGE GARAGE * NEEDS SOME INTERNAL MODERNISATION AND COULD BE RE-CONFIGURED FROM THE KITCHEN TO THE DINING ROOM * IDEAL YOUNG FAMILY HOME *
Situated in the popular residential area of Kenmore Crescent, Bradford, this generously extended three-bedroom semi-detached home is offered for sale at an asking price of £199,950. A fantastic opportunity for families or investors alike, the property presents spacious living accommodation across two floors and holds significant potential for internal re-configuration and modernisation.
The ground floor welcomes you into a genuine hallway, a bay-fronted lounge that retains plenty of natural light and character. The property has been extended to the rear, providing an open-plan flow from the dining room into a family extension that could serve a variety of purposes, such as a family room, playroom or home office. The kitchen, which could be redesigned to merge with the dining space, offers ample potential for those looking to create a modern open-plan kitchen-diner.Upstairs offers three bedrooms and a family bathroom equipped with both a traditional bath and a separate shower cubicle. A convenient drop-down ladder gives access to a loft space that is currently used as an occasional room, ideal for storage or hobbies. The home is warmed by gas central heating via an Ideal Logic condensing combi-boiler and benefits from mainly uPVC double glazing, with some wooden window features adding charm and individuality.
Externally, the home boasts a driveway providing off-road parking, front and rear gardens offering outdoor relaxation or space for a growing family, and a useful storage garage. While well-maintained, the home does require some internal updating and offers the perfect canvas for personalisation and improvement.
This well-located and versatile property presents a superb opportunity for any buyer willing to restore it to its full potential. Early viewing is highly recommended to appreciate all that this property and the surrounding area have to offer.
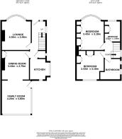
Entrance: 4.53m x 1.69m (14'8 x 5'5). Door into the hallway, double radiator, side wood dg window, staircase, useful pantry cupboard.
Bay Lounge: 4.30m x 3.46m (14'10 x 11'3). Mullion style Upvc dg bay window to front, cornice, mahogany fireplace surround with a marble back and hearth, living flame coal effect gas fire, radiator.
Dining Room: 3.43m x 2.75m (11'2 x 9'0). Space for a table and chairs, pine fireplace surround with a tiled back and hearth and a living flame coal effect gas fire, radiator, coving, built in cupboard unit, archway leads onto the:-
Extension Family Room: 4.20m x 3.80m (13'7 x 12'4). Side door, double radiator.
Kitchen: 2.48m x 1.90m (8'1 x 6'2). Range of wall & base units in pine, work tops and tiling above, sink in white, plumbed for an auto-washer and dishwasher, piped for a gas cooker, double radiator, space for a tall boy fridge freezer, Upvc dg windows to side and rear.
Landing & Stairs: Drop down loft access with a ladder, fully boarded and carpeted with light and power, plus plenty of under drawing eaves storage, sky light window.
Bedroom 1: 3.43m x 3.18m (11'2 x 10'4). Mullion style Upvc dg bay window, extensive fitted furniture, radiator.
Bedroom 2: 3.43m x 3.18m (11'2 x 10'4). Upvc dg window to rear, radiator, L shaped built in wardrobes.
Bedroom 3: 2.52m x 1.96m (8'2 x 6'4). Upvc dg window to front, radiator, fitted furniture.
Bathroom: 2.59m x 1.95m (8'4 x 6'3). Three piece coloured suite, tiling, frosted Upvc dg window and a wood frosted window, double radiator, fully tiled shower cubicle with a Triton electric shower, false ceiling.
Externally: To the front is a garden area with drive parking. To the rear is an enclosed garden, patio area, lawned garden, storage garage with an up and over door, light & power.
While we endeavour to make our sales particulars fair, accurate and reliable, they are only a general guide to the property and, accordingly, if there is any point which is of particular importance to you, please contact the office and we will be pleased to check the position for you, especially if you are contemplating travelling some distance to view the property.
3. The measurements indicated are supplied for guidance only and as such must be considered incorrect.
4. Services: Please note we have not tested the services or any of the equipment or appliances in this property, accordingly we strongly advise prospective buyers to commission their own survey or service reports before finalising their offer to purchase.
5. THESE PARTICULARS ARE ISSUED IN GOOD FAITH BUT DO NOT CONSTITUTE REPRESENTATIONS OF FACT OR FORM PART OF ANY OFFER OR CONTRACT. THE MATTERS REFERRED TO IN THESE PARTICULARS SHOULD BE INDEPENDENTLY VERIFIED BY PROSPECTIVE BUYERS OR TENANTS. NEITHER MARTIN LONSDALE ESTATES LIMITED NOR ANY OF ITS EMPLOYEES OR AGENTS HAS ANY AUTHORITY TO MAKE OR GIVE ANY REPRESENTATION OR WARRANTY WHATEVER IN RELATION TO THIS PROPERTY.
AML Please note if you proceed with an offer on this property we are obliged to undertake mandatory Anti Money Laundering checks on behalf of HMRC. All estate agents have to do this by law and we outsource this process to our compliance partners Credas who charge a fee for this service.
Brochures
Material Information- COUNCIL TAXA payment made to your local authority in order to pay for local services like schools, libraries, and refuse collection. The amount you pay depends on the value of the property.Read more about council Tax in our glossary page.
- Band: C
- PARKINGDetails of how and where vehicles can be parked, and any associated costs.Read more about parking in our glossary page.
- Driveway
- GARDENA property has access to an outdoor space, which could be private or shared.
- Front garden,Rear garden
- ACCESSIBILITYHow a property has been adapted to meet the needs of vulnerable or disabled individuals.Read more about accessibility in our glossary page.
- Level access
Kenmore Crescent, Bradford, BD6
Add an important place to see how long it'd take to get there from our property listings.
__mins driving to your place
Get an instant, personalised result:
- Show sellers you’re serious
- Secure viewings faster with agents
- No impact on your credit score
Your mortgage
Notes
Staying secure when looking for property
Ensure you're up to date with our latest advice on how to avoid fraud or scams when looking for property online.
Visit our security centre to find out moreDisclaimer - Property reference 0015484. The information displayed about this property comprises a property advertisement. Rightmove.co.uk makes no warranty as to the accuracy or completeness of the advertisement or any linked or associated information, and Rightmove has no control over the content. This property advertisement does not constitute property particulars. The information is provided and maintained by Martin S Lonsdale, Bradford. Please contact the selling agent or developer directly to obtain any information which may be available under the terms of The Energy Performance of Buildings (Certificates and Inspections) (England and Wales) Regulations 2007 or the Home Report if in relation to a residential property in Scotland.
*This is the average speed from the provider with the fastest broadband package available at this postcode. The average speed displayed is based on the download speeds of at least 50% of customers at peak time (8pm to 10pm). Fibre/cable services at the postcode are subject to availability and may differ between properties within a postcode. Speeds can be affected by a range of technical and environmental factors. The speed at the property may be lower than that listed above. You can check the estimated speed and confirm availability to a property prior to purchasing on the broadband provider's website. Providers may increase charges. The information is provided and maintained by Decision Technologies Limited. **This is indicative only and based on a 2-person household with multiple devices and simultaneous usage. Broadband performance is affected by multiple factors including number of occupants and devices, simultaneous usage, router range etc. For more information speak to your broadband provider.
Map data ©OpenStreetMap contributors.




