3 bedroom semi-detached bungalow for sale
Greenways, Over Kellet, LA6

- PROPERTY TYPE
Semi-Detached Bungalow
- BEDROOMS
3
- BATHROOMS
1
- SIZE
Ask agent
- TENUREDescribes how you own a property. There are different types of tenure - freehold, leasehold, and commonhold.Read more about tenure in our glossary page.
Freehold
Key features
- Set in the attractive and well regarded village of Over Kellet, offering a peaceful rural environment with a strong community feel and excellent access to countryside walks.
- Open views out across to a protected wetland area and craggs beyond
- Spacious three bedroom semi detached home with flexible ground floor layout, including a second reception room ideal as a potential fourth bedroom, home office, or hobby room.
- Generous front, side, and rear gardens, providing an impressive overall plot with plenty of space for landscaping, play areas, or outdoor entertaining.
- Practical driveway parking and a detached single garage, suitable for storage, a workshop, or conversion to suit individual needs.
- Traditional 1970's footprint with well proportioned rooms, offering superb potential for reconfiguration, modernisation, or future extension
- Light filled living spaces, including a large front-facing living room and rear-facing rooms with garden outlooks, creating a bright and welcoming atmosphere throughout.
- Offered with no onward chain
Description
Located in the attractive village of Over Kellet, this semi detached three bedroom home combines a spacious layout with flexible ground floor accommodation and generous gardens to the front, side, and rear. The property enjoys enviable open views across a protected wetland area towards the craggs beyond, and its traditional footprint with well proportioned rooms provides an excellent foundation for future reconfiguration or extension (subject to permissions). A central hallway leads to the main reception spaces. The front living room is bright and well sized, while the rear facing dining room offers an ideal setting for family meals and entertaining. The rear facing kitchen includes fitted units, appliances, and direct access to the garden. An inner hallway connects to the bathroom and a ground floor bedroom, both of which overlook the side garden. Upstairs, the main bedroom enjoys views over the gardens, with two further double bedrooms positioned at the front of the property. Externally, the home features a lawned front garden, driveway parking, and a garage. The particularly spacious side garden is a standout feature, offering excellent potential for landscaping or future extension (subject to permissions), while the enclosed rear garden provides a private outdoor space with mature boundaries and direct access from the kitchen. Overall, the property sits on a generous plot and presents a wide range of possibilities for future use. Over Kellet is a well regarded village known for its peaceful setting, rural surroundings, and strong community feel. The village benefits from a primary school, a historic church, a traditional pub, and a village hall that hosts regular events. There are numerous countryside walks and footpaths nearby, making it an appealing location for those who enjoy outdoor space. Carnforth lies approximately two miles away and provides supermarkets, independent shops, cafés, medical facilities, and a railway station with connections to Lancaster, Manchester, and the Cumbrian Coast. Lancaster, around six miles to the south, offers a wider range of amenities including two universities, theatres, leisure centres, and a hospital. The area is also well placed for access to the Forest of Bowland, Arnside and Silverdale, and the Lake District.
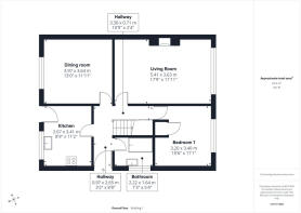
Hallway
2.65m x 0.97m and 3.30m x 0.71m
A welcoming entrance hallway providing access to the main reception rooms and staircase. There is space here for coat and shoe storage and to create a defined entrance area.
Living Room
11'10" x 17'8" (3.63m x 5.41m)
A generously sized front-facing reception room with a large window overlooking the front garden. The room benefits from good natural light and provides ample space for a main seating or family area. A gas effect log burner creates a wonderful focus for cosy evenings.
Kitchen
8'9" x 11'2" (2.67m x 3.41m)
A rear-facing kitchen with a window overlooking the garden with a door leading conveniently outside. Fitted with traditional wood shaker style wall and base units, a sink, and complementary light work surfaces, along with a built-in double oven, hob, dishwasher, and space for a free standing washing machine and fridge-freezer. The layout provides a practical working area with scope for reconfiguration or integration with the garden.
Second reception / 4th bedroom
13'0" x 11'11" (3.97m x 3.64m)
A generously sized, rear facing dining room positioned conveniently beside the kitchen. The space comfortably accommodates an eight seater table, creating an ideal setting for family meals and effortless entertaining.
Bedroom 1
10'5" x 11'1" (3.20m x 3.40m)
A side facing, ground floor bedroom with views over the garden. Suitable as a permanent bedroom or guest room and benefits from a built in storage cupboard.
Bathroom
7'3" x 5'4" (2.22m x 1.64m)
The large side garden facing window fills the room with natural light. Arranged with a three-piece suite including a bath, wash basin, and WC. Offers scope for redesign to suit personal preferences.
Bedroom 2
12'0" x 11'10" (3.66m x 3.61m)
A well-proportioned rear-facing double bedroom with garden views. Offers ample space for wardrobes and bedroom furniture.
Bedroom 3
11'9" x 11'10" (3.60m x 3.61m)
A front-facing double bedroom with an outlook over the front garden. The window allows good natural light, creating a bright and comfortable room.
Landing
9'10" x 2'7" (3.00m x 0.81m)
Offering access to all first-floor rooms, with potential for shelving or storage.
Garage
9'0" x 17'5" (2.76m x 5.33m)
A detached single garage suitable for parking or storage, with potential for use as a workshop or hobby space.
Externally
The lawned front garden benefits from established planting and hedging, providing an attractive approach to the property and there is a detached garage ideal for parking or storage. The particularly spacious side garden is laid mainly to lawn, providing additional outdoor space. This area offers clear potential for extension to the side of the property (subject to the necessary permissions), or for creating further seating, play, or planting areas. The enclosed rear garden with a lawn and mature boundary hedges is accessed directly from the kitchen and with views from the rear reception room and ground floor bedroom. The garden provides a private outdoor space with room for seating, planting beds, or a vegetable garden. The combination of rear and side gardens offers a generous overall plot with scope for landscaping and future alterations.
Useful information
House built - 1970's.
Tenure - Freehold.
Council tax band - D (Lancaster City Council).
Heating - Combination gas boiler.
Drainage - Mains.
What3Words location - ///paces.storybook.festivity.
Anti-Money Laundering Regulations
In compliance with Government legislation, all purchasers are required to undergo identification checks under the Anti-Money Laundering (AML) Regulations once an offer on a property has been accepted. These checks are mandatory, and the purchase process cannot proceed until they are successfully completed. Failure to complete these checks will prevent the purchase from progressing.
A specialist third-party company / compliance partner will carry out these checks.
Cost:
- £42.00 (inc. VAT) for a single purchaser, or £36.00 (inc. VAT) per person for couple or group purchases (including contributions from gift-givers), provided all payments are made in a single transaction.
- The charge for purchases under a company name is £120.00 (inc. VAT).
The fee is non-refundable and must be paid before a Memorandum of Sale is issued. The cost includes obtaining relevant data, manual verifications, and monitoring as required.
- COUNCIL TAXA payment made to your local authority in order to pay for local services like schools, libraries, and refuse collection. The amount you pay depends on the value of the property.Read more about council Tax in our glossary page.
- Ask agent
- PARKINGDetails of how and where vehicles can be parked, and any associated costs.Read more about parking in our glossary page.
- Yes
- GARDENA property has access to an outdoor space, which could be private or shared.
- Yes
- ACCESSIBILITYHow a property has been adapted to meet the needs of vulnerable or disabled individuals.Read more about accessibility in our glossary page.
- Ask agent
Greenways, Over Kellet, LA6
Add an important place to see how long it'd take to get there from our property listings.
__mins driving to your place
Get an instant, personalised result:
- Show sellers you’re serious
- Secure viewings faster with agents
- No impact on your credit score
Your mortgage
Notes
Staying secure when looking for property
Ensure you're up to date with our latest advice on how to avoid fraud or scams when looking for property online.
Visit our security centre to find out moreDisclaimer - Property reference RX711329. The information displayed about this property comprises a property advertisement. Rightmove.co.uk makes no warranty as to the accuracy or completeness of the advertisement or any linked or associated information, and Rightmove has no control over the content. This property advertisement does not constitute property particulars. The information is provided and maintained by Waterhouse Estate Agents, Milnthorpe. Please contact the selling agent or developer directly to obtain any information which may be available under the terms of The Energy Performance of Buildings (Certificates and Inspections) (England and Wales) Regulations 2007 or the Home Report if in relation to a residential property in Scotland.
*This is the average speed from the provider with the fastest broadband package available at this postcode. The average speed displayed is based on the download speeds of at least 50% of customers at peak time (8pm to 10pm). Fibre/cable services at the postcode are subject to availability and may differ between properties within a postcode. Speeds can be affected by a range of technical and environmental factors. The speed at the property may be lower than that listed above. You can check the estimated speed and confirm availability to a property prior to purchasing on the broadband provider's website. Providers may increase charges. The information is provided and maintained by Decision Technologies Limited. **This is indicative only and based on a 2-person household with multiple devices and simultaneous usage. Broadband performance is affected by multiple factors including number of occupants and devices, simultaneous usage, router range etc. For more information speak to your broadband provider.
Map data ©OpenStreetMap contributors.





